|
|
|
| Larry Stein Oklahoma County Assessor (405) 713-1200 - Public Access System |
|
|
|
|
|
|
| Real Property Display - Screen Produced 2/28/2026 2:22:52 AM | ||||
|---|---|---|---|---|
| Account: R143361720 | Type: Residential | Location: |
6108 N ALLISON DR |
|
| Building Name/Occupant: |
|
OKLAHOMA CITY |
||
| Owner Name 1: | ROBINSON ROBIN L |
Parcel PIN#: |
2844-14-336-1720 |
|
| Owner Name 2: | 1/4 section #: |
2844 |
||
| Owner Name 3: | Parent Acct: |
|
||
| Billing Address: | 6108 N ALLISON DR | Tax District: |
|
|
| City, State, Zip | OKLAHOMA CITY, OK 73112-1329 | School System: |
Putnam City #1 |
|
|
Country: (If noted) |
Land Size: |
0.1851 Acres |
||
|
Land Value: 34,675 |
|
|||
|
Sect 11-T12N-R4W Qtr NW |
CLARKS LAKERIDGE
Block
003
Lot
026
|
|||
| Full Legal Description: CLARKS LAKERIDGE 003 026 |
| Photo & Sketch (if available) | Comp Sales (ordered by relevancy) |
|
||||||||||||||||||
|
||||||||||||||||||||
| Value History (*The County Treasurer 405-713-1300 posts & collects actual tax amounts. Contact information HERE) | |||||||||||||
|---|---|---|---|---|---|---|---|---|---|---|---|---|---|
| Year | Market Value | Taxable Mkt Value | Gross Assessed | Exemption | Net Assessed | Millage | Est. Tax | Tax Savings | |||||
|
2025 |
209,500 |
178,039 |
19,583 |
0 |
19,583 |
123.17 |
$2,412 |
$426 |
|||||
|
2024 |
207,500 |
169,561 |
18,651 |
0 |
18,651 |
122.30 |
$2,281 |
$510 |
|||||
|
2023 |
196,500 |
161,487 |
17,762 |
0 |
17,762 |
121.91 |
$2,166 |
$470 |
|||||
|
2022 |
173,500 |
153,798 |
16,917 |
0 |
16,917 |
123.41 |
$2,088 |
$267 |
|||||
|
2021 |
150,500 |
146,475 |
16,112 |
0 |
16,112 |
122.23 |
$1,969 |
$54 |
|||||
| Property Account Status/Adjustments/Exemptions | ||
|---|---|---|
| Account # | Exemption Description | Amount |
|
R143361720 |
5% Capped Account |
0 |
| Property Deed Transaction History (Recorded in the County Clerk's Office) | ||||||||||
|---|---|---|---|---|---|---|---|---|---|---|
| Date | Type | Book | Page | Price | Grantor | Grantee | ||||
|
3/26/2015 |
|
Deeds |
$107,000 |
ROWE JOHN A & TIFFANY L |
ROBINSON ROBIN L |
|||||
|
7/1/2005 |
|
Deeds |
$90,000 |
FLEET DONALD F & SHEILA A REV TRUST |
ROWE JOHN A & TIFFANY L |
|||||
|
6/28/2005 |
|
Deeds |
$0 |
CATHEY DAVID L & BETTY L |
FLEET DONALD F & SHEILA A REV TRUST |
|||||
|
5/8/2003 |
|
Deeds |
$0 |
CATHEY SHEILA A CATHEY DAVID L |
FLEET DONALD F & SHEILA A REV TRUST |
|||||
|
11/6/1989 |
|
Historical |
$0 |
FLEET SHEILA A |
CATHEY SHEILA A |
|||||
| Last Mailed Notice of Value (N.O.V.) Information/History | ||||||||
|---|---|---|---|---|---|---|---|---|
| Year | Date | Market Value | Taxable Market Value | Gross Assessed | Exemption | Net Assessed | ||
|
2026 |
02/23/2026 |
216,500 |
186,940 |
20,563 |
0 |
20,563 |
||
|
2025 |
02/14/2025 |
209,500 |
178,039 |
19,583 |
0 |
19,583 |
||
|
2024 |
02/13/2024 |
207,500 |
169,561 |
18,651 |
0 |
18,651 |
||
|
2023 |
02/14/2023 |
196,500 |
161,487 |
17,762 |
0 |
17,762 |
||
|
2022 |
03/15/2022 |
173,500 |
153,798 |
16,917 |
0 |
16,917 |
||
| Property Building Permit History | |||||||||||
|---|---|---|---|---|---|---|---|---|---|---|---|
| Issued | Permit # | Provided by | Bldg # | Description | Est Construction Cost | Status | |||||
| No Building Permit records returned. | |||||||||||
| Click button on building number to access detailed information: | ||||||
|---|---|---|---|---|---|---|
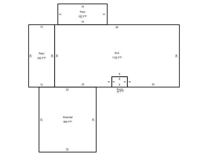
| Bldg # | Vacant/Improved Land | Bldg Description | Year Built | SqFt | # Stories | |
|
1 |
Improved |
Ranch 1 Story |
1963 |
1,128 |
1 Stories |
|