|
|
|
| Larry Stein Oklahoma County Assessor (405) 713-1200 - Public Access System |
|
|
|
|
|
|
| Real Property Display - Screen Produced 3/24/2026 7:26:34 AM | ||||
|---|---|---|---|---|
| Account: R188950520 | Type: Residential | Location: |
6304 NW 36TH ST |
|
| Building Name/Occupant: |
|
WARR ACRES |
||
| Owner Name 1: | SPINNER BROTHERS INC |
Parcel PIN#: |
2881-18-895-0520 |
|
| Owner Name 2: | 1/4 section #: |
2881 |
||
| Owner Name 3: | Parent Acct: |
|
||
| Billing Address: | PO BOX 54735 | Tax District: |
|
|
| City, State, Zip | OKLAHOMA CITY, OK 73154-1735 | School System: |
Putnam City #1 |
|
|
Country: (If noted) |
Land Size: |
0.1607 Acres |
||
|
Land Value: 21,350 |
|
|||
|
Sect 21-T12N-R4W Qtr NE |
COOLEYS SUB ADDITION
Block
001
Lot
009
|
|||
| Full Legal Description: COOLEYS SUB ADDITION 001 009 |
| Photo & Sketch (if available) | Comp Sales (ordered by relevancy) |
|
||||||||||||||||||
|
||||||||||||||||||||
| Value History (*The County Treasurer 405-713-1300 posts & collects actual tax amounts. Contact information HERE) | |||||||||||||
|---|---|---|---|---|---|---|---|---|---|---|---|---|---|
| Year | Market Value | Taxable Mkt Value | Gross Assessed | Exemption | Net Assessed | Millage | Est. Tax | Tax Savings | |||||
|
2025 |
144,500 |
111,155 |
12,226 |
0 |
12,226 |
115.77 |
$1,416 |
$425 |
|||||
|
2024 |
140,000 |
105,862 |
11,644 |
0 |
11,644 |
114.25 |
$1,330 |
$429 |
|||||
|
2023 |
132,000 |
100,821 |
11,090 |
0 |
11,090 |
117.84 |
$1,307 |
$404 |
|||||
|
2022 |
115,000 |
96,020 |
10,561 |
0 |
10,561 |
120.40 |
$1,272 |
$251 |
|||||
|
2021 |
97,500 |
91,448 |
10,059 |
0 |
10,059 |
119.77 |
$1,205 |
$80 |
|||||
| Property Account Status/Adjustments/Exemptions | ||
|---|---|---|
| Account # | Exemption Description | Amount |
|
R188950520 |
5% Capped Account |
0 |
| Property Deed Transaction History (Recorded in the County Clerk's Office) | |||||||
|---|---|---|---|---|---|---|---|
| Date | Type | Book | Page | Price | Grantor | Grantee | |
|
10/18/2011 |
|
Deeds |
$0 |
MCQUERRY ROBERT J & GLENNA D |
MCQUERRY GLENNA D |
||
|
10/12/2011 |
|
Mult Parcel |
$80,000 |
MCQUERRY GLENNA D |
SPINNER BROTHERS INC |
||
|
4/28/1988 |
|
Historical |
$27,500 |
TACHENY DALE P |
MCQUERRY ROBERT J & GLENNA D |
||
|
10/1/1977 |
|
Historical |
$0 |
|
TACHENY DALE P |
||
| Last Mailed Notice of Value (N.O.V.) Information/History | ||||||||
|---|---|---|---|---|---|---|---|---|
| Year | Date | Market Value | Taxable Market Value | Gross Assessed | Exemption | Net Assessed | ||
|
2026 |
02/23/2026 |
141,000 |
116,712 |
12,838 |
0 |
12,838 |
||
|
2025 |
02/14/2025 |
144,500 |
111,155 |
12,226 |
0 |
12,226 |
||
|
2024 |
02/13/2024 |
140,000 |
105,862 |
11,644 |
0 |
11,644 |
||
|
2023 |
02/14/2023 |
132,000 |
100,821 |
11,090 |
0 |
11,090 |
||
|
2022 |
03/15/2022 |
115,000 |
96,020 |
10,561 |
0 |
10,561 |
||
| Property Building Permit History | |||||||||||
|---|---|---|---|---|---|---|---|---|---|---|---|
| Issued | Permit # | Provided by | Bldg # | Description | Est Construction Cost | Status | |||||
| No Building Permit records returned. | |||||||||||
| Click button on building number to access detailed information: | ||||||
|---|---|---|---|---|---|---|
| Bldg # | Vacant/Improved Land | Bldg Description | Year Built | SqFt | # Stories | |
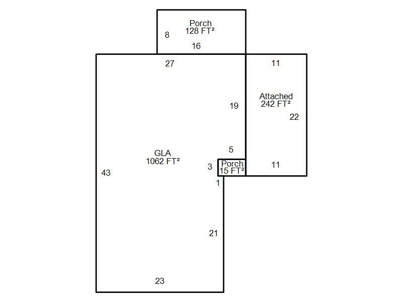
|
1 |
Improved |
Ranch 1 Story |
1963 |
1,062 |
1 Stories |
|