|
|
|
| Larry Stein Oklahoma County Assessor (405) 713-1200 - Public Access System |
|
|
|
|
|
|
| Real Property Display - Screen Produced 2/28/2026 12:43:50 AM | ||||
|---|---|---|---|---|
| Account: R144821615 | Type: Residential | Location: |
2716 N REDMOND AVE |
|
| Building Name/Occupant: |
|
OKLAHOMA CITY |
||
| Owner Name 1: | SHEPHERD CAROLYN SUE |
Parcel PIN#: |
2882-14-482-1615 |
|
| Owner Name 2: | 1/4 section #: |
2882 |
||
| Owner Name 3: | Parent Acct: |
|
||
| Billing Address: | 4173 NW 22ND ST | Tax District: |
|
|
| City, State, Zip | OKLAHOMA CITY, OK 73107-2619 | School System: |
Putnam City #1 |
|
|
Country: (If noted) |
Land Size: |
0.1707 Acres |
||
|
Land Value: 29,736 |
|
|||
|
Sect 21-T12N-R4W Qtr SE |
TANGLEWOOD HILLS 4TH
Block
013
Lot
014
|
|||
| Full Legal Description: TANGLEWOOD HILLS 4TH 013 014 |
| Photo & Sketch (if available) | Comp Sales (ordered by relevancy) |
|
||||||||||||||||||
|
||||||||||||||||||||
| Value History (*The County Treasurer 405-713-1300 posts & collects actual tax amounts. Contact information HERE) | |||||||||||||
|---|---|---|---|---|---|---|---|---|---|---|---|---|---|
| Year | Market Value | Taxable Mkt Value | Gross Assessed | Exemption | Net Assessed | Millage | Est. Tax | Tax Savings | |||||
|
2025 |
178,500 |
143,580 |
15,793 |
0 |
15,793 |
123.17 |
$1,945 |
$473 |
|||||
|
2024 |
172,500 |
136,743 |
15,041 |
0 |
15,041 |
122.30 |
$1,840 |
$481 |
|||||
|
2023 |
168,000 |
130,232 |
14,325 |
0 |
14,325 |
121.91 |
$1,746 |
$506 |
|||||
|
2022 |
145,500 |
124,031 |
13,642 |
0 |
13,642 |
123.41 |
$1,684 |
$291 |
|||||
|
2021 |
122,000 |
118,125 |
12,993 |
0 |
12,993 |
122.23 |
$1,588 |
$52 |
|||||
| Property Account Status/Adjustments/Exemptions | ||
|---|---|---|
| Account # | Exemption Description | Amount |
|
R144821615 |
5% Capped Account |
0 |
| Property Deed Transaction History (Recorded in the County Clerk's Office) | |||||||
|---|---|---|---|---|---|---|---|
| Date | Type | Book | Page | Price | Grantor | Grantee | |
|
8/18/2021 |
|
Deeds |
$0 |
SHEPHERD DANIEL R & CAROLYN S |
SHEPHERD CAROLYN SUE |
||
|
9/1/1977 |
|
Historical |
$0 |
|
SHEPHERD DANIEL R & CAROLYN S |
||
| Last Mailed Notice of Value (N.O.V.) Information/History | ||||||||
|---|---|---|---|---|---|---|---|---|
| Year | Date | Market Value | Taxable Market Value | Gross Assessed | Exemption | Net Assessed | ||
|
2026 |
02/23/2026 |
173,500 |
150,759 |
16,582 |
0 |
16,582 |
||
|
2025 |
02/14/2025 |
178,500 |
143,580 |
15,793 |
0 |
15,793 |
||
|
2024 |
02/13/2024 |
172,500 |
136,743 |
15,041 |
0 |
15,041 |
||
|
2023 |
02/14/2023 |
168,000 |
130,232 |
14,325 |
0 |
14,325 |
||
|
2022 |
03/15/2022 |
145,500 |
124,031 |
13,642 |
0 |
13,642 |
||
| Property Building Permit History | |||||||||||
|---|---|---|---|---|---|---|---|---|---|---|---|
| Issued | Permit # | Provided by | Bldg # | Description | Est Construction Cost | Status | |||||
| No Building Permit records returned. | |||||||||||
| Click button on building number to access detailed information: | ||||||
|---|---|---|---|---|---|---|
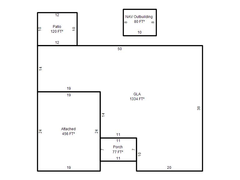
| Bldg # | Vacant/Improved Land | Bldg Description | Year Built | SqFt | # Stories | |
|
1 |
Improved |
Ranch 1 Story |
1963 |
1,334 |
1 Stories |
|