Larry Stein Oklahoma County Assessor (405) 713-1200 - Public Access System
Home Contact Us Guest Book Map Search New Search
Real Property Display - Screen Produced   4/29/2026 5:46:32 AM 
Account: R146181850  Type: Residential

  

Location:

4805 NW 29TH ST

Building Name/Occupant:

 

OKLAHOMA CITY

Owner Name 1:  WILLIAMS BENNY G & EDYTHE L TRS

Parcel PIN#:

2886-14-618-1850

Owner Name 2:  WILLIAMS BENNY & EDYTHIE REV TRUST 1/4 section #:

2886

Owner Name 3:    Parent Acct:

 

Billing Address:  4805 NW 29TH ST Tax District:

City, State, Zip  OKLAHOMA CITY , OK  73127 School System:

Putnam City #1

Country: (If noted)

  

Land Size:

0.2342  Acres

Personal Property

Land Value: 42,840 

Treasurer:

Sect 22-T12N-R4W Qtr SE

 WINDSOR HILLS 6TH   Block 032  Lot 014   Subdivision Sales
 Full Legal Description:  WINDSOR HILLS 6TH 032 014

NOTE:  The following sales may or may not be used to determine Fair Market Value

Photo & Sketch (if available) Sales  Sales Report

 3121 TUDOR RD OKLAHOMA CITY, OK

04/12/2024

 $190,000 

 2704 N HARVARD AVE OKLAHOMA CITY, OK

11/14/2025

 $240,000 

 2705 TUDOR RD OKLAHOMA CITY, OK

08/28/2024

 $270,000 

 3113 TUDOR RD OKLAHOMA CITY, OK

08/20/2025

 $255,000 

 3104 ASTORIA BLVD OKLAHOMA CITY, OK

10/10/2025

 $249,000 

 2704 N STERLING AVE OKLAHOMA CITY, OK

10/25/2024

 $252,500 

Value History  (*The County Treasurer 405-713-1300 posts & collects actual tax amounts.  Contact information  HERE)
Year Market Value Taxable Mkt Value Gross Assessed Exemption Net Assessed Millage Est. Tax Tax Savings

2026

245,000 

119,229 

13,115 

1,000 

12,115 

123.17 

$1,492 

$1,827 

2025

252,000 

119,229 

13,115 

1,000 

12,115 

123.17 

$1,492 

$1,922 

2024

250,500 

119,229 

13,115 

1,000 

12,115 

122.30 

$1,482 

$1,888 

[1/10]
Property Account Status/Adjustments/Exemptions
Account # Exemption Description Amount

R146181850

Freeze Senior Valuation

R146181850

3% Cap Homestead

R146181850

Homestead

1,000 

Property Deed Transaction History   (Recorded in the County Clerk's Office)
Date Type Book Page Price Grantor Grantee

5/10/2019

Deeds

14025

13

 $0 

WILLIAMS BENNY G & EDYTHE L

WILLIAMS BENNY G & EDYTHE L TRS

11/11/1911

Historical

0006

0000

 $0 

 

WILLIAMS BENNY G & EDYTHE L

Last Mailed Notice of Value (N.O.V.) Information/History
Year Date Market Value Taxable Market Value Gross Assessed Exemption Net Assessed

2025

02/14/2025

252,000 

119,229 

13,115 

1,000 

12,115 

2024

02/13/2024

250,500 

119,229 

13,115 

1,000 

12,115 

2023

02/14/2023

239,000 

119,229 

13,115 

1,000 

12,115 

[1/4]
Property Building Permit History
Issued Permit # Provided by Bldg # Description Est Construction Cost Status
No Building Permit records returned.
Click button below to access detailed information and additional property photos:
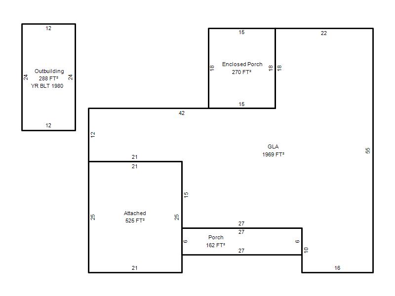
  Bldg # Vacant/Improved Land Bldg Description Year Built SqFt # Stories

Click

1

Improved

Ranch 1 Story

1964

1,969 

1 Stories