|
|
|
| Larry Stein Oklahoma County Assessor (405) 713-1200 - Public Access System |
|
|
|
|
|
|
| Real Property Display - Screen Produced 4/29/2026 9:43:00 AM | ||||
|---|---|---|---|---|
| Account: R146372130 | Type: Residential | Location: |
2700 TUDOR RD |
|
| Building Name/Occupant: |
|
OKLAHOMA CITY |
||
| Owner Name 1: | UTZ TODD A & JILL FEIST |
Parcel PIN#: |
2886-14-637-2130 |
|
| Owner Name 2: | 1/4 section #: |
2886 |
||
| Owner Name 3: | Parent Acct: |
|
||
| Billing Address: | 1903 BEDFORD DR | Tax District: |
|
|
| City, State, Zip | OKLAHOMA CITY, OK 73116 | School System: |
Putnam City #1 |
|
|
Country: (If noted) |
Land Size: |
0.2645 Acres |
||
|
Land Value: 51,840 |
|
|||
|
Sect 22-T12N-R4W Qtr SE |
WINDSOR HILLS 7TH
Block
040
Lot
009
|
|||
| Full Legal Description: WINDSOR HILLS 7TH 040 009 |
| Value History (*The County Treasurer 405-713-1300 posts & collects actual tax amounts. Contact information HERE) | |||||||||||||
|---|---|---|---|---|---|---|---|---|---|---|---|---|---|
| Year | Market Value | Taxable Mkt Value | Gross Assessed | Exemption | Net Assessed | Millage | Est. Tax | Tax Savings | |||||
|
2026 |
243,500 |
214,415 |
23,585 |
0 |
23,585 |
123.17 |
$2,905 |
$394 |
|||||
|
2025 |
249,000 |
204,205 |
22,461 |
0 |
22,461 |
123.17 |
$2,767 |
$607 |
|||||
|
2024 |
250,500 |
194,481 |
21,392 |
0 |
21,392 |
122.30 |
$2,616 |
$754 |
|||||
| Property Account Status/Adjustments/Exemptions | ||
|---|---|---|
| Account # | Exemption Description | Amount |
|
R146372130 |
5% Capped Account |
0 |
| Property Deed Transaction History (Recorded in the County Clerk's Office) | ||||||||||
|---|---|---|---|---|---|---|---|---|---|---|
| Date | Type | Book | Page | Price | Grantor | Grantee | ||||
|
3/25/2020 |
|
Deeds |
$160,000 |
EDWARDS JACQUELINE M |
UTZ TODD A & JILL FEIST |
|||||
|
4/22/1997 |
|
Historical |
$95,000 |
BOWEN DAVID E & SUZANNE |
EDWARDS JACQUELINE M |
|||||
|
2/2/1995 |
|
Historical |
$0 |
JOHNSON SUZANNE |
BOWEN DAVID E & SUZANNE |
|||||
| Last Mailed Notice of Value (N.O.V.) Information/History | ||||||||
|---|---|---|---|---|---|---|---|---|
| Year | Date | Market Value | Taxable Market Value | Gross Assessed | Exemption | Net Assessed | ||
|
2026 |
02/23/2026 |
243,500 |
214,415 |
23,585 |
0 |
23,585 |
||
|
2025 |
02/14/2025 |
249,000 |
204,205 |
22,461 |
0 |
22,461 |
||
|
2024 |
02/13/2024 |
250,500 |
194,481 |
21,392 |
0 |
21,392 |
||
| Property Building Permit History | |||||||||||
|---|---|---|---|---|---|---|---|---|---|---|---|
| Issued | Permit # | Provided by | Bldg # | Description | Est Construction Cost | Status | |||||
| No Building Permit records returned. | |||||||||||
| Click button below to access detailed information and additional property photos: | ||||||
|---|---|---|---|---|---|---|
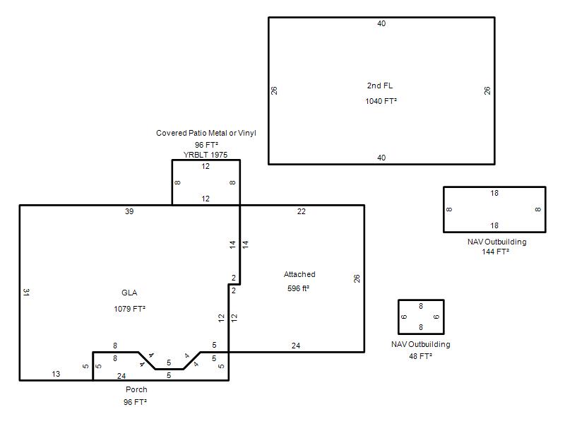
| Bldg # | Vacant/Improved Land | Bldg Description | Year Built | SqFt | # Stories | |
|
1 |
Improved |
2 Story |
1965 |
2,119 |
2 Stories |
|