|
|
|
| Larry Stein Oklahoma County Assessor (405) 713-1200 - Public Access System |
|
|
|
|
|
|
| Real Property Display - Screen Produced 3/25/2026 5:25:49 AM | ||||
|---|---|---|---|---|
| Account: R153181925 | Type: Residential | Location: |
3105 LONGRIDGE RD |
|
| Building Name/Occupant: |
|
DEL CITY |
||
| Owner Name 1: | SMOTHERS CAROLYN ANN |
Parcel PIN#: |
1423-15-318-1925 |
|
| Owner Name 2: | 1/4 section #: |
1423 |
||
| Owner Name 3: | Parent Acct: |
|
||
| Billing Address: | 3105 LONGRIDGE RD | Tax District: |
|
|
| City, State, Zip | DEL CITY, OK 73115-1339 | School System: |
Mid-Del #52 |
|
|
Country: (If noted) |
Land Size: |
0.1584 Acres |
||
|
Land Value: 23,805 |
|
|||
|
Sect 6-T11N-R2W Qtr SW |
DEL RANCHO 4TH ADDITION
Block
004
Lot
018
|
|||
| Full Legal Description: DEL RANCHO 4TH ADDITION 004 018 |
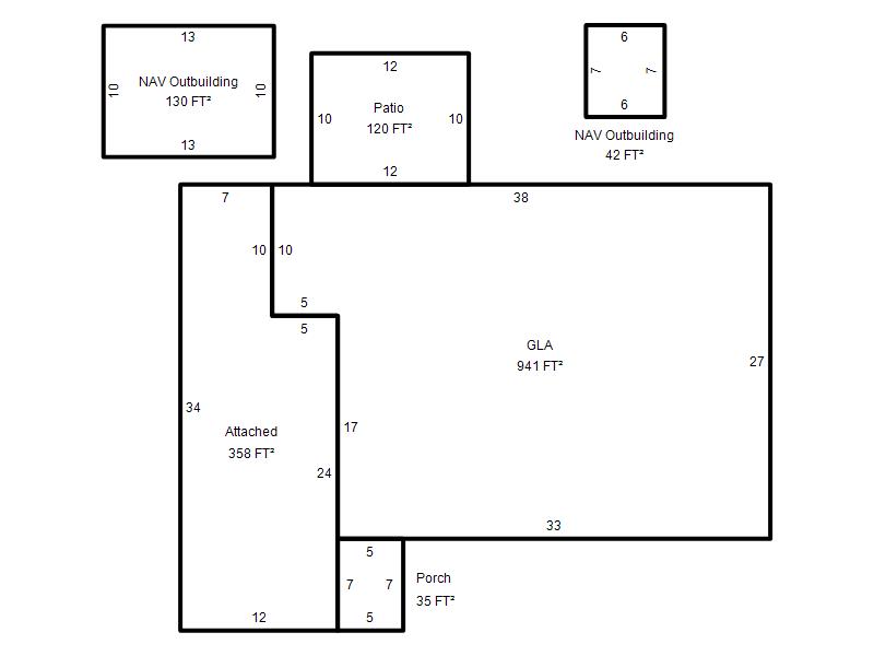
| Photo & Sketch (if available) | Comp Sales (ordered by relevancy) |
|
||||||||||||||||||
|
||||||||||||||||||||
| Value History (*The County Treasurer 405-713-1300 posts & collects actual tax amounts. Contact information HERE) | |||||||||||||
|---|---|---|---|---|---|---|---|---|---|---|---|---|---|
| Year | Market Value | Taxable Mkt Value | Gross Assessed | Exemption | Net Assessed | Millage | Est. Tax | Tax Savings | |||||
|
2025 |
104,000 |
66,656 |
7,331 |
1,000 |
6,331 |
114.72 |
$726 |
$586 |
|||||
|
2024 |
91,500 |
64,715 |
7,118 |
1,000 |
6,118 |
117.21 |
$717 |
$463 |
|||||
|
2023 |
82,500 |
62,831 |
6,911 |
1,000 |
5,911 |
112.46 |
$665 |
$356 |
|||||
|
2022 |
74,000 |
61,001 |
6,709 |
1,000 |
5,709 |
110.76 |
$632 |
$269 |
|||||
|
2021 |
61,500 |
59,225 |
6,514 |
1,000 |
5,514 |
114.70 |
$633 |
$143 |
|||||
| Property Account Status/Adjustments/Exemptions | ||
|---|---|---|
| Account # | Exemption Description | Amount |
|
R153181925 |
3% Cap Homestead |
0 |
|
R153181925 |
Homestead |
1,000 |
| Property Deed Transaction History (Recorded in the County Clerk's Office) | |||||||
|---|---|---|---|---|---|---|---|
| Date | Type | Book | Page | Price | Grantor | Grantee | |
|
11/20/1991 |
|
Historical |
$23,000 |
SMOTHERS SAMMIE |
SMOTHERS CAROLYN ANN |
||
|
9/25/1990 |
|
Historical |
$10,000 |
FLEET MORTGAGE CORP |
SMOTHERS SAMMIE |
||
|
9/14/1990 |
|
Historical |
$0 |
MIDWEST MEDICAL BUILDING |
FLEET MORTGAGE CORP |
||
|
11/11/1911 |
|
Historical |
$0 |
|
MIDWEST MEDICAL BUILDING |
||
| Last Mailed Notice of Value (N.O.V.) Information/History | ||||||||
|---|---|---|---|---|---|---|---|---|
| Year | Date | Market Value | Taxable Market Value | Gross Assessed | Exemption | Net Assessed | ||
|
2026 |
02/06/2026 |
103,000 |
68,655 |
7,551 |
1,000 |
6,551 |
||
|
2025 |
01/31/2025 |
104,000 |
66,656 |
7,331 |
1,000 |
6,331 |
||
|
2024 |
01/22/2024 |
91,500 |
64,715 |
7,118 |
1,000 |
6,118 |
||
|
2023 |
01/23/2023 |
82,500 |
62,831 |
6,911 |
1,000 |
5,911 |
||
|
2022 |
02/22/2022 |
74,000 |
61,001 |
6,709 |
1,000 |
5,709 |
||
| Property Building Permit History | |||||||||||
|---|---|---|---|---|---|---|---|---|---|---|---|
| Issued | Permit # | Provided by | Bldg # | Description | Est Construction Cost | Status | |||||
| No Building Permit records returned. | |||||||||||
| Click button on building number to access detailed information: | ||||||
|---|---|---|---|---|---|---|
| Bldg # | Vacant/Improved Land | Bldg Description | Year Built | SqFt | # Stories | |
|
1 |
Improved |
Ranch 1 Story |
1963 |
941 |
1 Stories |
|