|
|
|
| Larry Stein Oklahoma County Assessor (405) 713-1200 - Public Access System |
|
|
|
|
|
|
| Real Property Display - Screen Produced 3/25/2026 3:32:46 AM | ||||
|---|---|---|---|---|
| Account: R153182295 | Type: Residential | Location: |
852 ENGLEWOOD RD |
|
| Building Name/Occupant: |
|
DEL CITY |
||
| Owner Name 1: | JOYNER GARDNER JERELL |
Parcel PIN#: |
1423-15-318-2295 |
|
| Owner Name 2: | JOYNER CRYSTAL YOLONDA ALLEN | 1/4 section #: |
1423 |
|
| Owner Name 3: | Parent Acct: |
|
||
| Billing Address: | 108 HAMPTON PT | Tax District: |
|
|
| City, State, Zip | WARNER ROBINS, GA 31088-7560 | School System: |
Mid-Del #52 |
|
|
Country: (If noted) |
Land Size: |
0.1491 Acres |
||
|
Land Value: 22,411 |
|
|||
|
Sect 6-T11N-R2W Qtr SW |
DEL RANCHO 4TH ADDITION
Block
005
Lot
021
|
|||
| Full Legal Description: DEL RANCHO 4TH ADDITION 005 021 |
| Photo & Sketch (if available) | Comp Sales (ordered by relevancy) |
|
||||||||||||||||||
|
||||||||||||||||||||
| Value History (*The County Treasurer 405-713-1300 posts & collects actual tax amounts. Contact information HERE) | |||||||||||||
|---|---|---|---|---|---|---|---|---|---|---|---|---|---|
| Year | Market Value | Taxable Mkt Value | Gross Assessed | Exemption | Net Assessed | Millage | Est. Tax | Tax Savings | |||||
|
2025 |
132,500 |
91,252 |
10,036 |
0 |
10,036 |
114.72 |
$1,152 |
$521 |
|||||
|
2024 |
117,000 |
86,907 |
9,559 |
0 |
9,559 |
117.21 |
$1,121 |
$388 |
|||||
|
2023 |
104,000 |
82,769 |
9,104 |
0 |
9,104 |
112.46 |
$1,024 |
$263 |
|||||
|
2022 |
93,500 |
78,828 |
8,670 |
0 |
8,670 |
110.76 |
$960 |
$179 |
|||||
|
2021 |
76,500 |
75,075 |
8,258 |
0 |
8,258 |
114.70 |
$947 |
$18 |
|||||
| Property Account Status/Adjustments/Exemptions | ||
|---|---|---|
| Account # | Exemption Description | Amount |
|
R153182295 |
5% Capped Account |
0 |
| Property Deed Transaction History (Recorded in the County Clerk's Office) | ||||||||||
|---|---|---|---|---|---|---|---|---|---|---|
| Date | Type | Book | Page | Price | Grantor | Grantee | ||||
|
12/20/2006 |
|
Other |
$0 |
SECRETARY OF VETERANS AFFAIRS |
JOYNER GARDNER JERELL |
|||||
|
5/19/2006 |
|
Hmstd Off & |
$0 |
WINBORN DANARD DONNIE |
SECRETARY OF VETERANS AFFAIRS |
|||||
|
12/31/2003 |
|
Deeds |
$63,500 |
CLARK BRYAN E & DIANA J |
WINBORN DANARD DONNIE |
|||||
|
9/27/2003 |
|
Deeds |
$36,000 |
CSULITS MATHIAS & MARIA DIEROLF THERESIA |
CLARK BRYAN E & DIANA J |
|||||
|
11/14/1997 |
|
Historical |
$35,000 |
MCINTYRE JERRY E & MARGARET P |
CSULITS MATHIAS & MARIA |
|||||
| Last Mailed Notice of Value (N.O.V.) Information/History | ||||||||
|---|---|---|---|---|---|---|---|---|
| Year | Date | Market Value | Taxable Market Value | Gross Assessed | Exemption | Net Assessed | ||
|
2026 |
02/06/2026 |
130,500 |
95,814 |
10,538 |
0 |
10,538 |
||
|
2025 |
01/31/2025 |
132,500 |
91,252 |
10,036 |
0 |
10,036 |
||
|
2024 |
01/22/2024 |
117,000 |
86,907 |
9,559 |
0 |
9,559 |
||
|
2023 |
01/23/2023 |
104,000 |
82,769 |
9,104 |
0 |
9,104 |
||
|
2022 |
02/22/2022 |
93,500 |
78,828 |
8,670 |
0 |
8,670 |
||
| Property Building Permit History | |||||||||||
|---|---|---|---|---|---|---|---|---|---|---|---|
| Issued | Permit # | Provided by | Bldg # | Description | Est Construction Cost | Status | |||||
| No Building Permit records returned. | |||||||||||
| Click button on building number to access detailed information: | ||||||
|---|---|---|---|---|---|---|
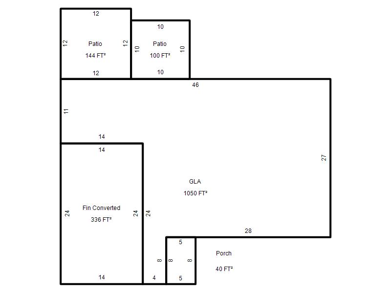
| Bldg # | Vacant/Improved Land | Bldg Description | Year Built | SqFt | # Stories | |
|
1 |
Improved |
Ranch 1 Story |
1962 |
1,050 |
1 Stories |
|