|
|
|
| Larry Stein Oklahoma County Assessor (405) 713-1200 - Public Access System |
|
|
|
|
|
|
| Real Property Display - Screen Produced 3/19/2026 4:18:31 AM | ||||
|---|---|---|---|---|
| Account: R150104140 | Type: Residential | Location: |
308 W PEACH ST |
|
| Building Name/Occupant: |
|
MIDWEST CITY |
||
| Owner Name 1: | APEX INVESTMENTS LLC |
Parcel PIN#: |
1440-15-010-4140 |
|
| Owner Name 2: | 1/4 section #: |
1440 |
||
| Owner Name 3: | Parent Acct: |
|
||
| Billing Address: | PO BOX 7761 | Tax District: |
|
|
| City, State, Zip | MOORE , OK 73153 | School System: |
Mid-Del #52 |
|
|
Country: (If noted) |
Land Size: |
0.1814 Acres |
||
|
Land Value: 22,515 |
|
|||
|
Sect 10-T11N-R2W Qtr NW |
SPECKMAN HEIGHTS ADD
Block
009
Lot
010
|
|||
| Full Legal Description: SPECKMAN HEIGHTS ADD 009 010 |
| Photo & Sketch (if available) | Comp Sales (ordered by relevancy) |
|
||||||||||||||||||
|
||||||||||||||||||||
| Value History (*The County Treasurer 405-713-1300 posts & collects actual tax amounts. Contact information HERE) | |||||||||||||
|---|---|---|---|---|---|---|---|---|---|---|---|---|---|
| Year | Market Value | Taxable Mkt Value | Gross Assessed | Exemption | Net Assessed | Millage | Est. Tax | Tax Savings | |||||
|
2025 |
160,000 |
116,777 |
12,844 |
0 |
12,844 |
119.58 |
$1,536 |
$569 |
|||||
|
2024 |
150,500 |
111,217 |
12,233 |
0 |
12,233 |
122.51 |
$1,499 |
$529 |
|||||
|
2023 |
133,500 |
105,921 |
11,650 |
0 |
11,650 |
117.71 |
$1,371 |
$357 |
|||||
|
2022 |
121,500 |
100,878 |
11,096 |
0 |
11,096 |
116.64 |
$1,294 |
$265 |
|||||
|
2021 |
104,000 |
96,075 |
10,568 |
0 |
10,568 |
119.45 |
$1,262 |
$104 |
|||||
| Property Account Status/Adjustments/Exemptions | ||
|---|---|---|
| Account # | Exemption Description | Amount |
|
R150104140 |
5% Capped Account |
0 |
| Property Deed Transaction History (Recorded in the County Clerk's Office) | ||||||||||
|---|---|---|---|---|---|---|---|---|---|---|
| Date | Type | Book | Page | Price | Grantor | Grantee | ||||
|
4/16/2018 |
|
Hmstd Off & |
$0 |
S & L SOLUTIONS LLC |
APEX INVESTMENTS LLC |
|||||
|
1/19/2018 |
|
Deeds |
$7,500 |
WRIGHT ROBBIN DALE |
S & L SOLUTIONS LLC |
|||||
|
1/12/2018 |
|
Hmstd Off & |
$0 |
WRIGHT WANDA BETH |
WRIGHT GEORGE AL JR |
|||||
|
11/12/2001 |
|
Hmstd Off & |
$0 |
WRIGHT PAUL D ETAL WRIGHT ROBBIN DALE |
WRIGHT ROBBIN DALE |
|||||
|
10/31/2001 |
|
Hmstd Off & |
$0 |
WRIGHT G A JR & W |
WRIGHT PAUL D WRIGHT ROBBIN DALE |
|||||
| Last Mailed Notice of Value (N.O.V.) Information/History | ||||||||
|---|---|---|---|---|---|---|---|---|
| Year | Date | Market Value | Taxable Market Value | Gross Assessed | Exemption | Net Assessed | ||
|
2026 |
02/06/2026 |
157,500 |
122,615 |
13,487 |
0 |
13,487 |
||
|
2025 |
01/31/2025 |
160,000 |
116,777 |
12,844 |
0 |
12,844 |
||
|
2024 |
01/22/2024 |
150,500 |
111,217 |
12,233 |
0 |
12,233 |
||
|
2023 |
01/23/2023 |
133,500 |
105,921 |
11,650 |
0 |
11,650 |
||
|
2022 |
02/22/2022 |
121,500 |
100,878 |
11,096 |
0 |
11,096 |
||
| Property Building Permit History | |||||||||||
|---|---|---|---|---|---|---|---|---|---|---|---|
| Issued | Permit # | Provided by | Bldg # | Description | Est Construction Cost | Status | |||||
| No Building Permit records returned. | |||||||||||
| Click button on building number to access detailed information: | ||||||
|---|---|---|---|---|---|---|
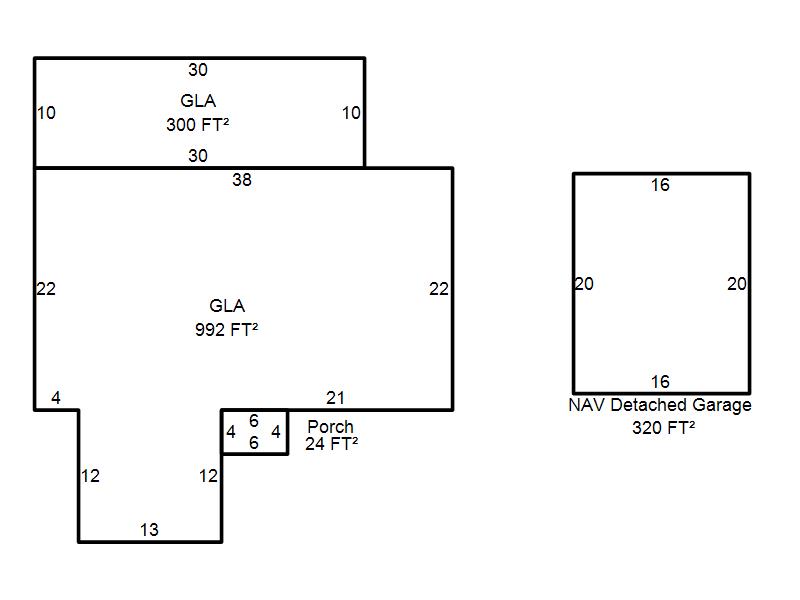
| Bldg # | Vacant/Improved Land | Bldg Description | Year Built | SqFt | # Stories | |
|
1 |
Improved |
Ranch 1 Story |
1973 |
1,292 |
1 Stories |
|