Larry Stein Oklahoma County Assessor (405) 713-1200 - Public Access System
Home Contact Us Guest Book Map Search New Search
Real Property Display - Screen Produced   4/27/2026 3:31:31 PM 
Account: R267024025  Type: Residential

  

Location:

20227 SE 15TH ST

Building Name/Occupant:

 

UNINCORPORATED

Owner Name 1:  CAMPBELL JOHN D

Parcel PIN#:

1007-26-702-4025

Owner Name 2:  CAMPBELL PAMELA A 1/4 section #:

1007

Owner Name 3:    Parent Acct:

 

Billing Address:  20227 SE 15TH ST Tax District:

City, State, Zip  HARRAH, OK  73045-6415 School System:

Harrah #7

Country: (If noted)

  

Land Size:

1.1100  Acres

Personal Property

Land Value: 40,102 

Treasurer:

Sect 2-T11N-R1E Qtr SW

 POTTAWATOMIE TOWNSHIP   Block 000  Lot 000   Subdivision Sales
 Full Legal Description:  POTTAWATOMIE TOWNSHIP PT SW4 SEC 2 11N 1E BEG 329.55FT E OF SW/C SE4 SW4 SW4 TH N329.24FT E164FT S329.26FT W164FT TO BEG SUBJ TO 33FT RD EASEMENT ON S

NOTE:  The following sales may or may not be used to determine Fair Market Value

Photo & Sketch (if available) Sales  Sales Report

 1740 S HARRAH RD UNINCORPORATED, OK

05/22/2025

 $240,000 

 2970 GREENLEAF DR UNINCORPORATED, OK

02/23/2024

 $195,000 

 19806 AARON DR UNINCORPORATED, OK

02/28/2025

 $240,000 

 2950 GREENLEAF DR UNINCORPORATED, OK

08/29/2023

 $174,000 

 18498 SE 15TH ST UNINCORPORATED, OK

03/14/2025

 $185,000 

 19111 BRIARWOOD RD UNINCORPORATED, OK

07/26/2024

 $230,000 

Value History  (*The County Treasurer 405-713-1300 posts & collects actual tax amounts.  Contact information  HERE)
Year Market Value Taxable Mkt Value Gross Assessed Exemption Net Assessed Millage Est. Tax Tax Savings

2026

204,500 

151,379 

16,650 

1,000 

15,650 

107.54 

$1,683 

$736 

2025

216,000 

146,970 

16,165 

1,000 

15,165 

107.54 

$1,631 

$924 

2024

209,500 

142,690 

15,695 

1,000 

14,695 

110.62 

$1,626 

$924 

[1/10]
Property Account Status/Adjustments/Exemptions
Account # Exemption Description Amount

R267024025

3% Cap Homestead

R267024025

Homestead

1,000 

Property Deed Transaction History   (Recorded in the County Clerk's Office)
Date Type Book Page Price Grantor Grantee

7/31/2013

Deeds

12323

1239

 $108,000 

RACKLEY JIM

CAMPBELL JOHN D

7/30/2013

Deeds

12323

892

 $0 

O & R RANCH LLC

RACKLEY JIM

8/10/2011

Hmstd Off &

11761

457

 $0 

O & R RANCH LLC

RACKLEY JIM

[1/3]
Last Mailed Notice of Value (N.O.V.) Information/History
Year Date Market Value Taxable Market Value Gross Assessed Exemption Net Assessed

2026

02/06/2026

204,500 

151,379 

16,650 

1,000 

15,650 

2025

01/31/2025

216,000 

146,970 

16,165 

1,000 

15,165 

2024

01/22/2024

209,500 

142,690 

15,695 

1,000 

14,695 

[1/4]
Property Building Permit History
Issued Permit # Provided by Bldg # Description Est Construction Cost Status

3/28/2022

BP-2022-35

1

Storage Buil

13,500 

Inactive

Click button below to access detailed information and additional property photos:
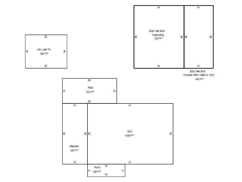
  Bldg # Vacant/Improved Land Bldg Description Year Built SqFt # Stories

Click

1

Improved

Ranch 1 Story

1977

1,189 

1 Stories