Larry Stein Oklahoma County Assessor (405) 713-1200 - Public Access System
Home Contact Us Guest Book Map Search New Search
Real Property Display - Screen Produced   4/25/2026 6:38:21 PM 
Account: R257154001  Type: Residential

  

Location:

4821 NW 206TH ST

Building Name/Occupant:

 

UNINCORPORATED

Owner Name 1:  HARTH JOHN

Parcel PIN#:

4858-25-715-4001

Owner Name 2:  HARTH KIESHA 1/4 section #:

4858

Owner Name 3:    Parent Acct:

 

Billing Address:  21909 MILITARY AVE Tax District:

City, State, Zip  EDMOND, OK  73012 School System:

Deer Creek #6

Country: (If noted)

  

Land Size:

0.5000  Acres

Personal Property

Land Value: 19,000 

Treasurer:

Sect 15-T14N-R4W Qtr SE

 DEER CREEK TOWNSHIP   Block 000  Lot 000   Subdivision Sales
 Full Legal Description:  DEER CREEK TOWNSHIP PT OF SE4 SEC 15 14N 4W BEG 1213.2FT W OF SE/C OF SE4 TH W119.4FT N182.4FT E119.4FT S182.4FT TO BEG CONT .50ACRS MORE OR LESS SUBJ TO ESMTS OF RECORD

NOTE:  The following sales may or may not be used to determine Fair Market Value

Photo & Sketch (if available) Sales  Sales Report

 21151 N MERIDIAN AVE UNINCORPORATED, OK

11/21/2025

 $250,000 

 23555 N MACARTHUR BLVD UNINCORPORATED, OK

05/21/2024

 $264,000 

 23655 N MACARTHUR BLVD UNINCORPORATED, OK

09/12/2025

 $380,000 

 23825 N MACARTHUR BLVD UNINCORPORATED, OK

08/21/2023

 $227,000 

 7475 NW 215TH ST UNINCORPORATED, OK

04/16/2025

 $450,000 

 7320 NW 220TH ST EDMOND, OK

08/08/2024

 $250,000 

Value History  (*The County Treasurer 405-713-1300 posts & collects actual tax amounts.  Contact information  HERE)
Year Market Value Taxable Mkt Value Gross Assessed Exemption Net Assessed Millage Est. Tax Tax Savings

2026

165,500 

131,274 

14,439 

14,439 

114.35 

$1,651 

$431 

2025

167,500 

125,023 

13,751 

13,751 

114.35 

$1,573 

$534 

2024

146,000 

119,070 

13,097 

13,097 

116.19 

$1,522 

$344 

[1/10]
Property Account Status/Adjustments/Exemptions
Account # Exemption Description Amount

R257154001

5% Capped Account

Property Deed Transaction History   (Recorded in the County Clerk's Office)
Date Type Book Page Price Grantor Grantee

6/30/2021

Mult Parcel

14815

868

 $385,000 

BOLING ZOELLA

HARTH JOHN

4/9/2019

Hmstd Off &

13993

988

 $0 

BOLING ZOELLA

SHANNON EDWARD

10/7/1999

Deeds

7700

1980

 $0 

BOLING ZOELLA

BOLING ZOELLA

[1/2]
Last Mailed Notice of Value (N.O.V.) Information/History
Year Date Market Value Taxable Market Value Gross Assessed Exemption Net Assessed

2026

02/06/2026

165,500 

131,274 

14,439 

14,439 

2025

01/31/2025

167,500 

125,023 

13,751 

13,751 

2024

01/22/2024

146,000 

119,070 

13,097 

13,097 

[1/5]
Property Building Permit History
Issued Permit # Provided by Bldg # Description Est Construction Cost Status
No Building Permit records returned.
Click button below to access detailed information and additional property photos:
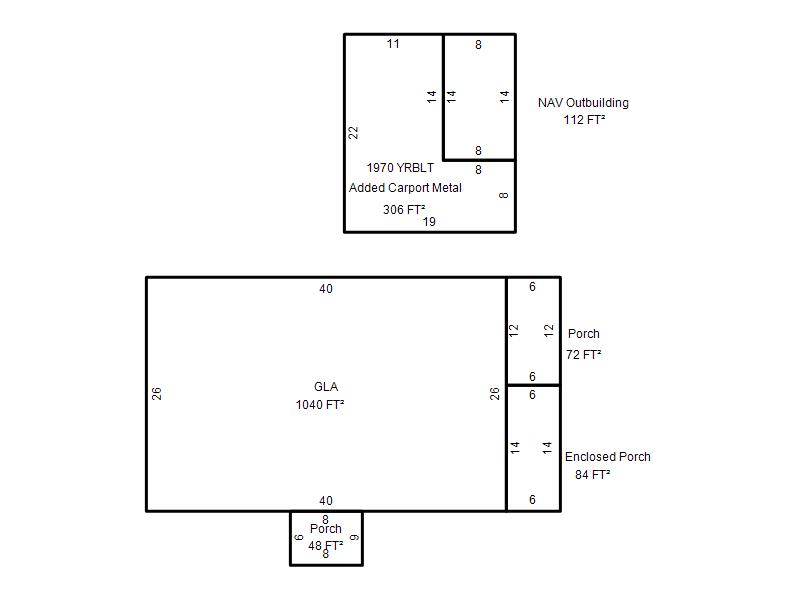
  Bldg # Vacant/Improved Land Bldg Description Year Built SqFt # Stories

Click

1

Improved

Ranch 1 Story

1950

1,040 

1 Stories