Larry Stein Oklahoma County Assessor (405) 713-1200 - Public Access System
Home Contact Us Guest Book Map Search New Search
Real Property Display - Screen Produced   4/25/2026 8:11:05 PM 
Account: R257173060  Type: Residential

  

Location:

7456 NW 220TH ST

Building Name/Occupant:

 

UNINCORPORATED

Owner Name 1:  DIAZ EZEQUIEL & MARIA

Parcel PIN#:

4865-25-717-3060

Owner Name 2:    1/4 section #:

4865

Owner Name 3:    Parent Acct:

 

Billing Address:  7456 NW 220TH ST Tax District:

City, State, Zip  EDMOND, OK  73025 School System:

Deer Creek #6

Country: (If noted)

  

Land Size:

10.0000  Acres

Personal Property

Land Value: 157,500 

Treasurer:

Sect 17-T14N-R4W Qtr NE

 DEER CREEK TOWNSHIP   Block 000  Lot 000   Subdivision Sales
 Full Legal Description:  DEER CREEK TOWNSHIP 000 000 PT E 1/2 SEC 17 14N 4W BEG 1982.06FT W OF NE/C NE4 TH S1319.14FT W330.38FT N1319.32FT E330.35FT TO BEG CONT 10ACRS MOREOR LESS AKA TR 2 SUBJ TO ESMTS OF RECORD

NOTE:  The following sales may or may not be used to determine Fair Market Value

Photo & Sketch (if available) Sales  Sales Report

 7475 NW 215TH ST UNINCORPORATED, OK

04/16/2025

 $450,000 

 23655 N MACARTHUR BLVD UNINCORPORATED, OK

09/12/2025

 $380,000 

 6501 NW 178TH ST UNINCORPORATED, OK

06/18/2025

 $375,000 

 20755 N COUNCIL RD UNINCORPORATED, OK

02/29/2024

 $475,000 

 21151 N MERIDIAN AVE UNINCORPORATED, OK

11/21/2025

 $250,000 

 7325 NW 215TH ST UNINCORPORATED, OK

05/30/2024

 $398,000 

Value History  (*The County Treasurer 405-713-1300 posts & collects actual tax amounts.  Contact information  HERE)
Year Market Value Taxable Mkt Value Gross Assessed Exemption Net Assessed Millage Est. Tax Tax Savings

2026

530,500 

434,036 

47,743 

1,000 

46,743 

114.35 

$5,345 

$1,328 

2025

535,500 

421,395 

46,353 

1,000 

45,353 

114.35 

$5,186 

$1,550 

2024

526,000 

409,122 

45,002 

1,000 

44,002 

116.19 

$5,113 

$1,610 

[1/10]
Property Account Status/Adjustments/Exemptions
Account # Exemption Description Amount

R257173060

3% Cap Homestead

R257173060

Homestead

1,000 

Property Deed Transaction History   (Recorded in the County Clerk's Office)
Date Type Book Page Price Grantor Grantee

10/2/2020

Deeds

14503

1559

 $0 

LOZANO EZEQUIEL DIAZ

DIAZ EZEQUIEL & MARIA

5/16/2019

Deeds

14029

1092

 $350,000 

PRIMARY INVESTMENTS I LLC

DIAZ EZEQUIEL & MARIA

12/6/2018

Deeds

13905

1229

 $237,000 

RUNGE PATRICIA M & ROSS K

PRIMARY INVESTMENTS I LLC

[1/2]
Last Mailed Notice of Value (N.O.V.) Information/History
Year Date Market Value Taxable Market Value Gross Assessed Exemption Net Assessed

2026

02/06/2026

530,500 

434,036 

47,743 

1,000 

46,743 

2025

01/31/2025

535,500 

421,395 

46,353 

1,000 

45,353 

2024

01/22/2024

526,000 

409,122 

45,002 

1,000 

44,002 

[1/5]
Property Building Permit History
Issued Permit # Provided by Bldg # Description Est Construction Cost Status

11/8/2012

10446962

COUNTY

1

Remodeled

Inactive

Click button below to access detailed information and additional property photos:
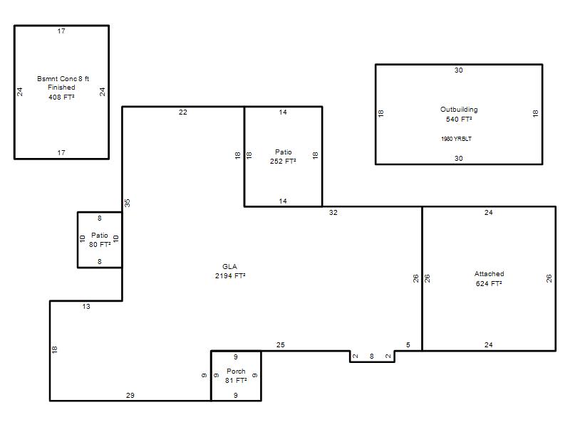
  Bldg # Vacant/Improved Land Bldg Description Year Built SqFt # Stories

Click

1

Improved

Ranch 1 Story

1977

2,194 

1 Stories