Larry Stein Oklahoma County Assessor (405) 713-1200 - Public Access System
Home Contact Us Guest Book Map Search New Search
Real Property Display - Screen Produced   4/27/2026 9:23:42 AM 
Account: R257034035  Type: Residential

  

Location:

5041 NW 234TH ST

Building Name/Occupant:

 

UNINCORPORATED

Owner Name 1:  BOHN SHELLEY J

Parcel PIN#:

4810-25-703-4035

Owner Name 2:    1/4 section #:

4810

Owner Name 3:    Parent Acct:

4810-25-703-4050

Billing Address:  5041 NW 234TH ST Tax District:

City, State, Zip  EDMOND, OK  73025-9502 School System:

Deer Creek #6

Country: (If noted)

  

Land Size:

2.0300  Acres

Personal Property

Land Value: 84,448 

Treasurer:

Sect 3-T14N-R4W Qtr SE

 DEER CREEK TOWNSHIP   Block 000  Lot 000   Subdivision Sales
 Full Legal Description:  DEER CREEK TOWNSHIP PT OF SE4 SEC 3 14N 4W BEG 178.29FT E OF SW/C SE4 TH N227.10FT E400.13FT S215.70FT W400FT TO BEG CONT 2.03 ACRS MORE OR LESS

NOTE:  The following sales may or may not be used to determine Fair Market Value

Photo & Sketch (if available) Sales  Sales Report

 4117 NW 220TH ST UNINCORPORATED, OK

07/21/2025

 $540,000 

 21151 N MERIDIAN AVE UNINCORPORATED, OK

11/21/2025

 $250,000 

 23655 N MACARTHUR BLVD UNINCORPORATED, OK

09/12/2025

 $380,000 

 23555 N MACARTHUR BLVD UNINCORPORATED, OK

05/21/2024

 $264,000 

 6700 NW 220TH ST UNINCORPORATED, OK

06/24/2022

 $351,500 

 7009 NW 222ND ST UNINCORPORATED, OK

02/25/2025

 $340,000 

Value History  (*The County Treasurer 405-713-1300 posts & collects actual tax amounts.  Contact information  HERE)
Year Market Value Taxable Mkt Value Gross Assessed Exemption Net Assessed Millage Est. Tax Tax Savings

2026

363,500 

281,522 

30,966 

30,966 

114.35 

$3,541 

$1,031 

2025

360,500 

268,117 

29,492 

29,492 

114.35 

$3,373 

$1,162 

2024

319,234 

255,350 

28,088 

28,088 

116.19 

$3,264 

$816 

[1/5]
Property Account Status/Adjustments/Exemptions
Account # Exemption Description Amount

R257034035

5% Capped Account

Property Deed Transaction History   (Recorded in the County Clerk's Office)
Date Type Book Page Price Grantor Grantee

12/29/2023

Deeds

15769

576

 $31,000 

4571 LLC

BOHN SHELLEY J

11/7/2014

Deeds

12692

1217

 $0 

BARNES DAVID R TRUSTEE BOHN SHELLEY J IRREV FAMILY TRUST

BOHN SHELLEY J

10/31/2012

Hmstd Off &

12072

530

 $0 

BARNES SHELBY D & DOROTHY J

BARNES SHELLEY JANEEN AKA BOHN

[1/2]
Last Mailed Notice of Value (N.O.V.) Information/History
Year Date Market Value Taxable Market Value Gross Assessed Exemption Net Assessed

2026

02/06/2026

363,500 

281,522 

30,966 

30,966 

2025

01/31/2025

360,500 

268,117 

29,492 

29,492 

2024

01/22/2024

319,000 

255,116 

28,062 

28,062 

[1/5]
Property Building Permit History
Issued Permit # Provided by Bldg # Description Est Construction Cost Status

10/22/2009

10445538

COUNTY

1

Main Dwellin

185,000 

Inactive

Click button below to access detailed information and additional property photos:
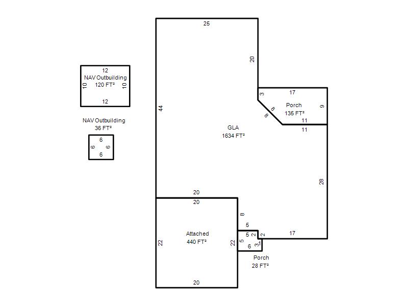
  Bldg # Vacant/Improved Land Bldg Description Year Built SqFt # Stories

Click

1

Improved

Ranch 1 Story

2010

1,634 

1 Stories