|
|
|
| Larry Stein Oklahoma County Assessor (405) 713-1200 - Public Access System |
|
|
|
|
|
|
| Real Property Display - Screen Produced 3/12/2026 5:35:25 AM | ||||
|---|---|---|---|---|
| Account: R213492290 | Type: Residential | Location: |
20614 FRONTIER AVE |
|
| Building Name/Occupant: |
|
HARRAH |
||
| Owner Name 1: | SNODGRASS JARON |
Parcel PIN#: |
1005-21-349-2290 |
|
| Owner Name 2: | 1/4 section #: |
1005 |
||
| Owner Name 3: | Parent Acct: |
1005-26-702-1040 |
||
| Billing Address: | 20614 FRONTIER AVE | Tax District: |
|
|
| City, State, Zip | HARRAH, OK 73045-5510 | School System: |
Harrah #7 |
|
|
Country: (If noted) |
Land Size: |
0.2321 Acres |
||
|
Land Value: 43,000 |
|
|||
|
Sect 2-T11N-R1E Qtr NE |
FALL CREEK PH 3
Block
006
Lot
016
|
|||
| Full Legal Description: FALL CREEK PH 3 BLK 006 LOT 016 |
| Photo & Sketch (if available) | Comp Sales (ordered by relevancy) |
|
||||||||||||||||||
|
||||||||||||||||||||
| Value History (*The County Treasurer 405-713-1300 posts & collects actual tax amounts. Contact information HERE) | |||||||||||||
|---|---|---|---|---|---|---|---|---|---|---|---|---|---|
| Year | Market Value | Taxable Mkt Value | Gross Assessed | Exemption | Net Assessed | Millage | Est. Tax | Tax Savings | |||||
|
2025 |
239,500 |
179,629 |
19,758 |
1,000 |
18,758 |
107.54 |
$2,017 |
$816 |
|||||
|
2024 |
235,500 |
174,398 |
19,183 |
1,000 |
18,183 |
110.62 |
$2,011 |
$854 |
|||||
|
2023 |
214,000 |
169,319 |
18,624 |
1,000 |
17,624 |
97.88 |
$1,725 |
$579 |
|||||
|
2022 |
187,500 |
164,388 |
18,082 |
1,000 |
17,082 |
99.50 |
$1,700 |
$352 |
|||||
|
2021 |
167,000 |
159,600 |
17,556 |
0 |
17,556 |
99.52 |
$1,747 |
$81 |
|||||
| Property Account Status/Adjustments/Exemptions | ||
|---|---|---|
| Account # | Exemption Description | Amount |
|
R213492290 |
Homestead |
1,000 |
|
R213492290 |
3% Cap Homestead |
0 |
| Property Deed Transaction History (Recorded in the County Clerk's Office) | |||||||
|---|---|---|---|---|---|---|---|
| Date | Type | Book | Page | Price | Grantor | Grantee | |
|
5/24/2016 |
|
Deeds |
$143,000 |
HARRAH LAND FC LLC |
SNODGRASS JARON |
||
| Last Mailed Notice of Value (N.O.V.) Information/History | ||||||||
|---|---|---|---|---|---|---|---|---|
| Year | Date | Market Value | Taxable Market Value | Gross Assessed | Exemption | Net Assessed | ||
|
2026 |
02/06/2026 |
242,500 |
185,017 |
20,351 |
1,000 |
19,351 |
||
|
2025 |
01/31/2025 |
239,500 |
179,629 |
19,758 |
1,000 |
18,758 |
||
|
2024 |
01/22/2024 |
235,500 |
174,398 |
19,183 |
1,000 |
18,183 |
||
|
2023 |
01/23/2023 |
214,000 |
169,319 |
18,624 |
1,000 |
17,624 |
||
|
2022 |
02/22/2022 |
187,500 |
167,580 |
18,433 |
0 |
18,433 |
||
| Property Building Permit History | ||||||
|---|---|---|---|---|---|---|
| Issued | Permit # | Provided by | Bldg # | Description | Est Construction Cost | Status |
|
1/1/1900 |
10483625 |
HARRAH |
1 |
Main Dwellin |
0 |
Inactive |
| Click button on building number to access detailed information: | ||||||
|---|---|---|---|---|---|---|
| Bldg # | Vacant/Improved Land | Bldg Description | Year Built | SqFt | # Stories | |
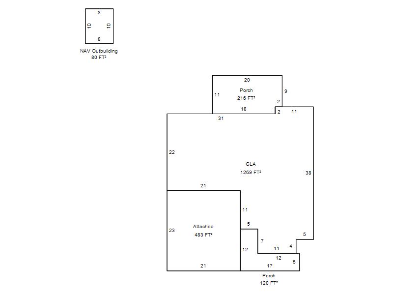
|
1 |
Improved |
Ranch 1 Story |
2016 |
1,269 |
1 Stories |
|