|
|
|
| Larry Stein Oklahoma County Assessor (405) 713-1200 - Public Access System |
|
|
|
|
|
|
| Real Property Display - Screen Produced 3/16/2026 11:03:56 AM | ||||
|---|---|---|---|---|
| Account: R073582890 | Type: Residential | Location: |
817 SE 42ND ST |
|
| Building Name/Occupant: |
|
OKLAHOMA CITY |
||
| Owner Name 1: | GALLEGOS YOLANDA |
Parcel PIN#: |
1658-07-358-2890 |
|
| Owner Name 2: | 1/4 section #: |
1658 |
||
| Owner Name 3: | Parent Acct: |
|
||
| Billing Address: | 817 SE 42ND ST | Tax District: |
|
|
| City, State, Zip | OKLAHOMA CITY, OK 73129-5411 | School System: |
Oklahoma City #89 |
|
|
Country: (If noted) |
Land Size: |
0.1705 Acres |
||
|
Land Value: 6,683 |
|
|||
|
Sect 15-T11N-R3W Qtr SE |
FRUITLAND ADDITION
Block
006
Lot
000
|
|||
| Full Legal Description: FRUITLAND ADDITION 006 000 E55FT OF W305FT OF S 1/2 |
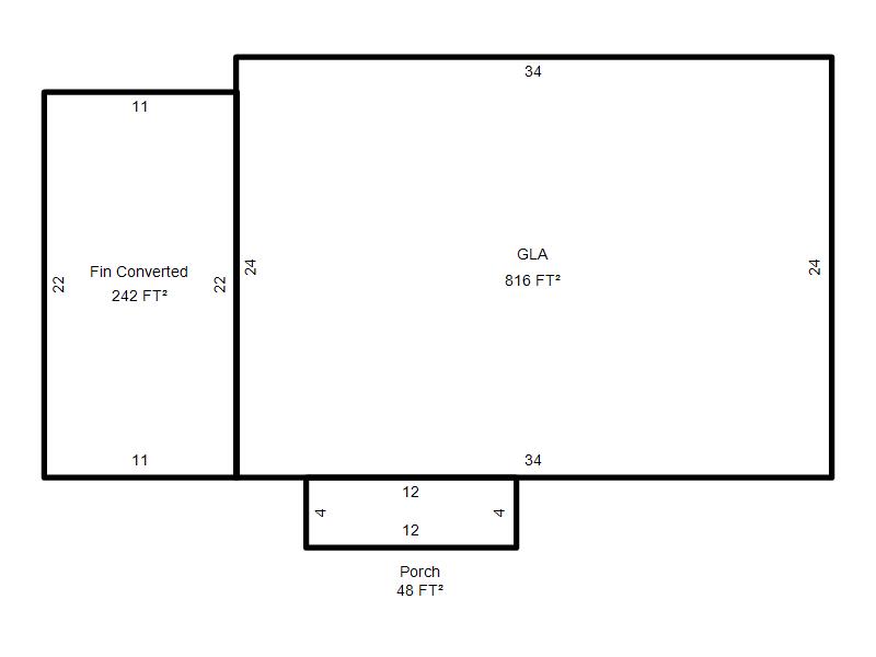
| Photo & Sketch (if available) | Comp Sales (ordered by relevancy) |
|
||||||||||||||||||
|
||||||||||||||||||||
| Value History (*The County Treasurer 405-713-1300 posts & collects actual tax amounts. Contact information HERE) | |||||||||||||
|---|---|---|---|---|---|---|---|---|---|---|---|---|---|
| Year | Market Value | Taxable Mkt Value | Gross Assessed | Exemption | Net Assessed | Millage | Est. Tax | Tax Savings | |||||
|
2025 |
79,000 |
35,910 |
3,950 |
2,000 |
1,950 |
119.02 |
$232 |
$802 |
|||||
|
2024 |
71,000 |
35,910 |
3,950 |
2,000 |
1,950 |
119.70 |
$233 |
$701 |
|||||
|
2023 |
66,000 |
35,910 |
3,950 |
2,000 |
1,950 |
118.33 |
$231 |
$628 |
|||||
|
2022 |
55,500 |
35,910 |
3,950 |
2,000 |
1,950 |
112.69 |
$220 |
$468 |
|||||
|
2021 |
46,500 |
35,910 |
3,950 |
2,000 |
1,950 |
112.29 |
$219 |
$355 |
|||||
| Property Account Status/Adjustments/Exemptions | ||
|---|---|---|
| Account # | Exemption Description | Amount |
|
R073582890 |
Freeze Senior Valuation |
0 |
|
R073582890 |
Senior Additional Homestead |
1,000 |
|
R073582890 |
3% Cap Homestead |
0 |
|
R073582890 |
Homestead |
1,000 |
| Property Deed Transaction History (Recorded in the County Clerk's Office) | |||||||
|---|---|---|---|---|---|---|---|
| Date | Type | Book | Page | Price | Grantor | Grantee | |
|
12/28/2000 |
|
Deeds |
$9,000 |
VICKREY CHRIS A & R NICHOLE |
GALLEGOS YOLANDA |
||
|
3/26/1996 |
|
Historical |
$3,500 |
SMITH GERALD W |
VICKREY CHRIS A & R NICHOLE |
||
|
3/14/1991 |
|
Historical |
$6,300 |
ADMR OF VETERANS AFFAIRS |
SMITH GERALD W |
||
|
5/16/1989 |
|
Historical |
$0 |
KIRBY MARK E |
ADMR OF VETERANS AFFAIRS |
||
|
4/1/1986 |
|
Historical |
$0 |
|
KIRBY MARK E |
||
| Last Mailed Notice of Value (N.O.V.) Information/History | ||||||||
|---|---|---|---|---|---|---|---|---|
| Year | Date | Market Value | Taxable Market Value | Gross Assessed | Exemption | Net Assessed | ||
|
2026 |
02/06/2026 |
82,500 |
35,910 |
3,950 |
2,000 |
1,950 |
||
|
2025 |
01/31/2025 |
79,000 |
35,910 |
3,950 |
2,000 |
1,950 |
||
|
2024 |
01/22/2024 |
71,000 |
35,910 |
3,950 |
2,000 |
1,950 |
||
|
2023 |
01/23/2023 |
66,000 |
35,910 |
3,950 |
2,000 |
1,950 |
||
|
2022 |
02/22/2022 |
55,500 |
35,910 |
3,950 |
2,000 |
1,950 |
||
| Property Building Permit History | |||||||||||
|---|---|---|---|---|---|---|---|---|---|---|---|
| Issued | Permit # | Provided by | Bldg # | Description | Est Construction Cost | Status | |||||
| No Building Permit records returned. | |||||||||||
| Click button on building number to access detailed information: | ||||||
|---|---|---|---|---|---|---|
| Bldg # | Vacant/Improved Land | Bldg Description | Year Built | SqFt | # Stories | |
|
1 |
Improved |
Ranch 1 Story |
1958 |
816 |
1 Stories |
|