|
|
|
| Larry Stein Oklahoma County Assessor (405) 713-1200 - Public Access System |
|
|
|
|
|
|
| Real Property Display - Screen Produced 3/17/2026 6:21:55 AM | ||||
|---|---|---|---|---|
| Account: R078311050 | Type: Residential | Location: |
1421 SW 71ST ST |
|
| Building Name/Occupant: |
|
OKLAHOMA CITY |
||
| Owner Name 1: | FOK BERYL |
Parcel PIN#: |
1715-07-831-1050 |
|
| Owner Name 2: | 1/4 section #: |
1715 |
||
| Owner Name 3: | Parent Acct: |
|
||
| Billing Address: | 1421 SW 71ST ST | Tax District: |
|
|
| City, State, Zip | OKLAHOMA CITY, OK 73159 | School System: |
Oklahoma City #89 |
|
|
Country: (If noted) |
Land Size: |
0.2782 Acres |
||
|
Land Value: 43,026 |
|
|||
|
Sect 29-T11N-R3W Qtr SW |
O T WITTENS SOUTHRIDGE SEC 4
Block
001
Lot
000
|
|||
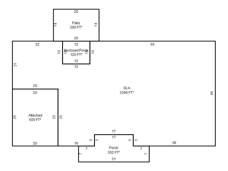
| Full Legal Description: O T WITTENS SOUTHRIDGE SEC 4 001 000 W66FT OF LOT 6 & E35FT OF LOT 7 |
| Photo & Sketch (if available) | Comp Sales (ordered by relevancy) |
|
||||||||||||||||||
|
||||||||||||||||||||
| Value History (*The County Treasurer 405-713-1300 posts & collects actual tax amounts. Contact information HERE) | |||||||||||||
|---|---|---|---|---|---|---|---|---|---|---|---|---|---|
| Year | Market Value | Taxable Mkt Value | Gross Assessed | Exemption | Net Assessed | Millage | Est. Tax | Tax Savings | |||||
|
2025 |
313,500 |
215,538 |
23,709 |
0 |
23,709 |
119.02 |
$2,822 |
$1,283 |
|||||
|
2024 |
304,000 |
205,275 |
22,580 |
0 |
22,580 |
119.70 |
$2,703 |
$1,300 |
|||||
|
2023 |
195,500 |
195,500 |
21,505 |
0 |
21,505 |
118.33 |
$2,545 |
$0 |
|||||
|
2022 |
151,500 |
151,500 |
16,665 |
0 |
16,665 |
112.69 |
$1,878 |
$0 |
|||||
|
2021 |
151,500 |
151,500 |
16,665 |
0 |
16,665 |
112.29 |
$1,871 |
$0 |
|||||
| Property Account Status/Adjustments/Exemptions | ||
|---|---|---|
| Account # | Exemption Description | Amount |
|
R078311050 |
5% Capped Account |
0 |
| Property Deed Transaction History (Recorded in the County Clerk's Office) | |||||||
|---|---|---|---|---|---|---|---|
| Date | Type | Book | Page | Price | Grantor | Grantee | |
|
6/6/2022 |
|
Deeds |
$191,000 |
STEINLE PETER WILLIAM |
FOK BERYL |
||
|
8/6/2018 |
|
Deeds |
$150,000 |
NOKES BARRY PHILIP |
STEINLE PETER WILLIAM |
||
|
4/24/2018 |
|
Hmstd Off & |
$0 |
JOHNSON MARGARET ANN |
NOKES BARRY PHILIP |
||
|
3/23/1994 |
|
Historical |
$0 |
JOHNSON TOM L & MARGARET A |
JOHNSON MARGARET ANN |
||
|
2/1/1978 |
|
Historical |
$0 |
|
JOHNSON TOM L & MARGARET A |
||
| Last Mailed Notice of Value (N.O.V.) Information/History | ||||||||
|---|---|---|---|---|---|---|---|---|
| Year | Date | Market Value | Taxable Market Value | Gross Assessed | Exemption | Net Assessed | ||
|
2026 |
02/06/2026 |
317,500 |
226,314 |
24,894 |
0 |
24,894 |
||
|
2025 |
01/31/2025 |
313,500 |
215,538 |
23,709 |
0 |
23,709 |
||
|
2024 |
01/22/2024 |
304,000 |
205,275 |
22,580 |
0 |
22,580 |
||
|
2023 |
01/23/2023 |
195,500 |
195,500 |
21,505 |
0 |
21,505 |
||
|
2018 |
05/15/2018 |
192,500 |
183,362 |
20,170 |
0 |
20,170 |
||
| Property Building Permit History | |||||||||||
|---|---|---|---|---|---|---|---|---|---|---|---|
| Issued | Permit # | Provided by | Bldg # | Description | Est Construction Cost | Status | |||||
| No Building Permit records returned. | |||||||||||
| Click button on building number to access detailed information: | ||||||
|---|---|---|---|---|---|---|
| Bldg # | Vacant/Improved Land | Bldg Description | Year Built | SqFt | # Stories | |
|
1 |
Improved |
Ranch 1 Story |
1970 |
3,389 |
1 Stories |
|