|
|
|
| Larry Stein Oklahoma County Assessor (405) 713-1200 - Public Access System |
|
|
|
|
|
|
| Real Property Display - Screen Produced 3/17/2026 6:23:01 AM | ||||
|---|---|---|---|---|
| Account: R078311320 | Type: Residential | Location: |
1400 SW 71ST ST |
|
| Building Name/Occupant: |
|
OKLAHOMA CITY |
||
| Owner Name 1: | WILLIAMS RYAN REV LIV TRUST |
Parcel PIN#: |
1715-07-831-1320 |
|
| Owner Name 2: | 1/4 section #: |
1715 |
||
| Owner Name 3: | Parent Acct: |
|
||
| Billing Address: | 1400 SW 71ST ST | Tax District: |
|
|
| City, State, Zip | OKLAHOMA CITY, OK 73159-3406 | School System: |
Oklahoma City #89 |
|
|
Country: (If noted) |
Land Size: |
0.2798 Acres |
||
|
Land Value: 43,275 |
|
|||
|
Sect 29-T11N-R3W Qtr SW |
O T WITTENS SOUTHRIDGE SEC 4
Block
004
Lot
000
|
|||
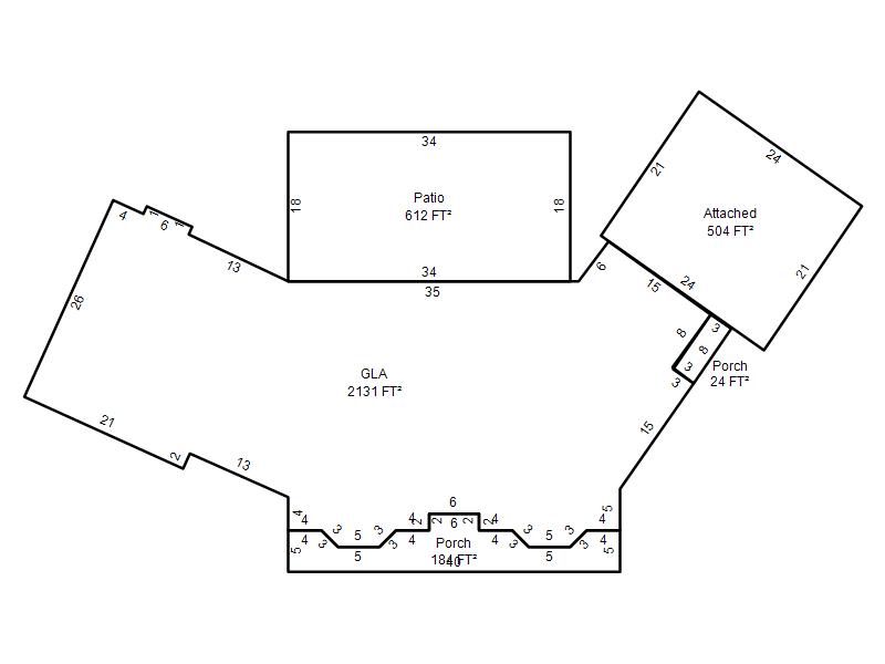
| Full Legal Description: O T WITTENS SOUTHRIDGE SEC 4 004 000 LOT 1 & E26FT OF LOT 2 |
| Photo & Sketch (if available) | Comp Sales (ordered by relevancy) |
|
||||||||||||||||||
|
||||||||||||||||||||
| Value History (*The County Treasurer 405-713-1300 posts & collects actual tax amounts. Contact information HERE) | |||||||||||||
|---|---|---|---|---|---|---|---|---|---|---|---|---|---|
| Year | Market Value | Taxable Mkt Value | Gross Assessed | Exemption | Net Assessed | Millage | Est. Tax | Tax Savings | |||||
|
2025 |
233,000 |
166,934 |
18,361 |
1,000 |
17,361 |
119.02 |
$2,067 |
$984 |
|||||
|
2024 |
227,500 |
162,072 |
17,827 |
1,000 |
16,827 |
119.70 |
$2,014 |
$981 |
|||||
|
2023 |
208,000 |
157,352 |
17,308 |
1,000 |
16,308 |
118.33 |
$1,930 |
$778 |
|||||
|
2022 |
181,500 |
152,769 |
16,804 |
1,000 |
15,804 |
112.69 |
$1,781 |
$469 |
|||||
|
2021 |
158,000 |
148,320 |
16,315 |
1,000 |
15,315 |
112.29 |
$1,720 |
$232 |
|||||
| Property Account Status/Adjustments/Exemptions | ||
|---|---|---|
| Account # | Exemption Description | Amount |
|
R078311320 |
Homestead |
1,000 |
|
R078311320 |
3% Cap Homestead |
0 |
| Property Deed Transaction History (Recorded in the County Clerk's Office) | ||||||||||
|---|---|---|---|---|---|---|---|---|---|---|
| Date | Type | Book | Page | Price | Grantor | Grantee | ||||
|
10/20/2025 |
|
Deeds |
$0 |
WILLIAMS RYAN |
WILLIAMS RYAN REV LIV TRUST |
|||||
|
5/7/2025 |
|
Deeds |
$0 |
WILLIAMS RYAN TRS |
WILLIAMS RYAN |
|||||
|
11/13/2024 |
|
Deeds |
$0 |
WILLIAMS RYAN GREGORY |
WILLIAMS RYAN TRS |
|||||
|
7/22/2024 |
|
Deeds |
$0 |
WILLIAMS RYAN G & JOVANNA |
WILLIAMS RYAN GREGORY |
|||||
|
5/6/2014 |
|
Deeds |
$145,000 |
GIL SERGIO & EVANGELINA |
WILLIAMS RYAN G & JOVANNA |
|||||
| Last Mailed Notice of Value (N.O.V.) Information/History | ||||||||
|---|---|---|---|---|---|---|---|---|
| Year | Date | Market Value | Taxable Market Value | Gross Assessed | Exemption | Net Assessed | ||
|
2026 |
02/06/2026 |
236,000 |
171,942 |
18,912 |
1,000 |
17,912 |
||
|
2025 |
01/31/2025 |
233,000 |
166,934 |
18,361 |
1,000 |
17,361 |
||
|
2024 |
01/22/2024 |
227,500 |
162,072 |
17,827 |
1,000 |
16,827 |
||
|
2023 |
01/23/2023 |
208,000 |
157,352 |
17,308 |
1,000 |
16,308 |
||
|
2022 |
02/22/2022 |
181,500 |
152,769 |
16,804 |
1,000 |
15,804 |
||
| Property Building Permit History | |||||||||||
|---|---|---|---|---|---|---|---|---|---|---|---|
| Issued | Permit # | Provided by | Bldg # | Description | Est Construction Cost | Status | |||||
| No Building Permit records returned. | |||||||||||
| Click button on building number to access detailed information: | ||||||
|---|---|---|---|---|---|---|
| Bldg # | Vacant/Improved Land | Bldg Description | Year Built | SqFt | # Stories | |
|
1 |
Improved |
Ranch 1 Story |
1966 |
2,131 |
1 Stories |
|