Larry Stein Oklahoma County Assessor (405) 713-1200 - Public Access System
Home Contact Us Guest Book Map Search New Search
Real Property Display - Screen Produced   4/25/2026 5:30:55 AM 
Account: R203561040  Type: Residential

  

Location:

16341 RIVERROCK CIR

Building Name/Occupant:

 

CHOCTAW

Owner Name 1:  CHILDRESS RANDY A & AUDRA

Parcel PIN#:

1024-20-356-1040

Owner Name 2:    1/4 section #:

1024

Owner Name 3:    Parent Acct:

1021-16-867-0445

Billing Address:  16341 RIVER ROCK CIR Tax District:

City, State, Zip  CHOCTAW, OK  73020 School System:

Choctaw #4

Country: (If noted)

  

Land Size:

1.0005  Acres

Personal Property

Land Value: 76,038 

Treasurer:

Sect 6-T11N-R1E Qtr NW

 STONEGATE CROSSING SEC 3   Block 005  Lot 005   Subdivision Sales
 Full Legal Description:  STONEGATE CROSSING SEC 3 BLK 005 LOT 005

NOTE:  The following sales may or may not be used to determine Fair Market Value

Photo & Sketch (if available) Sales  Sales Report

 16552 ROSEROCK CIR CHOCTAW, OK

08/31/2023

 $490,000 

 16917 FOX TROT CT CHOCTAW, OK

10/04/2024

 $561,000 

 16322 SANDSTONE CIR CHOCTAW, OK

07/15/2025

 $550,000 

 16956 FOX TROT CT CHOCTAW, OK

07/24/2023

 $520,000 

 16371 SANDSTONE CIR CHOCTAW, OK

06/27/2025

 $550,000 

 16542 SANDSTONE CIR CHOCTAW, OK

05/07/2025

 $665,000 

Value History  (*The County Treasurer 405-713-1300 posts & collects actual tax amounts.  Contact information  HERE)
Year Market Value Taxable Mkt Value Gross Assessed Exemption Net Assessed Millage Est. Tax Tax Savings

2026

509,500 

496,975 

54,667 

1,000 

53,667 

117.21 

$6,290 

$279 

2025

482,500 

482,500 

53,075 

1,000 

52,075 

117.21 

$6,104 

$117 

2024

470,500 

470,500 

51,755 

1,000 

50,755 

116.35 

$5,905 

$116 

[1/8]
Property Account Status/Adjustments/Exemptions
Account # Exemption Description Amount

R203561040

3% Cap Homestead

R203561040

Homestead

1,000 

Property Deed Transaction History   (Recorded in the County Clerk's Office)
Date Type Book Page Price Grantor Grantee

5/17/2022

Deeds

15161

629

 $415,000 

SCHRAMM NOLAN C

CHILDRESS RANDY A & AUDRA

10/29/2015

Deeds

12968

882

 $275,000 

SPIEGEL ERIC I & CARMEN I

SCHRAMM NOLAN C

8/25/2008

Deeds

10895

992

 $0 

SWM & SONS INC

SPIEGEL ERIC I & CARMEN I

[1/2]
Last Mailed Notice of Value (N.O.V.) Information/History
Year Date Market Value Taxable Market Value Gross Assessed Exemption Net Assessed

2026

02/06/2026

509,500 

496,975 

54,667 

1,000 

53,667 

2025

01/31/2025

482,500 

482,500 

53,075 

1,000 

52,075 

2024

03/01/2024

470,500 

470,500 

51,755 

51,755 

[1/4]
Property Building Permit History
Issued Permit # Provided by Bldg # Description Est Construction Cost Status

9/30/2022

 

1

Garage

  

Inactive

3/7/2008

10353056

CHOCTAW

1

Main Dwellin

116,270 

Inactive

Click button below to access detailed information and additional property photos:
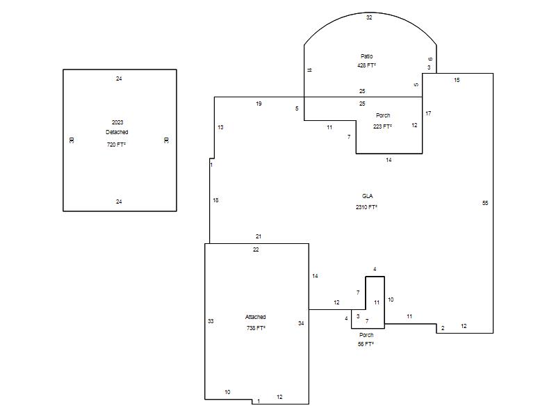
  Bldg # Vacant/Improved Land Bldg Description Year Built SqFt # Stories

Click

1

Improved

Ranch 1 Story

2008

2,310 

1 Stories