|
|
|
| Larry Stein Oklahoma County Assessor (405) 713-1200 - Public Access System |
|
|
|
|
|
|
| Real Property Display - Screen Produced 3/14/2026 10:57:52 AM | ||||
|---|---|---|---|---|
| Account: R197911325 | Type: Residential | Location: |
16688 SE 20TH ST |
|
| Building Name/Occupant: |
|
CHOCTAW |
||
| Owner Name 1: | IZELL PATRICIA F REV TRUST |
Parcel PIN#: |
1025-19-791-1325 |
|
| Owner Name 2: | 1/4 section #: |
1025 |
||
| Owner Name 3: | Parent Acct: |
|
||
| Billing Address: | 16688 SE 20TH ST | Tax District: |
|
|
| City, State, Zip | CHOCTAW, OK 73020-6436 | School System: |
Choctaw #4 |
|
|
Country: (If noted) |
Land Size: |
0.9800 Acres |
||
|
Land Value: 32,340 |
|
|||
|
Sect 7-T11N-R1E Qtr NE |
MORAN ACRES REPLAT
Block
007
Lot
008
|
|||
| Full Legal Description: MORAN ACRES REPLAT BLK 007 LOT 008 |
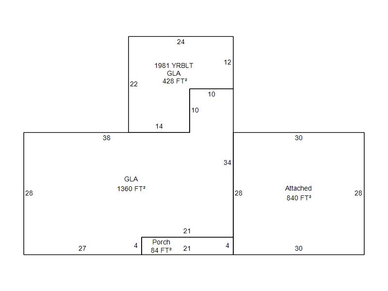
| Photo & Sketch (if available) | Comp Sales (ordered by relevancy) |
|
||||||||||||||||||
|
||||||||||||||||||||
| Value History (*The County Treasurer 405-713-1300 posts & collects actual tax amounts. Contact information HERE) | |||||||||||||
|---|---|---|---|---|---|---|---|---|---|---|---|---|---|
| Year | Market Value | Taxable Mkt Value | Gross Assessed | Exemption | Net Assessed | Millage | Est. Tax | Tax Savings | |||||
|
2025 |
239,000 |
100,870 |
11,095 |
1,000 |
10,095 |
117.21 |
$1,183 |
$1,898 |
|||||
|
2024 |
225,000 |
100,870 |
11,095 |
1,000 |
10,095 |
116.35 |
$1,175 |
$1,705 |
|||||
|
2023 |
223,000 |
100,870 |
11,095 |
1,000 |
10,095 |
118.06 |
$1,192 |
$1,704 |
|||||
|
2022 |
208,500 |
100,870 |
11,095 |
1,000 |
10,095 |
116.14 |
$1,173 |
$1,491 |
|||||
|
2021 |
175,000 |
100,870 |
11,095 |
1,000 |
10,095 |
116.17 |
$1,173 |
$1,063 |
|||||
| Property Account Status/Adjustments/Exemptions | ||
|---|---|---|
| Account # | Exemption Description | Amount |
|
R197911325 |
Freeze Senior Valuation |
0 |
|
R197911325 |
3% Cap Homestead |
0 |
|
R197911325 |
Homestead |
1,000 |
| Property Deed Transaction History (Recorded in the County Clerk's Office) | |||||||
|---|---|---|---|---|---|---|---|
| Date | Type | Book | Page | Price | Grantor | Grantee | |
|
7/15/2013 |
|
Deeds |
$0 |
IZELL JAMES & PATRICIA F |
IZELL PATRICIA F REV TRUST |
||
|
7/15/2013 |
|
Deeds |
$0 |
IZELL JAMES D & PATRICIA F |
IZELL PATRICIA F REV TRUST |
||
|
11/11/1911 |
|
Historical |
$0 |
|
IZELL JAMES D & PATRICIA F |
||
| Last Mailed Notice of Value (N.O.V.) Information/History | ||||||||
|---|---|---|---|---|---|---|---|---|
| Year | Date | Market Value | Taxable Market Value | Gross Assessed | Exemption | Net Assessed | ||
|
2025 |
01/31/2025 |
239,000 |
100,870 |
11,095 |
1,000 |
10,095 |
||
|
2024 |
01/22/2024 |
225,000 |
100,870 |
11,095 |
1,000 |
10,095 |
||
|
2023 |
01/23/2023 |
223,000 |
100,870 |
11,095 |
1,000 |
10,095 |
||
|
2022 |
02/22/2022 |
208,500 |
100,870 |
11,095 |
1,000 |
10,095 |
||
|
2021 |
02/24/2021 |
175,000 |
100,870 |
11,095 |
1,000 |
10,095 |
||
| Property Building Permit History | |||||||||||
|---|---|---|---|---|---|---|---|---|---|---|---|
| Issued | Permit # | Provided by | Bldg # | Description | Est Construction Cost | Status | |||||
| No Building Permit records returned. | |||||||||||
| Click button on building number to access detailed information: | ||||||
|---|---|---|---|---|---|---|
| Bldg # | Vacant/Improved Land | Bldg Description | Year Built | SqFt | # Stories | |
|
1 |
Improved |
Ranch 1 Story |
1978 |
1,788 |
1 Stories |
|