|
|
|
| Larry Stein Oklahoma County Assessor (405) 713-1200 - Public Access System |
|
|
|
|
|
|
| Real Property Display - Screen Produced 3/14/2026 9:20:37 AM | ||||
|---|---|---|---|---|
| Account: R197911225 | Type: Residential | Location: |
16588 SE 18TH ST |
|
| Building Name/Occupant: |
|
CHOCTAW |
||
| Owner Name 1: | KOSTIUK GRACE PAPPAN |
Parcel PIN#: |
1025-19-791-1225 |
|
| Owner Name 2: | 1/4 section #: |
1025 |
||
| Owner Name 3: | Parent Acct: |
|
||
| Billing Address: | 16588 SE 18TH ST | Tax District: |
|
|
| City, State, Zip | CHOCTAW, OK 73020-6403 | School System: |
Choctaw #4 |
|
|
Country: (If noted) |
Land Size: |
1.1500 Acres |
||
|
Land Value: 37,950 |
|
|||
|
Sect 7-T11N-R1E Qtr NE |
MORAN ACRES REPLAT
Block
005
Lot
004
|
|||
| Full Legal Description: MORAN ACRES REPLAT BLK 005 LOT 004 |
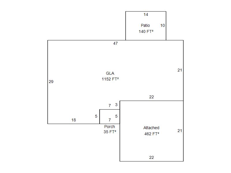
| Photo & Sketch (if available) | Comp Sales (ordered by relevancy) |
|
||||||||||||||||||
|
||||||||||||||||||||
| Value History (*The County Treasurer 405-713-1300 posts & collects actual tax amounts. Contact information HERE) | |||||||||||||
|---|---|---|---|---|---|---|---|---|---|---|---|---|---|
| Year | Market Value | Taxable Mkt Value | Gross Assessed | Exemption | Net Assessed | Millage | Est. Tax | Tax Savings | |||||
|
2025 |
197,000 |
196,350 |
21,598 |
0 |
21,598 |
117.21 |
$2,532 |
$8 |
|||||
|
2024 |
187,000 |
187,000 |
20,570 |
0 |
20,570 |
116.35 |
$2,393 |
$0 |
|||||
|
2023 |
176,500 |
143,545 |
15,789 |
0 |
15,789 |
118.06 |
$1,864 |
$428 |
|||||
|
2022 |
164,500 |
136,710 |
15,038 |
0 |
15,038 |
116.14 |
$1,747 |
$355 |
|||||
|
2021 |
140,000 |
130,200 |
14,322 |
0 |
14,322 |
116.17 |
$1,664 |
$125 |
|||||
| Property Account Status/Adjustments/Exemptions | ||
|---|---|---|
| Account # | Exemption Description | Amount |
|
R197911225 |
5% Capped Account |
0 |
| Property Deed Transaction History (Recorded in the County Clerk's Office) | ||||||||||
|---|---|---|---|---|---|---|---|---|---|---|
| Date | Type | Book | Page | Price | Grantor | Grantee | ||||
|
10/10/2023 |
|
Deeds |
$205,000 |
PHILLIPS GLENNA RAY |
KOSTIUK GRACE PAPPAN |
|||||
|
10/4/2018 |
|
Deeds |
$131,000 |
MCLENNAN WES & LINDA |
PHILLIPS GLENNA RAY |
|||||
|
1/3/2014 |
|
Deeds |
$59,500 |
GRECH HUGH MICHAEL & LISA R |
MCLENNAN WES & LINDA |
|||||
|
8/16/2005 |
|
Deeds |
$82,000 |
MIZE CHARLES D & JANET LEE |
GRECH HUGH MICHAEL & LISA R |
|||||
|
6/26/1992 |
|
Historical |
$45,000 |
STANLEY CAROLYN S |
MIZE CHARLES D & JANET LEE |
|||||
| Last Mailed Notice of Value (N.O.V.) Information/History | ||||||||
|---|---|---|---|---|---|---|---|---|
| Year | Date | Market Value | Taxable Market Value | Gross Assessed | Exemption | Net Assessed | ||
|
2025 |
01/31/2025 |
197,000 |
196,350 |
21,598 |
0 |
21,598 |
||
|
2024 |
01/22/2024 |
187,000 |
187,000 |
20,570 |
0 |
20,570 |
||
|
2023 |
01/23/2023 |
176,500 |
143,545 |
15,789 |
0 |
15,789 |
||
|
2022 |
02/22/2022 |
164,500 |
136,710 |
15,038 |
0 |
15,038 |
||
|
2021 |
02/24/2021 |
140,000 |
130,200 |
14,322 |
0 |
14,322 |
||
| Property Building Permit History | |||||||||||
|---|---|---|---|---|---|---|---|---|---|---|---|
| Issued | Permit # | Provided by | Bldg # | Description | Est Construction Cost | Status | |||||
| No Building Permit records returned. | |||||||||||
| Click button on building number to access detailed information: | ||||||
|---|---|---|---|---|---|---|
| Bldg # | Vacant/Improved Land | Bldg Description | Year Built | SqFt | # Stories | |
|
1 |
Improved |
Ranch 1 Story |
1975 |
1,152 |
1 Stories |
|