|
|
|
| Larry Stein Oklahoma County Assessor (405) 713-1200 - Public Access System |
|
|
|
|
|
|
| Real Property Display - Screen Produced 3/14/2026 9:20:37 AM | ||||
|---|---|---|---|---|
| Account: R197911285 | Type: Residential | Location: |
2299 BINGHAM DR |
|
| Building Name/Occupant: |
|
CHOCTAW |
||
| Owner Name 1: | RAMIREZ JOSE E DORADO |
Parcel PIN#: |
1025-19-791-1285 |
|
| Owner Name 2: | 1/4 section #: |
1025 |
||
| Owner Name 3: | Parent Acct: |
|
||
| Billing Address: | 2299 BINGHAM DR | Tax District: |
|
|
| City, State, Zip | CHOCTAW, OK 73020-6463 | School System: |
Choctaw #4 |
|
|
Country: (If noted) |
Land Size: |
1.1300 Acres |
||
|
Land Value: 37,290 |
|
|||
|
Sect 7-T11N-R1E Qtr NE |
MORAN ACRES REPLAT
Block
006
Lot
000
|
|||
| Full Legal Description: MORAN ACRES REPLAT BLK 006 PT LOTS 3 & 4 BEG 466FT S OF NE/C BLK 6 TH W305FT S161.91FTE305FT N161.27FT TO BEG |
| Photo & Sketch (if available) | Comp Sales (ordered by relevancy) |
|
||||||||||||||||||
|
||||||||||||||||||||
| Value History (*The County Treasurer 405-713-1300 posts & collects actual tax amounts. Contact information HERE) | |||||||||||||
|---|---|---|---|---|---|---|---|---|---|---|---|---|---|
| Year | Market Value | Taxable Mkt Value | Gross Assessed | Exemption | Net Assessed | Millage | Est. Tax | Tax Savings | |||||
|
2025 |
258,000 |
258,000 |
28,380 |
0 |
28,380 |
117.21 |
$3,326 |
$0 |
|||||
|
2024 |
249,000 |
249,000 |
27,390 |
0 |
27,390 |
116.35 |
$3,187 |
$0 |
|||||
|
2023 |
205,000 |
205,000 |
22,550 |
0 |
22,550 |
118.06 |
$2,662 |
$0 |
|||||
|
2022 |
188,000 |
160,965 |
17,706 |
0 |
17,706 |
116.14 |
$2,056 |
$345 |
|||||
|
2021 |
160,000 |
153,300 |
16,863 |
0 |
16,863 |
116.17 |
$1,959 |
$86 |
|||||
| Property Account Status/Adjustments/Exemptions | ||
|---|---|---|
| Account # | Exemption Description | Amount |
|
R197911285 |
5% Capped Account |
0 |
| Property Deed Transaction History (Recorded in the County Clerk's Office) | |||||||
|---|---|---|---|---|---|---|---|
| Date | Type | Book | Page | Price | Grantor | Grantee | |
|
6/9/2023 |
|
Deeds |
$240,000 |
MAPLE TREE LLC |
RAMIREZ JOSE E DORADO |
||
|
12/9/2022 |
|
Deeds |
$108,000 |
RIDDLE PAUL WADE |
MAPLE TREE LLC |
||
|
9/23/2002 |
|
Deeds |
$0 |
RIDDLE PAUL W & PATRICIA |
RIDDLE PAUL WADE |
||
|
10/29/1999 |
|
Deeds |
$88,000 |
DAVIS SCOTTY P & JANA K |
RIDDLE PAUL W & PATRICIA |
||
|
8/1/1980 |
|
Historical |
$0 |
|
DAVIS SCOTTY P & JANA K |
||
| Last Mailed Notice of Value (N.O.V.) Information/History | ||||||||
|---|---|---|---|---|---|---|---|---|
| Year | Date | Market Value | Taxable Market Value | Gross Assessed | Exemption | Net Assessed | ||
|
2025 |
01/31/2025 |
258,000 |
258,000 |
28,380 |
0 |
28,380 |
||
|
2024 |
01/22/2024 |
249,000 |
249,000 |
27,390 |
0 |
27,390 |
||
|
2023 |
01/23/2023 |
205,000 |
205,000 |
22,550 |
0 |
22,550 |
||
|
2022 |
02/22/2022 |
188,000 |
160,965 |
17,706 |
0 |
17,706 |
||
|
2021 |
02/24/2021 |
160,000 |
153,300 |
16,863 |
0 |
16,863 |
||
| Property Building Permit History | |||||||||||
|---|---|---|---|---|---|---|---|---|---|---|---|
| Issued | Permit # | Provided by | Bldg # | Description | Est Construction Cost | Status | |||||
| No Building Permit records returned. | |||||||||||
| Click button on building number to access detailed information: | ||||||
|---|---|---|---|---|---|---|
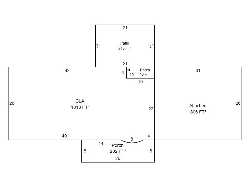
| Bldg # | Vacant/Improved Land | Bldg Description | Year Built | SqFt | # Stories | |
|
1 |
Improved |
Ranch 1 Story |
1977 |
1,318 |
1 Stories |
|