|
|
|
| Larry Stein Oklahoma County Assessor (405) 713-1200 - Public Access System |
|
|
|
|
|
|
| Real Property Display - Screen Produced 4/12/2026 2:24:30 PM | ||||
|---|---|---|---|---|
| Account: R063587160 | Type: Residential | Location: |
2756 NW 18TH ST |
|
| Building Name/Occupant: |
|
OKLAHOMA CITY |
||
| Owner Name 1: | BLALOCK JAMES M |
Parcel PIN#: |
2720-06-358-7160 |
|
| Owner Name 2: | BLALOCK DEBORAH S | 1/4 section #: |
2720 |
|
| Owner Name 3: | Parent Acct: |
|
||
| Billing Address: | 2756 NW 18TH ST | Tax District: |
|
|
| City, State, Zip | OKLAHOMA CITY, OK 73107-3935 | School System: |
Oklahoma City #89 |
|
|
Country: (If noted) |
Land Size: |
0.1722 Acres |
||
|
Land Value: 35,250 |
|
|||
|
Sect 30-T12N-R3W Qtr NW |
CRESTWOOD ADDITION
Block
016
Lot
000
|
|||
| Full Legal Description: CRESTWOOD ADDITION 016 000 LOTS 7 & 8 |
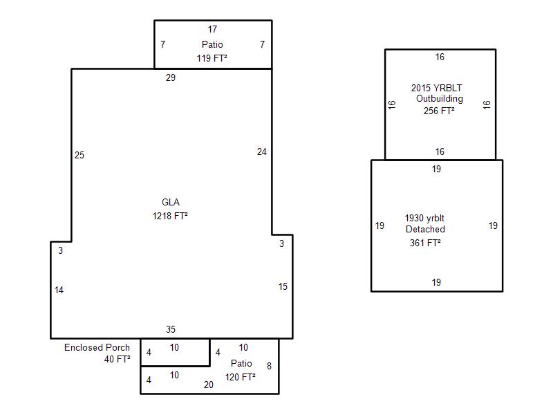
| Photo & Sketch (if available) | Comp Sales (ordered by relevancy) |
|
||||||||||||||||||
|
||||||||||||||||||||
| Value History (*The County Treasurer 405-713-1300 posts & collects actual tax amounts. Contact information HERE) | |||||||||||||
|---|---|---|---|---|---|---|---|---|---|---|---|---|---|
| Year | Market Value | Taxable Mkt Value | Gross Assessed | Exemption | Net Assessed | Millage | Est. Tax | Tax Savings | |||||
|
2026 |
220,000 |
220,000 |
24,200 |
0 |
24,200 |
122.90 |
$2,974 |
$0 |
|||||
|
2025 |
226,500 |
175,182 |
19,269 |
0 |
19,269 |
122.90 |
$2,368 |
$694 |
|||||
|
2024 |
216,000 |
166,840 |
18,351 |
0 |
18,351 |
123.89 |
$2,274 |
$670 |
|||||
|
2023 |
209,000 |
158,896 |
17,478 |
0 |
17,478 |
122.82 |
$2,147 |
$677 |
|||||
|
2022 |
171,500 |
151,330 |
16,644 |
0 |
16,644 |
117.63 |
$1,958 |
$261 |
|||||
| Property Account Status/Adjustments/Exemptions | ||||||
|---|---|---|---|---|---|---|
| Account # | Exemption Description | Amount | ||||
| No adjustment/exemption records returned. | ||||||
| Property Deed Transaction History (Recorded in the County Clerk's Office) | ||||||||||
|---|---|---|---|---|---|---|---|---|---|---|
| Date | Type | Book | Page | Price | Grantor | Grantee | ||||
|
3/18/2025 |
|
Deeds |
$300,000 |
LINDEMUTH MARY K |
BLALOCK JAMES M |
|||||
|
6/19/2013 |
|
Deeds |
$122,500 |
DWIGGINS CHASE E |
LINDEMUTH MARY K |
|||||
|
3/31/2010 |
|
Deeds |
$115,000 |
REEVES CHRIS & MELANIE |
DWIGGINS CHASE E |
|||||
|
6/11/2002 |
|
Deeds |
$0 |
REEVES WILLIAM CHRISTOPHER HART |
REEVES CHRIS & MELANIE |
|||||
|
3/29/2002 |
|
Deeds |
$70,000 |
FUDGE DAVID F & DEIRDRE C |
REEVES WILLIAM CHRISTOPHER HART |
|||||
| Last Mailed Notice of Value (N.O.V.) Information/History | ||||||||
|---|---|---|---|---|---|---|---|---|
| Year | Date | Market Value | Taxable Market Value | Gross Assessed | Exemption | Net Assessed | ||
|
2026 |
02/23/2026 |
220,000 |
220,000 |
24,200 |
0 |
24,200 |
||
|
2025 |
02/14/2025 |
226,500 |
175,182 |
19,269 |
0 |
19,269 |
||
|
2024 |
02/13/2024 |
216,000 |
166,840 |
18,351 |
0 |
18,351 |
||
|
2023 |
02/14/2023 |
209,000 |
158,896 |
17,478 |
0 |
17,478 |
||
|
2022 |
03/15/2022 |
171,500 |
151,330 |
16,644 |
0 |
16,644 |
||
| Property Building Permit History | |||||||||||
|---|---|---|---|---|---|---|---|---|---|---|---|
| Issued | Permit # | Provided by | Bldg # | Description | Est Construction Cost | Status | |||||
| No Building Permit records returned. | |||||||||||
| Click button on building number to access detailed information: | ||||||
|---|---|---|---|---|---|---|
| Bldg # | Vacant/Improved Land | Bldg Description | Year Built | SqFt | # Stories | |
|
1 |
Improved |
Ranch 1 Story |
1928 |
1,218 |
1 Stories |
|