|
|
|
| Larry Stein Oklahoma County Assessor (405) 713-1200 - Public Access System |
|
|
|
|
|
|
| Real Property Display - Screen Produced 4/15/2026 4:38:44 AM | ||||
|---|---|---|---|---|
| Account: R045009040 | Type: Residential | Location: |
1620 NW 17TH ST |
|
| Building Name/Occupant: |
|
OKLAHOMA CITY |
||
| Owner Name 1: | DAY SAMUEL |
Parcel PIN#: |
2713-04-500-9040 |
|
| Owner Name 2: | NICKEL KATE | 1/4 section #: |
2713 |
|
| Owner Name 3: | Parent Acct: |
2713-04-500-9036 |
||
| Billing Address: | 1620 NW 17TH ST | Tax District: |
|
|
| City, State, Zip | OKLAHOMA CITY, OK 73106 | School System: |
Oklahoma City #89 |
|
|
Country: (If noted) |
Land Size: |
0.0839 Acres |
||
|
Land Value: 20,284 |
|
|||
|
Sect 29-T12N-R3W Qtr NE |
UNIVERSITY ADDITION
Block
079
Lot
000
|
|||
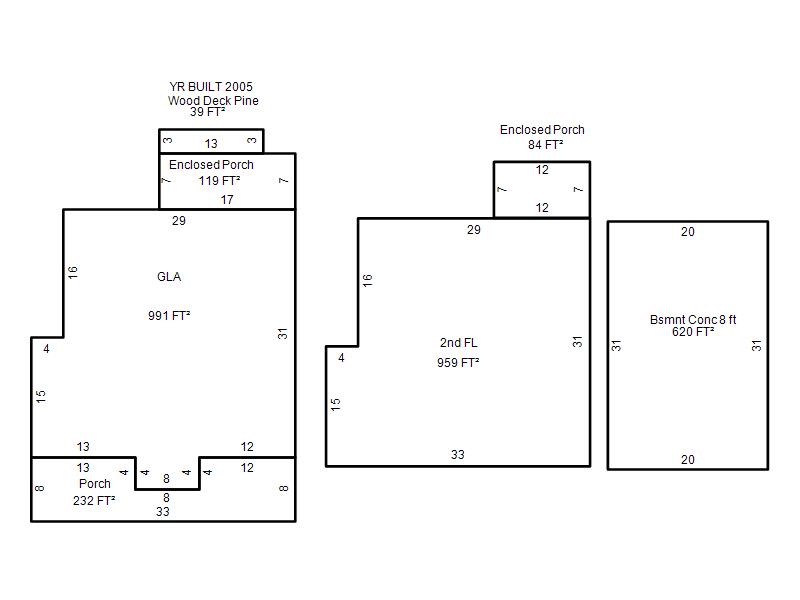
| Full Legal Description: UNIVERSITY ADDITION 079 PT OF LOTS 5 & 6 BEG NW/C LT 5 TH E35FT S5FT E5FT S71FT W30FT S64FT W10FT N140FT TO BEG CONT .0839 AC MORE OR LESS |
| Photo & Sketch (if available) | Comp Sales (ordered by relevancy) |
|
||||||||||||||||||
|
||||||||||||||||||||
| Value History (*The County Treasurer 405-713-1300 posts & collects actual tax amounts. Contact information HERE) | ||||||||
|---|---|---|---|---|---|---|---|---|
| Year | Market Value | Taxable Mkt Value | Gross Assessed | Exemption | Net Assessed | Millage | Est. Tax | Tax Savings |
|
2026 |
329,000 |
329,000 |
36,190 |
1,000 |
35,190 |
122.90 |
$4,325 |
$123 |
|
2025 |
322,000 |
319,815 |
35,179 |
1,000 |
34,179 |
122.90 |
$4,201 |
$152 |
|
2024 |
310,500 |
310,500 |
34,155 |
0 |
34,155 |
123.89 |
$4,231 |
$0 |
|
2023 |
431,000 |
431,000 |
47,410 |
1,000 |
46,410 |
122.82 |
$5,700 |
$123 |
|
2022 |
0 |
|
0 |
|
|
|
$ |
$ |
| Property Account Status/Adjustments/Exemptions | ||
|---|---|---|
| Account # | Exemption Description | Amount |
|
R045009040 |
Homestead |
1,000 |
|
R045009040 |
3% Cap Homestead |
0 |
| Property Deed Transaction History (Recorded in the County Clerk's Office) | ||||||||||
|---|---|---|---|---|---|---|---|---|---|---|
| Date | Type | Book | Page | Price | Grantor | Grantee | ||||
|
7/17/2023 |
|
Hmstd Off & |
$0 |
VITRUVIUS PROPERTIES LLC |
VITRUVIUS PROPERTIES LLC |
|||||
|
7/17/2023 |
|
Hmstd Off & |
$0 |
VITRUVIUS PROPERTIES LLC |
DAY SAMUEL |
|||||
|
11/23/2022 |
|
Hmstd Off & |
$0 |
VITRUVIUS PROPERTIES LLC |
VITRUVIUS PROPERTIES LLC |
|||||
|
11/23/2022 |
|
Deeds |
$430,000 |
VITRUVIUS PROPERTIES LLC |
DAY SAMUEL |
|||||
|
10/31/2022 |
|
Hmstd Off & |
$0 |
VITRUVIUS PROPERTIES LLC |
VITRUVIUS PROPERTIES LLC |
|||||
| Last Mailed Notice of Value (N.O.V.) Information/History | ||||||
|---|---|---|---|---|---|---|
| Year | Date | Market Value | Taxable Market Value | Gross Assessed | Exemption | Net Assessed |
|
2026 |
02/23/2026 |
329,000 |
329,000 |
36,190 |
1,000 |
35,190 |
|
2025 |
02/14/2025 |
322,000 |
319,815 |
35,179 |
1,000 |
34,179 |
|
2023 |
02/14/2023 |
431,000 |
431,000 |
47,410 |
1,000 |
46,410 |
| Property Building Permit History | |||||||||||
|---|---|---|---|---|---|---|---|---|---|---|---|
| Issued | Permit # | Provided by | Bldg # | Description | Est Construction Cost | Status | |||||
| No Building Permit records returned. | |||||||||||
| Click button on building number to access detailed information: | ||||||
|---|---|---|---|---|---|---|
| Bldg # | Vacant/Improved Land | Bldg Description | Year Built | SqFt | # Stories | |
|
1 |
Improved |
2 Story |
1910 |
1,950 |
2 Stories |
|