|
|
|
| Larry Stein Oklahoma County Assessor (405) 713-1200 - Public Access System |
|
|
|
|
|
|
| Real Property Display - Screen Produced 4/12/2026 6:08:43 PM | ||||
|---|---|---|---|---|
| Account: R060051830 | Type: Residential | Location: |
2641 W PARK PL |
|
| Building Name/Occupant: |
|
OKLAHOMA CITY |
||
| Owner Name 1: | RUSSELL DONALD T JR |
Parcel PIN#: |
2719-06-005-1830 |
|
| Owner Name 2: | 1/4 section #: |
2719 |
||
| Owner Name 3: | Parent Acct: |
|
||
| Billing Address: | 2641 W PARK PL | Tax District: |
|
|
| City, State, Zip | OKLAHOMA CITY, OK 73107 | School System: |
Oklahoma City #89 |
|
|
Country: (If noted) |
Land Size: |
0.1722 Acres |
||
|
Land Value: 32,625 |
|
|||
|
Sect 30-T12N-R3W Qtr SW |
MILLER BLVD RESUBDIVISION
Block
009
Lot
011
|
|||
| Full Legal Description: MILLER BLVD RESUBDIVISION 009 011 |
| Photo & Sketch (if available) | Comp Sales (ordered by relevancy) |
|
||||||||||||||||||
|
||||||||||||||||||||
| Value History (*The County Treasurer 405-713-1300 posts & collects actual tax amounts. Contact information HERE) | |||||||||||||
|---|---|---|---|---|---|---|---|---|---|---|---|---|---|
| Year | Market Value | Taxable Mkt Value | Gross Assessed | Exemption | Net Assessed | Millage | Est. Tax | Tax Savings | |||||
|
2026 |
207,000 |
166,355 |
18,298 |
1,000 |
17,298 |
122.90 |
$2,126 |
$672 |
|||||
|
2025 |
213,000 |
161,510 |
17,765 |
1,000 |
16,765 |
122.90 |
$2,061 |
$819 |
|||||
|
2024 |
209,000 |
156,806 |
17,248 |
1,000 |
16,248 |
123.89 |
$2,013 |
$835 |
|||||
|
2023 |
202,000 |
152,239 |
16,745 |
1,000 |
15,745 |
122.82 |
$1,934 |
$795 |
|||||
|
2022 |
165,000 |
147,805 |
16,258 |
1,000 |
15,258 |
117.63 |
$1,795 |
$340 |
|||||
| Property Account Status/Adjustments/Exemptions | ||
|---|---|---|
| Account # | Exemption Description | Amount |
|
R060051830 |
3% Cap Homestead |
0 |
|
R060051830 |
Homestead |
1,000 |
| Property Deed Transaction History (Recorded in the County Clerk's Office) | |||||||
|---|---|---|---|---|---|---|---|
| Date | Type | Book | Page | Price | Grantor | Grantee | |
|
1/31/2020 |
|
Deeds |
$138,000 |
CURREY STEPHANIE B |
RUSSELL DONALD T JR |
||
|
5/1/2007 |
|
Deeds |
$109,000 |
TASSLES ETC LLC |
CURREY STEPHANIE B |
||
|
9/14/2006 |
|
Deeds |
$53,000 |
FREDERICK ARTHUR D JR |
TASSLES ETC LLC |
||
|
3/14/2006 |
|
Deeds |
$0 |
FREDERICK ARTHUR D JR & SERENA |
FREDERICK ARTHUR D JR |
||
|
8/1/1975 |
|
Historical |
$0 |
|
FREDERICK ARTHUR D JR & SERENA |
||
| Last Mailed Notice of Value (N.O.V.) Information/History | ||||||||
|---|---|---|---|---|---|---|---|---|
| Year | Date | Market Value | Taxable Market Value | Gross Assessed | Exemption | Net Assessed | ||
|
2026 |
02/23/2026 |
207,000 |
166,355 |
18,298 |
1,000 |
17,298 |
||
|
2025 |
02/14/2025 |
213,000 |
161,510 |
17,765 |
1,000 |
16,765 |
||
|
2024 |
02/13/2024 |
209,000 |
156,806 |
17,248 |
1,000 |
16,248 |
||
|
2023 |
02/14/2023 |
202,000 |
152,239 |
16,745 |
1,000 |
15,745 |
||
|
2022 |
03/15/2022 |
165,000 |
147,805 |
16,258 |
1,000 |
15,258 |
||
| Property Building Permit History | |||||||||||
|---|---|---|---|---|---|---|---|---|---|---|---|
| Issued | Permit # | Provided by | Bldg # | Description | Est Construction Cost | Status | |||||
| No Building Permit records returned. | |||||||||||
| Click button on building number to access detailed information: | ||||||
|---|---|---|---|---|---|---|
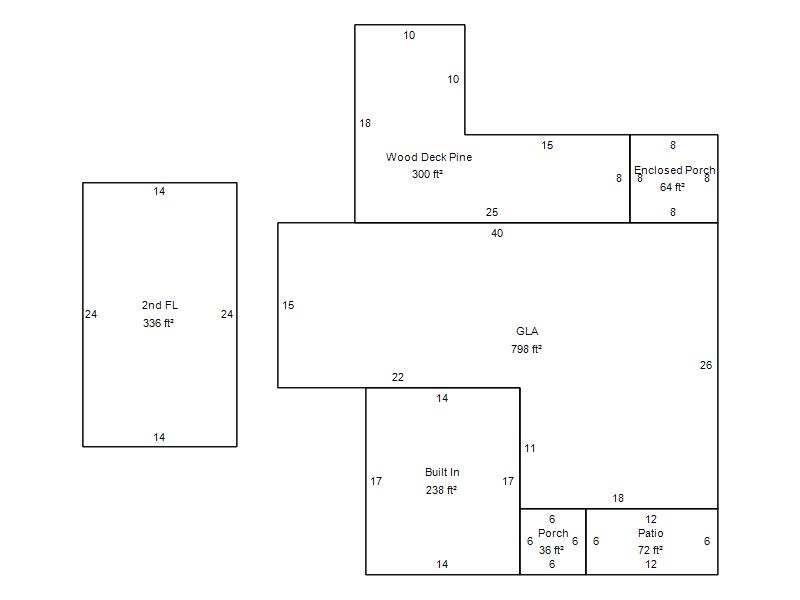
| Bldg # | Vacant/Improved Land | Bldg Description | Year Built | SqFt | # Stories | |
|
1 |
Improved |
1½ Story Fin |
1936 |
1,134 |
1.5 Stories |
|