|
|
|
| Larry Stein Oklahoma County Assessor (405) 713-1200 - Public Access System |
|
|
|
|
|
|
| Real Property Display - Screen Produced 4/1/2026 12:31:55 AM | ||||
|---|---|---|---|---|
| Account: R119881615 | Type: Residential | Location: |
6406 GRANDVIEW PL |
|
| Building Name/Occupant: |
|
OKLAHOMA CITY |
||
| Owner Name 1: | DB REAL ESTATE INVESTMENTS LLC |
Parcel PIN#: |
2623-11-988-1615 |
|
| Owner Name 2: | 1/4 section #: |
2623 |
||
| Owner Name 3: | Parent Acct: |
|
||
| Billing Address: | 6406 GRANDVIEW PL | Tax District: |
|
|
| City, State, Zip | OKLAHOMA CITY, OK 73116-4923 | School System: |
Oklahoma City #89 |
|
|
Country: (If noted) |
Land Size: |
0.2231 Acres |
||
|
Land Value: 60,750 |
|
|||
|
Sect 6-T12N-R3W Qtr SW |
TREADWELL GRAND VIEW CTRY CLB
Block
011
Lot
018
|
|||
| Full Legal Description: TREADWELL GRAND VIEW CTRY CLB 011 018 |
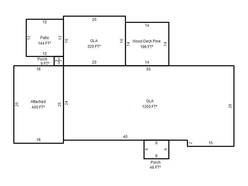
| Photo & Sketch (if available) | Comp Sales (ordered by relevancy) |
|
||||||||||||||||||
|
||||||||||||||||||||
| Value History (*The County Treasurer 405-713-1300 posts & collects actual tax amounts. Contact information HERE) | |||||||||||||
|---|---|---|---|---|---|---|---|---|---|---|---|---|---|
| Year | Market Value | Taxable Mkt Value | Gross Assessed | Exemption | Net Assessed | Millage | Est. Tax | Tax Savings | |||||
|
2026 |
289,000 |
289,000 |
31,790 |
0 |
31,790 |
122.90 |
$3,907 |
$0 |
|||||
|
2025 |
290,000 |
246,586 |
27,124 |
1,000 |
26,124 |
122.90 |
$3,211 |
$710 |
|||||
|
2024 |
283,000 |
239,404 |
26,334 |
1,000 |
25,334 |
123.89 |
$3,139 |
$718 |
|||||
|
2023 |
276,500 |
232,432 |
25,566 |
1,000 |
24,566 |
122.82 |
$3,017 |
$718 |
|||||
|
2022 |
249,500 |
225,663 |
24,821 |
1,000 |
23,821 |
117.63 |
$2,802 |
$426 |
|||||
| Property Account Status/Adjustments/Exemptions | ||||||
|---|---|---|---|---|---|---|
| Account # | Exemption Description | Amount | ||||
| No adjustment/exemption records returned. | ||||||
| Property Deed Transaction History (Recorded in the County Clerk's Office) | ||||||||||
|---|---|---|---|---|---|---|---|---|---|---|
| Date | Type | Book | Page | Price | Grantor | Grantee | ||||
|
5/12/2025 |
|
Deeds |
$350,000 |
SUMMERS JESSICA L |
DB REAL ESTATE INVESTMENTS LLC |
|||||
|
7/1/2014 |
|
Deeds |
$210,000 |
REYNOLDS KYLE & AMY |
SUMMERS JESSICA L |
|||||
|
4/27/2012 |
|
Deeds |
$179,000 |
MCCUTCHEON KATE |
REYNOLDS KYLE & AMY |
|||||
|
5/22/2007 |
|
Deeds |
$156,500 |
HOWELL LAURA A |
MCCUTCHEON KATE |
|||||
|
10/22/2001 |
|
Deeds |
$115,500 |
KIRK TIMOTHY C |
HOWELL LAURA A |
|||||
| Last Mailed Notice of Value (N.O.V.) Information/History | ||||||||
|---|---|---|---|---|---|---|---|---|
| Year | Date | Market Value | Taxable Market Value | Gross Assessed | Exemption | Net Assessed | ||
|
2026 |
02/23/2026 |
289,000 |
289,000 |
31,790 |
0 |
31,790 |
||
|
2025 |
02/14/2025 |
290,000 |
246,586 |
27,124 |
1,000 |
26,124 |
||
|
2024 |
02/13/2024 |
283,000 |
239,404 |
26,334 |
1,000 |
25,334 |
||
|
2023 |
02/14/2023 |
276,500 |
232,432 |
25,566 |
1,000 |
24,566 |
||
|
2022 |
03/15/2022 |
249,500 |
225,663 |
24,821 |
1,000 |
23,821 |
||
| Property Building Permit History | |||||||||||
|---|---|---|---|---|---|---|---|---|---|---|---|
| Issued | Permit # | Provided by | Bldg # | Description | Est Construction Cost | Status | |||||
| No Building Permit records returned. | |||||||||||
| Click button on building number to access detailed information: | ||||||
|---|---|---|---|---|---|---|
| Bldg # | Vacant/Improved Land | Bldg Description | Year Built | SqFt | # Stories | |
|
1 |
Improved |
Ranch 1 Story |
1955 |
1,670 |
1 Stories |
|