|
|
|
| Larry Stein Oklahoma County Assessor (405) 713-1200 - Public Access System |
|
|
|
|
|
|
| Real Property Display - Screen Produced 4/1/2026 12:31:55 AM | ||||
|---|---|---|---|---|
| Account: R119881055 | Type: Residential | Location: |
2628 NW 64TH ST |
|
| Building Name/Occupant: |
|
OKLAHOMA CITY |
||
| Owner Name 1: | DONCHIN DAVID |
Parcel PIN#: |
2623-11-988-1055 |
|
| Owner Name 2: | DONCHIN VENESSA | 1/4 section #: |
2623 |
|
| Owner Name 3: | Parent Acct: |
|
||
| Billing Address: | 14805 LONGFORD WAY | Tax District: |
|
|
| City, State, Zip | EDMOND, OK 73013-1865 | School System: |
Oklahoma City #89 |
|
|
Country: (If noted) |
Land Size: |
0.1816 Acres |
||
|
Land Value: 49,438 |
|
|||
|
Sect 6-T12N-R3W Qtr SW |
TREADWELL GRAND VIEW CTRY CLB
Block
008
Lot
006
|
|||
| Full Legal Description: TREADWELL GRAND VIEW CTRY CLB 008 006 |
| Photo & Sketch (if available) | Comp Sales (ordered by relevancy) |
|
||||||||||||||||||
|
||||||||||||||||||||
| Value History (*The County Treasurer 405-713-1300 posts & collects actual tax amounts. Contact information HERE) | |||||||||||||
|---|---|---|---|---|---|---|---|---|---|---|---|---|---|
| Year | Market Value | Taxable Mkt Value | Gross Assessed | Exemption | Net Assessed | Millage | Est. Tax | Tax Savings | |||||
|
2026 |
317,000 |
317,000 |
34,870 |
0 |
34,870 |
122.90 |
$4,286 |
$0 |
|||||
|
2025 |
318,000 |
318,000 |
34,980 |
0 |
34,980 |
122.90 |
$4,299 |
$0 |
|||||
|
2024 |
311,500 |
264,964 |
29,145 |
0 |
29,145 |
123.89 |
$3,611 |
$634 |
|||||
|
2023 |
302,000 |
252,347 |
27,757 |
1,000 |
26,757 |
122.82 |
$3,286 |
$794 |
|||||
|
2022 |
273,500 |
244,998 |
26,948 |
1,000 |
25,948 |
117.63 |
$3,052 |
$486 |
|||||
| Property Account Status/Adjustments/Exemptions | ||
|---|---|---|
| Account # | Exemption Description | Amount |
|
R119881055 |
5% Capped Account |
0 |
| Property Deed Transaction History (Recorded in the County Clerk's Office) | ||||||||||
|---|---|---|---|---|---|---|---|---|---|---|
| Date | Type | Book | Page | Price | Grantor | Grantee | ||||
|
3/21/2024 |
|
Deeds |
$331,000 |
WILEY PAMELA S |
DONCHIN DAVID |
|||||
|
9/30/2005 |
|
Deeds |
$182,000 |
JONES M |
WILEY PAMELA S |
|||||
|
9/30/2005 |
|
Deeds |
$0 |
ALLEN MICHAEL |
WILEY PAMELA S |
|||||
|
1/28/2002 |
|
Deeds |
$122,000 |
DICKEY ROBERT A HEISKELL MARY LOU |
JONES M |
|||||
|
12/4/1997 |
|
Historical |
$0 |
DICKEY LOUISE M |
DICKEY ROBERT A |
|||||
| Last Mailed Notice of Value (N.O.V.) Information/History | ||||||||
|---|---|---|---|---|---|---|---|---|
| Year | Date | Market Value | Taxable Market Value | Gross Assessed | Exemption | Net Assessed | ||
|
2025 |
02/14/2025 |
318,000 |
318,000 |
34,980 |
0 |
34,980 |
||
|
2024 |
02/13/2024 |
311,500 |
264,964 |
29,145 |
0 |
29,145 |
||
|
2023 |
02/14/2023 |
302,000 |
252,347 |
27,757 |
1,000 |
26,757 |
||
|
2022 |
03/15/2022 |
273,500 |
244,998 |
26,948 |
1,000 |
25,948 |
||
|
2021 |
03/19/2021 |
256,000 |
237,863 |
26,164 |
1,000 |
25,164 |
||
| Property Building Permit History | |||||||||||
|---|---|---|---|---|---|---|---|---|---|---|---|
| Issued | Permit # | Provided by | Bldg # | Description | Est Construction Cost | Status | |||||
| No Building Permit records returned. | |||||||||||
| Click button on building number to access detailed information: | ||||||
|---|---|---|---|---|---|---|
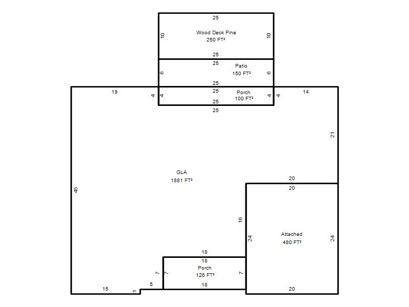
| Bldg # | Vacant/Improved Land | Bldg Description | Year Built | SqFt | # Stories | |
|
1 |
Improved |
Ranch 1 Story |
1955 |
1,881 |
1 Stories |
|