|
|
|
| Larry Stein Oklahoma County Assessor (405) 713-1200 - Public Access System |
|
|
|
|
|
|
| Real Property Display - Screen Produced 2/27/2026 9:23:54 PM | ||||
|---|---|---|---|---|
| Account: R144852950 | Type: Residential | Location: |
2500 N ADAMS AVE |
|
| Building Name/Occupant: |
|
OKLAHOMA CITY |
||
| Owner Name 1: | VILLEGAS JESUS OCANA |
Parcel PIN#: |
2882-14-485-2950 |
|
| Owner Name 2: | HERNANDEZ MARIA ITZEL TORRES | 1/4 section #: |
2882 |
|
| Owner Name 3: | Parent Acct: |
|
||
| Billing Address: | 2500 N ADAMS AVE | Tax District: |
|
|
| City, State, Zip | OKLAHOMA CITY, OK 73127-1528 | School System: |
Putnam City #1 |
|
|
Country: (If noted) |
Land Size: |
0.1537 Acres |
||
|
Land Value: 26,784 |
|
|||
|
Sect 21-T12N-R4W Qtr SE |
TANGLEWOOD HILLS
Block
008
Lot
015
|
|||
| Full Legal Description: TANGLEWOOD HILLS 008 015 |
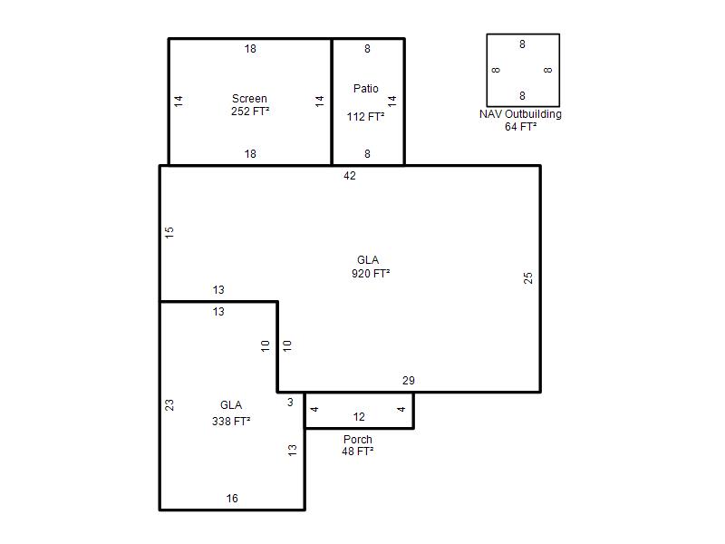
| Photo & Sketch (if available) | Comp Sales (ordered by relevancy) |
|
||||||||||||||||||
|
||||||||||||||||||||
| Value History (*The County Treasurer 405-713-1300 posts & collects actual tax amounts. Contact information HERE) | |||||||||||||
|---|---|---|---|---|---|---|---|---|---|---|---|---|---|
| Year | Market Value | Taxable Mkt Value | Gross Assessed | Exemption | Net Assessed | Millage | Est. Tax | Tax Savings | |||||
|
2025 |
184,000 |
184,000 |
20,240 |
0 |
20,240 |
123.17 |
$2,493 |
$0 |
|||||
|
2024 |
180,500 |
180,500 |
19,855 |
0 |
19,855 |
122.30 |
$2,428 |
$0 |
|||||
|
2023 |
171,000 |
128,495 |
14,134 |
0 |
14,134 |
121.91 |
$1,723 |
$570 |
|||||
|
2022 |
148,500 |
122,377 |
13,461 |
0 |
13,461 |
123.41 |
$1,661 |
$355 |
|||||
|
2021 |
122,500 |
116,550 |
12,820 |
0 |
12,820 |
122.23 |
$1,567 |
$80 |
|||||
| Property Account Status/Adjustments/Exemptions | ||
|---|---|---|
| Account # | Exemption Description | Amount |
|
R144852950 |
5% Capped Account |
0 |
| Property Deed Transaction History (Recorded in the County Clerk's Office) | ||||||||||
|---|---|---|---|---|---|---|---|---|---|---|
| Date | Type | Book | Page | Price | Grantor | Grantee | ||||
|
5/12/2023 |
|
Deeds |
$172,500 |
LOPEZ RODAS EDWIN AMIGAIR |
VILLEGAS JESUS OCANA |
|||||
|
9/7/2018 |
|
Deeds |
$106,000 |
PRYOR ENTERPRISES INC |
LOPEZ RODAS EDWIN AMIGAIR |
|||||
|
1/29/2018 |
|
Deeds |
$55,000 |
KNOWLES LORI |
PRYOR ENTERPRISES INC |
|||||
|
7/19/2016 |
|
Hmstd Off & |
$0 |
WATSON LARRY GLEN C/O LORI KNOWLES |
KNOWLES LORI |
|||||
|
11/8/2002 |
|
Hmstd Off & |
$0 |
WATSON MOSELLE |
WATSON LARRY GLEN |
|||||
| Last Mailed Notice of Value (N.O.V.) Information/History | ||||||||
|---|---|---|---|---|---|---|---|---|
| Year | Date | Market Value | Taxable Market Value | Gross Assessed | Exemption | Net Assessed | ||
|
2025 |
02/14/2025 |
184,000 |
184,000 |
20,240 |
0 |
20,240 |
||
|
2024 |
02/13/2024 |
180,500 |
180,500 |
19,855 |
0 |
19,855 |
||
|
2023 |
02/14/2023 |
171,000 |
128,495 |
14,134 |
0 |
14,134 |
||
|
2022 |
03/15/2022 |
148,500 |
122,377 |
13,461 |
0 |
13,461 |
||
|
2021 |
03/19/2021 |
122,500 |
116,550 |
12,820 |
0 |
12,820 |
||
| Property Building Permit History | |||||||||||
|---|---|---|---|---|---|---|---|---|---|---|---|
| Issued | Permit # | Provided by | Bldg # | Description | Est Construction Cost | Status | |||||
| No Building Permit records returned. | |||||||||||
| Click button on building number to access detailed information: | ||||||
|---|---|---|---|---|---|---|
| Bldg # | Vacant/Improved Land | Bldg Description | Year Built | SqFt | # Stories | |
|
1 |
Improved |
Ranch 1 Story |
1960 |
1,258 |
1 Stories |
|