|
|
|
| Larry Stein Oklahoma County Assessor (405) 713-1200 - Public Access System |
|
|
|
|
|
|
| Real Property Display - Screen Produced 3/23/2026 8:16:54 AM | ||||
|---|---|---|---|---|
| Account: R122781190 | Type: Residential | Location: |
13819 CROSSING WAY WEST |
|
| Building Name/Occupant: |
|
OKLAHOMA CITY |
||
| Owner Name 1: | COLEMAN ROBERT A |
Parcel PIN#: |
3643-12-278-1190 |
|
| Owner Name 2: | 1/4 section #: |
3643 |
||
| Owner Name 3: | Parent Acct: |
|
||
| Billing Address: | 13819 CROSSING WAY W | Tax District: |
|
|
| City, State, Zip | EDMOND, OK 73013 | School System: |
Edmond #12 |
|
|
Country: (If noted) |
Land Size: |
0.0488 Acres |
||
|
Land Value: 16,575 |
|
|||
|
Sect 11-T13N-R3W Qtr SW |
THE CROSSING SEC III
Block
004
Lot
020
|
|||
| Full Legal Description: THE CROSSING SEC III 004 020 |
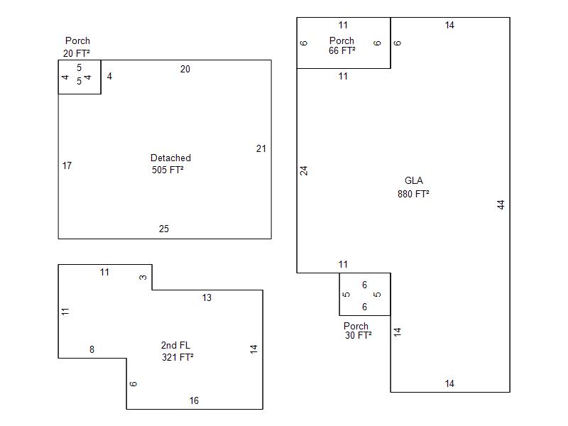
| Photo & Sketch (if available) | Comp Sales (ordered by relevancy) |
|
||||||||||||||||||
|
||||||||||||||||||||
| Value History (*The County Treasurer 405-713-1300 posts & collects actual tax amounts. Contact information HERE) | |||||||||||||
|---|---|---|---|---|---|---|---|---|---|---|---|---|---|
| Year | Market Value | Taxable Mkt Value | Gross Assessed | Exemption | Net Assessed | Millage | Est. Tax | Tax Savings | |||||
|
2025 |
189,000 |
189,000 |
20,790 |
0 |
20,790 |
120.32 |
$2,501 |
$0 |
|||||
|
2024 |
187,500 |
158,760 |
17,463 |
0 |
17,463 |
119.96 |
$2,095 |
$379 |
|||||
|
2023 |
179,000 |
151,200 |
16,632 |
0 |
16,632 |
119.02 |
$1,980 |
$364 |
|||||
|
2022 |
144,000 |
144,000 |
15,840 |
0 |
15,840 |
120.10 |
$1,902 |
$0 |
|||||
|
2021 |
129,500 |
94,533 |
10,398 |
0 |
10,398 |
118.88 |
$1,236 |
$457 |
|||||
| Property Account Status/Adjustments/Exemptions | ||
|---|---|---|
| Account # | Exemption Description | Amount |
|
R122781190 |
5% Capped Account |
0 |
| Property Deed Transaction History (Recorded in the County Clerk's Office) | ||||||||||
|---|---|---|---|---|---|---|---|---|---|---|
| Date | Type | Book | Page | Price | Grantor | Grantee | ||||
|
6/6/2024 |
|
Hmstd Off & |
$0 |
WALKER BOB & BILLIE |
WALKER BILLIE |
|||||
|
6/6/2024 |
|
Deeds |
$185,000 |
WALKER BILLIE |
COLEMAN ROBERT A |
|||||
|
6/15/2021 |
|
Deeds |
$135,000 |
PATTERSON & PATTERSON |
WALKER BOB & BILLIE |
|||||
|
10/8/1997 |
|
Historical |
$0 |
TCW ASSOCIATES LLC |
PATTERSON & PATTERSON |
|||||
|
7/18/1997 |
|
Historical |
$0 |
FORTH MICHAEL K |
TCW ASSOCIATES LLC |
|||||
| Last Mailed Notice of Value (N.O.V.) Information/History | ||||||||
|---|---|---|---|---|---|---|---|---|
| Year | Date | Market Value | Taxable Market Value | Gross Assessed | Exemption | Net Assessed | ||
|
2025 |
02/14/2025 |
189,000 |
189,000 |
20,790 |
0 |
20,790 |
||
|
2024 |
02/13/2024 |
187,500 |
158,760 |
17,463 |
0 |
17,463 |
||
|
2023 |
02/14/2023 |
179,000 |
151,200 |
16,632 |
0 |
16,632 |
||
|
2022 |
03/15/2022 |
144,000 |
144,000 |
15,840 |
0 |
15,840 |
||
|
2021 |
03/19/2021 |
129,500 |
94,533 |
10,398 |
0 |
10,398 |
||
| Property Building Permit History | |||||||||||
|---|---|---|---|---|---|---|---|---|---|---|---|
| Issued | Permit # | Provided by | Bldg # | Description | Est Construction Cost | Status | |||||
| No Building Permit records returned. | |||||||||||
| Click button on building number to access detailed information: | ||||||
|---|---|---|---|---|---|---|
| Bldg # | Vacant/Improved Land | Bldg Description | Year Built | SqFt | # Stories | |
|
1 |
Improved |
Townhouse One half Story |
1998 |
1,201 |
1.5 Stories |
|