|
|
|
| Larry Stein Oklahoma County Assessor (405) 713-1200 - Public Access System |
|
|
|
|
|
|
| Real Property Display - Screen Produced 3/23/2026 6:45:47 AM | ||||
|---|---|---|---|---|
| Account: R122781470 | Type: Residential | Location: |
14001 CROSSING WAY WEST |
|
| Building Name/Occupant: |
|
OKLAHOMA CITY |
||
| Owner Name 1: | JONES RUSSELL ELLIOTT |
Parcel PIN#: |
3643-12-278-1470 |
|
| Owner Name 2: | 1/4 section #: |
3643 |
||
| Owner Name 3: | Parent Acct: |
|
||
| Billing Address: | 14001 CROSSING WAY W | Tax District: |
|
|
| City, State, Zip | EDMOND, OK 73013-4756 | School System: |
Edmond #12 |
|
|
Country: (If noted) |
Land Size: |
0.0574 Acres |
||
|
Land Value: 19,500 |
|
|||
|
Sect 11-T13N-R3W Qtr SW |
THE CROSSING SEC III
Block
004
Lot
048
|
|||
| Full Legal Description: THE CROSSING SEC III 004 048 |
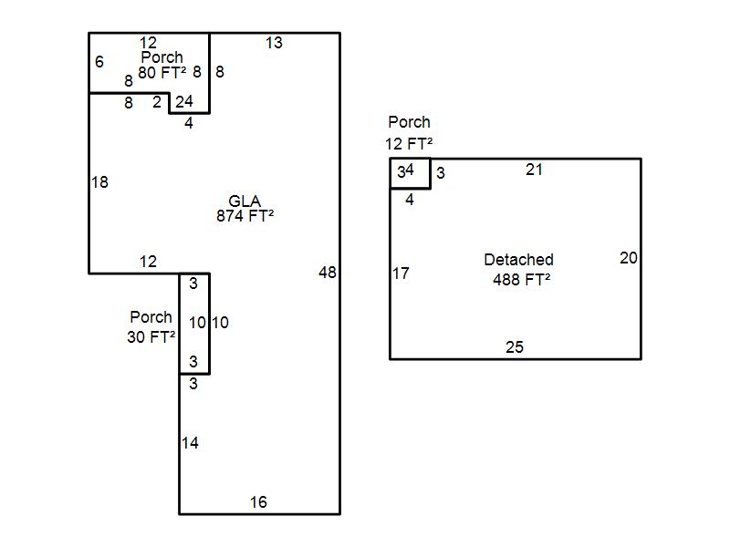
| Photo & Sketch (if available) | Comp Sales (ordered by relevancy) |
|
||||||||||||||||||
|
||||||||||||||||||||
| Value History (*The County Treasurer 405-713-1300 posts & collects actual tax amounts. Contact information HERE) | |||||||||||||
|---|---|---|---|---|---|---|---|---|---|---|---|---|---|
| Year | Market Value | Taxable Mkt Value | Gross Assessed | Exemption | Net Assessed | Millage | Est. Tax | Tax Savings | |||||
|
2025 |
153,500 |
153,500 |
16,885 |
1,000 |
15,885 |
120.32 |
$1,911 |
$120 |
|||||
|
2024 |
156,000 |
118,177 |
12,998 |
1,000 |
11,998 |
119.96 |
$1,439 |
$619 |
|||||
|
2023 |
149,000 |
114,735 |
12,620 |
1,000 |
11,620 |
119.02 |
$1,383 |
$568 |
|||||
|
2022 |
122,000 |
111,394 |
12,252 |
1,000 |
11,252 |
120.10 |
$1,352 |
$260 |
|||||
|
2021 |
110,500 |
108,150 |
11,896 |
1,000 |
10,896 |
118.88 |
$1,295 |
$150 |
|||||
| Property Account Status/Adjustments/Exemptions | ||
|---|---|---|
| Account # | Exemption Description | Amount |
|
R122781470 |
3% Cap Homestead |
0 |
|
R122781470 |
Homestead |
1,000 |
| Property Deed Transaction History (Recorded in the County Clerk's Office) | ||||||||||
|---|---|---|---|---|---|---|---|---|---|---|
| Date | Type | Book | Page | Price | Grantor | Grantee | ||||
|
8/12/2024 |
|
Deeds |
$145,000 |
BLISS WESTON J |
JONES RUSSELL ELLIOTT |
|||||
|
8/22/2019 |
|
Deeds |
$105,000 |
ADDISON HOLDER |
BLISS WESTON J |
|||||
|
3/29/2017 |
|
Hmstd Off & |
$0 |
HORTON STEVEN T |
HORTON PROPERTIES 2006 LLC |
|||||
|
3/29/2017 |
|
Deeds |
$70,000 |
HORTON PROPERTIES 2006 LLC C/O STEVEN HORTON |
ADDISON HOLDER |
|||||
|
11/8/2007 |
|
Hmstd Off & |
$0 |
HORTON STEVEN T |
HORTON PROPERTIES 2006 LLC |
|||||
| Last Mailed Notice of Value (N.O.V.) Information/History | ||||||||
|---|---|---|---|---|---|---|---|---|
| Year | Date | Market Value | Taxable Market Value | Gross Assessed | Exemption | Net Assessed | ||
|
2025 |
02/14/2025 |
153,500 |
153,500 |
16,885 |
1,000 |
15,885 |
||
|
2024 |
02/13/2024 |
156,000 |
118,177 |
12,998 |
1,000 |
11,998 |
||
|
2023 |
02/14/2023 |
149,000 |
114,735 |
12,620 |
1,000 |
11,620 |
||
|
2022 |
03/15/2022 |
122,000 |
111,394 |
12,252 |
1,000 |
11,252 |
||
|
2021 |
03/19/2021 |
110,500 |
108,150 |
11,896 |
1,000 |
10,896 |
||
| Property Building Permit History | ||||||
|---|---|---|---|---|---|---|
| Issued | Permit # | Provided by | Bldg # | Description | Est Construction Cost | Status |
|
3/28/2006 |
10321277 |
OKLAHOMA CITY |
1 |
Remodeled |
0 |
Inactive |
| Click button on building number to access detailed information: | ||||||
|---|---|---|---|---|---|---|
| Bldg # | Vacant/Improved Land | Bldg Description | Year Built | SqFt | # Stories | |
|
1 |
Improved |
Townhouse One Story |
1984 |
874 |
1 Stories |
|