|
|
|
| Larry Stein Oklahoma County Assessor (405) 713-1200 - Public Access System |
|
|
|
|
|
|
| Real Property Display - Screen Produced 2/27/2026 1:42:40 AM | ||||
|---|---|---|---|---|
| Account: R257191020 | Type: Residential | Location: |
8300 NW 206TH ST |
|
| Building Name/Occupant: |
|
UNINCORPORATED |
||
| Owner Name 1: | HALLER SARA |
Parcel PIN#: |
4873-25-719-1020 |
|
| Owner Name 2: | 1/4 section #: |
4873 |
||
| Owner Name 3: | Parent Acct: |
|
||
| Billing Address: | 8300 NW 206TH ST | Tax District: |
|
|
| City, State, Zip | EDMOND, OK 73012 | School System: |
Deer Creek #6 |
|
|
Country: (If noted) |
Land Size: |
10.6600 Acres |
||
|
Land Value: 238,503 |
|
|||
|
Sect 19-T14N-R4W Qtr NE |
DEER CREEK TOWNSHIP
Block
000
Lot
000
|
|||
| Full Legal Description: DEER CREEK TOWNSHIP 000 000 PT NE4 SEC 19 14N 4W A 10 1/2ACRS TR IN SW/C OF E1810FT OF NE4 BEING 576FT N&S BY 806.5FT E&W |
| Photo & Sketch (if available) | Comp Sales (ordered by relevancy) |
|
||||||||||||||||||
|
||||||||||||||||||||
| Value History (*The County Treasurer 405-713-1300 posts & collects actual tax amounts. Contact information HERE) | |||||||||||||
|---|---|---|---|---|---|---|---|---|---|---|---|---|---|
| Year | Market Value | Taxable Mkt Value | Gross Assessed | Exemption | Net Assessed | Millage | Est. Tax | Tax Savings | |||||
|
2025 |
373,000 |
373,000 |
41,030 |
0 |
41,030 |
114.35 |
$4,692 |
$0 |
|||||
|
2024 |
213,824 |
102,516 |
11,276 |
0 |
11,276 |
116.19 |
$1,310 |
$1,423 |
|||||
|
2023 |
187,373 |
99,531 |
10,948 |
1,000 |
9,948 |
116.77 |
$1,162 |
$1,245 |
|||||
|
2022 |
187,625 |
99,531 |
10,948 |
1,000 |
9,948 |
114.81 |
$1,142 |
$1,227 |
|||||
|
2021 |
132,408 |
99,531 |
10,948 |
1,000 |
9,948 |
112.90 |
$1,123 |
$521 |
|||||
| Property Account Status/Adjustments/Exemptions | ||
|---|---|---|
| Account # | Exemption Description | Amount |
|
R257191020 |
5% Capped Account |
0 |
| Property Deed Transaction History (Recorded in the County Clerk's Office) | ||||||||||
|---|---|---|---|---|---|---|---|---|---|---|
| Date | Type | Book | Page | Price | Grantor | Grantee | ||||
|
4/30/2024 |
|
Deeds |
$300,000 |
YANDELL HAROLD L & MARY R CO TRS |
HALLER SARA |
|||||
|
12/5/2023 |
|
Deeds |
$0 |
YANDELL HAROLD |
YANDELL HAROLD L & MARY R CO TRS |
|||||
|
11/8/2023 |
|
Hmstd Off & |
$0 |
HOPKINS FRANCES L |
YANDELL HAROLD |
|||||
|
7/11/1997 |
|
Historical |
$0 |
HOPKINS ROBERT E & FRANCES L |
HOPKINS FRANCES L |
|||||
|
9/25/1987 |
|
Historical |
$0 |
KERNS BARRY K & KATHLEEN A |
HOPKINS ROBERT E & FRANCES L |
|||||
| Last Mailed Notice of Value (N.O.V.) Information/History | ||||||||
|---|---|---|---|---|---|---|---|---|
| Year | Date | Market Value | Taxable Market Value | Gross Assessed | Exemption | Net Assessed | ||
|
2025 |
01/31/2025 |
373,000 |
373,000 |
41,030 |
0 |
41,030 |
||
|
2024 |
01/22/2024 |
213,824 |
102,516 |
11,276 |
0 |
11,276 |
||
|
2022 |
02/22/2022 |
187,625 |
99,531 |
10,948 |
1,000 |
9,948 |
||
|
2020 |
02/21/2020 |
136,315 |
99,531 |
10,948 |
1,000 |
9,948 |
||
|
2018 |
04/09/2018 |
139,481 |
99,531 |
10,949 |
1,000 |
9,949 |
||
| Property Building Permit History | |||||||||||
|---|---|---|---|---|---|---|---|---|---|---|---|
| Issued | Permit # | Provided by | Bldg # | Description | Est Construction Cost | Status | |||||
| No Building Permit records returned. | |||||||||||
| Click button on building number to access detailed information: | ||||||
|---|---|---|---|---|---|---|
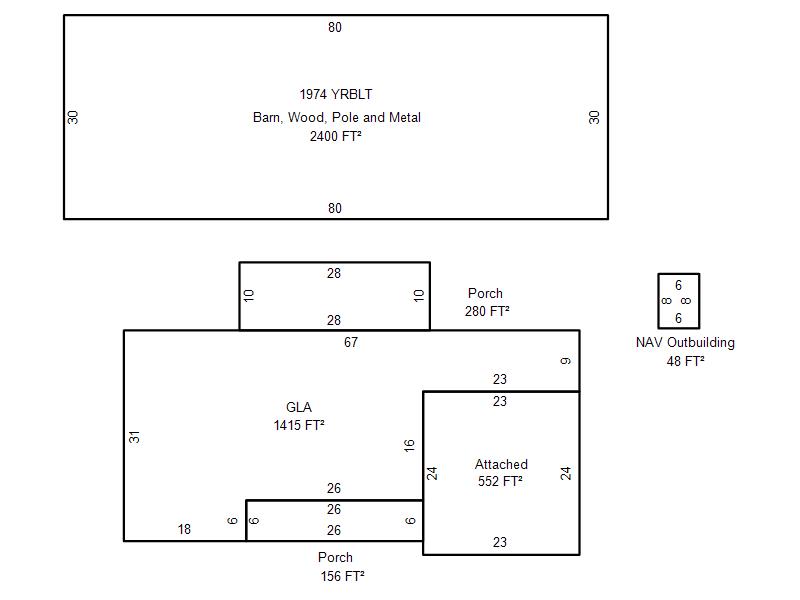
| Bldg # | Vacant/Improved Land | Bldg Description | Year Built | SqFt | # Stories | |
|
1 |
Improved |
Ranch 1 Story |
1974 |
1,415 |
1 Stories |
|