|
|
|
| Larry Stein Oklahoma County Assessor (405) 713-1200 - Public Access System |
|
|
|
|
|
|
| Real Property Display - Screen Produced 3/14/2026 7:47:00 AM | ||||
|---|---|---|---|---|
| Account: R197911140 | Type: Residential | Location: |
16687 SE 16TH ST |
|
| Building Name/Occupant: |
|
CHOCTAW |
||
| Owner Name 1: | COTNEY DILLON |
Parcel PIN#: |
1025-19-791-1140 |
|
| Owner Name 2: | COTNEY BROOKE | 1/4 section #: |
1025 |
|
| Owner Name 3: | Parent Acct: |
|
||
| Billing Address: | 16687 SE 16TH ST | Tax District: |
|
|
| City, State, Zip | CHOCTAW, OK 73020-6401 | School System: |
Choctaw #4 |
|
|
Country: (If noted) |
Land Size: |
1.1000 Acres |
||
|
Land Value: 36,300 |
|
|||
|
Sect 7-T11N-R1E Qtr NE |
MORAN ACRES REPLAT
Block
003
Lot
013
|
|||
| Full Legal Description: MORAN ACRES REPLAT BLK 003 LOT 013 |
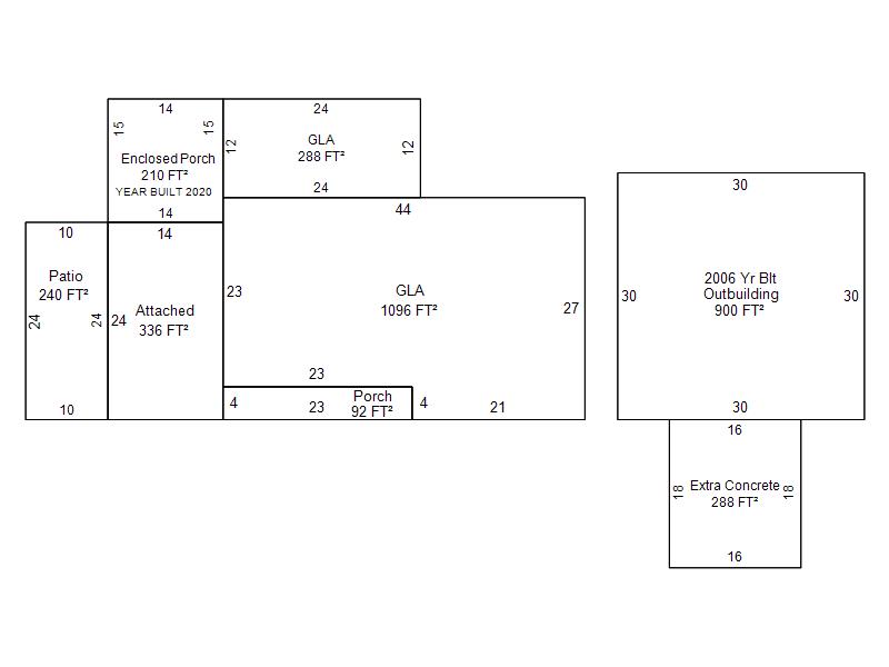
| Photo & Sketch (if available) | Comp Sales (ordered by relevancy) |
|
||||||||||||||||||
|
||||||||||||||||||||
| Value History (*The County Treasurer 405-713-1300 posts & collects actual tax amounts. Contact information HERE) | |||||||||||||
|---|---|---|---|---|---|---|---|---|---|---|---|---|---|
| Year | Market Value | Taxable Mkt Value | Gross Assessed | Exemption | Net Assessed | Millage | Est. Tax | Tax Savings | |||||
|
2025 |
266,000 |
266,000 |
29,260 |
0 |
29,260 |
117.21 |
$3,430 |
$0 |
|||||
|
2024 |
251,500 |
209,475 |
23,042 |
0 |
23,042 |
116.35 |
$2,681 |
$538 |
|||||
|
2023 |
233,000 |
199,500 |
21,945 |
0 |
21,945 |
118.06 |
$2,591 |
$435 |
|||||
|
2022 |
190,000 |
190,000 |
20,900 |
0 |
20,900 |
116.14 |
$2,427 |
$0 |
|||||
|
2021 |
161,000 |
145,230 |
15,975 |
1,000 |
14,975 |
116.17 |
$1,740 |
$318 |
|||||
| Property Account Status/Adjustments/Exemptions | ||||||
|---|---|---|---|---|---|---|
| Account # | Exemption Description | Amount | ||||
| No adjustment/exemption records returned. | ||||||
| Property Deed Transaction History (Recorded in the County Clerk's Office) | ||||||||||
|---|---|---|---|---|---|---|---|---|---|---|
| Date | Type | Book | Page | Price | Grantor | Grantee | ||||
|
8/4/2025 |
|
Deeds |
$230,000 |
STRONGEST CASH OFFER LLC |
COTNEY DILLON |
|||||
|
8/22/2024 |
|
Deeds |
$150,000 |
BROWN KEVIN CHARLES |
STRONGEST CASH OFFER LLC |
|||||
|
3/26/2021 |
|
Deeds |
$ |
MUSCIO CLIFFORD L |
MUSCIO CLIFFORD L |
|||||
|
3/26/2021 |
|
Deeds |
$62,500 |
MUSCIO CLIFFORD L |
BROWN KEVIN CHARLES |
|||||
|
5/10/2013 |
|
Deeds |
$125,000 |
PERRY PHILLIP E & SHERRI L |
MUSCIO CLIFFORD L |
|||||
| Last Mailed Notice of Value (N.O.V.) Information/History | ||||||||
|---|---|---|---|---|---|---|---|---|
| Year | Date | Market Value | Taxable Market Value | Gross Assessed | Exemption | Net Assessed | ||
|
2025 |
01/31/2025 |
266,000 |
266,000 |
29,260 |
0 |
29,260 |
||
|
2024 |
01/22/2024 |
251,500 |
209,475 |
23,042 |
0 |
23,042 |
||
|
2023 |
01/23/2023 |
233,000 |
199,500 |
21,945 |
0 |
21,945 |
||
|
2022 |
02/22/2022 |
190,000 |
190,000 |
20,900 |
0 |
20,900 |
||
|
2021 |
02/24/2021 |
161,000 |
145,230 |
15,975 |
1,000 |
14,975 |
||
| Property Building Permit History | |||||||||||
|---|---|---|---|---|---|---|---|---|---|---|---|
| Issued | Permit # | Provided by | Bldg # | Description | Est Construction Cost | Status | |||||
| No Building Permit records returned. | |||||||||||
| Click button on building number to access detailed information: | ||||||
|---|---|---|---|---|---|---|
| Bldg # | Vacant/Improved Land | Bldg Description | Year Built | SqFt | # Stories | |
|
1 |
Improved |
Ranch 1 Story |
1978 |
1,384 |
1 Stories |
|