|
|
|
| Larry Stein Oklahoma County Assessor (405) 713-1200 - Public Access System |
|
|
|
|
|
|
| Real Property Display - Screen Produced 3/18/2026 4:46:32 PM | ||||
|---|---|---|---|---|
| Account: R151151205 | Type: Residential | Location: |
10012 OAK PARK DR |
|
| Building Name/Occupant: |
|
MIDWEST CITY |
||
| Owner Name 1: | NIX CALEB & DANIELLE |
Parcel PIN#: |
2323-15-115-1205 |
|
| Owner Name 2: | 1/4 section #: |
2323 |
||
| Owner Name 3: | Parent Acct: |
|
||
| Billing Address: | 10012 OAK PARK DR | Tax District: |
|
|
| City, State, Zip | MIDWEST CITY, OK 73130-3602 | School System: |
Mid-Del #52 |
|
|
Country: (If noted) |
Land Size: |
0.7649 Acres |
||
|
Land Value: 33,320 |
|
|||
|
Sect 31-T12N-R1W Qtr SW |
POINTONS OAKDALE PRK
Block
002
Lot
006
|
|||
| Full Legal Description: POINTONS OAKDALE PRK 002 006 |
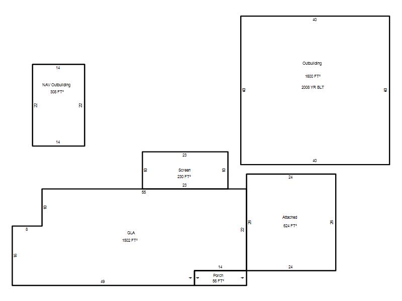
| Photo & Sketch (if available) | Comp Sales (ordered by relevancy) |
|
||||||||||||||||||
|
||||||||||||||||||||
| Value History (*The County Treasurer 405-713-1300 posts & collects actual tax amounts. Contact information HERE) | |||||||||||||
|---|---|---|---|---|---|---|---|---|---|---|---|---|---|
| Year | Market Value | Taxable Mkt Value | Gross Assessed | Exemption | Net Assessed | Millage | Est. Tax | Tax Savings | |||||
|
2025 |
188,000 |
187,950 |
20,674 |
0 |
20,674 |
119.58 |
$2,472 |
$1 |
|||||
|
2024 |
179,000 |
179,000 |
19,690 |
0 |
19,690 |
122.51 |
$2,412 |
$0 |
|||||
|
2023 |
189,500 |
189,500 |
20,845 |
0 |
20,845 |
117.71 |
$2,454 |
$0 |
|||||
|
2022 |
189,500 |
189,500 |
20,845 |
0 |
20,845 |
116.64 |
$2,431 |
$0 |
|||||
|
2021 |
139,000 |
131,325 |
14,445 |
1,000 |
13,445 |
119.45 |
$1,606 |
$220 |
|||||
| Property Account Status/Adjustments/Exemptions | ||
|---|---|---|
| Account # | Exemption Description | Amount |
|
R151151205 |
5% Capped Account |
0 |
| Property Deed Transaction History (Recorded in the County Clerk's Office) | ||||||||||
|---|---|---|---|---|---|---|---|---|---|---|
| Date | Type | Book | Page | Price | Grantor | Grantee | ||||
|
4/4/2025 |
|
Hmstd Off & |
$0 |
NIX CALEB C |
NIX CALEB & DANIELLE |
|||||
|
10/29/2021 |
|
Deeds |
$195,000 |
ERGENBRIGHT JAMES N & ELIZABETH ANN |
NIX CALEB C |
|||||
|
4/3/2017 |
|
Deeds |
$0 |
ERGENBRIGHT JAMES N & ELIZABETH A |
ERGENBRIGHT JAMES N & ELIZABETH ANN |
|||||
|
2/22/2013 |
|
Deeds |
$0 |
ERGENBRIGHT JAMES N & ANN C |
ERGENBRIGHT JAMES N & ELIZABETH A |
|||||
|
4/27/2005 |
|
Deeds |
$108,000 |
CHRIST KEITH L & CLARICE A TRS CHRIST FAMILY TRUST |
ERGENBRIGHT JAMES N & ANN C |
|||||
| Last Mailed Notice of Value (N.O.V.) Information/History | ||||||||
|---|---|---|---|---|---|---|---|---|
| Year | Date | Market Value | Taxable Market Value | Gross Assessed | Exemption | Net Assessed | ||
|
2025 |
01/31/2025 |
188,000 |
187,950 |
20,674 |
0 |
20,674 |
||
|
2022 |
02/22/2022 |
189,500 |
189,500 |
20,845 |
0 |
20,845 |
||
|
2021 |
02/24/2021 |
139,000 |
131,325 |
14,445 |
1,000 |
13,445 |
||
|
2019 |
02/26/2019 |
132,000 |
131,325 |
14,445 |
1,000 |
13,445 |
||
|
2018 |
04/09/2018 |
127,500 |
127,500 |
14,025 |
1,000 |
13,025 |
||
| Property Building Permit History | ||||||
|---|---|---|---|---|---|---|
| Issued | Permit # | Provided by | Bldg # | Description | Est Construction Cost | Status |
|
3/14/2008 |
10352666 |
MIDWEST CITY |
1 |
Storage Buil |
8,800 |
Inactive |
| Click button on building number to access detailed information: | ||||||
|---|---|---|---|---|---|---|
| Bldg # | Vacant/Improved Land | Bldg Description | Year Built | SqFt | # Stories | |
|
1 |
Improved |
Ranch 1 Story |
1959 |
1,502 |
1 Stories |
|