|
|
|
| Larry Stein Oklahoma County Assessor (405) 713-1200 - Public Access System |
|
|
|
|
|
|
| Real Property Display - Screen Produced 3/18/2026 4:49:41 PM | ||||
|---|---|---|---|---|
| Account: R151151280 | Type: Residential | Location: |
10116 OAK PARK DR |
|
| Building Name/Occupant: |
|
MIDWEST CITY |
||
| Owner Name 1: | POINDEXTER SHADAL ABBIGAIL |
Parcel PIN#: |
2323-15-115-1280 |
|
| Owner Name 2: | 1/4 section #: |
2323 |
||
| Owner Name 3: | Parent Acct: |
|
||
| Billing Address: | 975 COUNTY ST 2946 | Tax District: |
|
|
| City, State, Zip | TUTTLE, OK 73089 | School System: |
Mid-Del #52 |
|
|
Country: (If noted) |
Land Size: |
0.7415 Acres |
||
|
Land Value: 32,300 |
|
|||
|
Sect 31-T12N-R1W Qtr SW |
POINTONS OAKDALE PRK
Block
002
Lot
013
|
|||
| Full Legal Description: POINTONS OAKDALE PRK 002 013 W95FT |
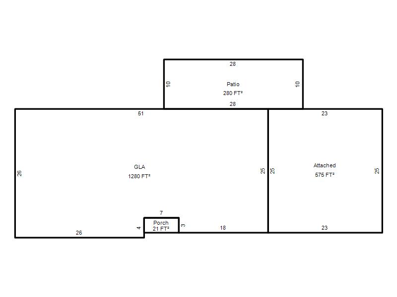
| Photo & Sketch (if available) | Comp Sales (ordered by relevancy) |
|
||||||||||||||||||
|
||||||||||||||||||||
| Value History (*The County Treasurer 405-713-1300 posts & collects actual tax amounts. Contact information HERE) | |||||||||||||
|---|---|---|---|---|---|---|---|---|---|---|---|---|---|
| Year | Market Value | Taxable Mkt Value | Gross Assessed | Exemption | Net Assessed | Millage | Est. Tax | Tax Savings | |||||
|
2025 |
187,000 |
187,000 |
20,570 |
0 |
20,570 |
119.58 |
$2,460 |
$0 |
|||||
|
2024 |
180,000 |
180,000 |
19,800 |
0 |
19,800 |
122.51 |
$2,426 |
$0 |
|||||
|
2023 |
171,500 |
171,500 |
18,865 |
0 |
18,865 |
117.71 |
$2,221 |
$0 |
|||||
|
2022 |
168,500 |
168,500 |
18,535 |
0 |
18,535 |
116.64 |
$2,162 |
$0 |
|||||
|
2021 |
118,000 |
112,350 |
12,358 |
0 |
12,358 |
119.45 |
$1,476 |
$74 |
|||||
| Property Account Status/Adjustments/Exemptions | ||
|---|---|---|
| Account # | Exemption Description | Amount |
|
R151151280 |
5% Capped Account |
0 |
| Property Deed Transaction History (Recorded in the County Clerk's Office) | ||||||||||
|---|---|---|---|---|---|---|---|---|---|---|
| Date | Type | Book | Page | Price | Grantor | Grantee | ||||
|
8/9/2021 |
|
Deeds |
$171,000 |
STAGER STRECKER CAROLYN F |
POINDEXTER SHADAL ABBIGAIL |
|||||
|
10/10/2014 |
|
Deeds |
$60,000 |
FILKINS JEAN L |
STAGER STRECKER CAROLYN F |
|||||
|
3/12/2014 |
|
Hmstd Off & |
$0 |
ESTATE OF BILLIE JEAN FILKINS |
FILKINS JEAN L |
|||||
|
4/22/2013 |
|
Hmstd Off & |
$0 |
FILKINS BILLIE JEAN |
FILKINS JEAN L |
|||||
|
4/22/2013 |
|
Deeds |
$0 |
FILKINS BILLIE JEAN ESTATE OF |
FILKINS JEAN L |
|||||
| Last Mailed Notice of Value (N.O.V.) Information/History | ||||||||
|---|---|---|---|---|---|---|---|---|
| Year | Date | Market Value | Taxable Market Value | Gross Assessed | Exemption | Net Assessed | ||
|
2025 |
01/31/2025 |
187,000 |
187,000 |
20,570 |
0 |
20,570 |
||
|
2024 |
01/22/2024 |
180,000 |
180,000 |
19,800 |
0 |
19,800 |
||
|
2023 |
01/23/2023 |
171,500 |
171,500 |
18,865 |
0 |
18,865 |
||
|
2022 |
02/22/2022 |
168,500 |
168,500 |
18,535 |
0 |
18,535 |
||
|
2021 |
02/24/2021 |
118,000 |
112,350 |
12,358 |
0 |
12,358 |
||
| Property Building Permit History | |||||||||||
|---|---|---|---|---|---|---|---|---|---|---|---|
| Issued | Permit # | Provided by | Bldg # | Description | Est Construction Cost | Status | |||||
| No Building Permit records returned. | |||||||||||
| Click button on building number to access detailed information: | ||||||
|---|---|---|---|---|---|---|
| Bldg # | Vacant/Improved Land | Bldg Description | Year Built | SqFt | # Stories | |
|
1 |
Improved |
Ranch 1 Story |
1959 |
1,280 |
1 Stories |
|