|
|
|
| Larry Stein Oklahoma County Assessor (405) 713-1200 - Public Access System |
|
|
|
|
|
|
| Real Property Display - Screen Produced 3/23/2026 5:29:20 AM | ||||
|---|---|---|---|---|
| Account: R180611430 | Type: Residential | Location: |
14000 CROSSING WAY EAST |
|
| Building Name/Occupant: |
|
OKLAHOMA CITY |
||
| Owner Name 1: | FORSYTHE LARRY W |
Parcel PIN#: |
3643-18-061-1430 |
|
| Owner Name 2: | 1/4 section #: |
3643 |
||
| Owner Name 3: | Parent Acct: |
|
||
| Billing Address: | 308 E 8TH ST | Tax District: |
|
|
| City, State, Zip | ARCADIA, OK 73007 | School System: |
Edmond #12 |
|
|
Country: (If noted) |
UNITED STATES |
Land Size: |
0.0574 Acres |
|
|
Land Value: 19,500 |
|
|||
|
Sect 11-T13N-R3W Qtr SW |
THE CROSSING SEC 1
Block
001
Lot
044
|
|||
| Full Legal Description: THE CROSSING SEC 1 001 044 |
| Photo & Sketch (if available) | Comp Sales (ordered by relevancy) |
|
||||||||||||||||||
|
||||||||||||||||||||
| Value History (*The County Treasurer 405-713-1300 posts & collects actual tax amounts. Contact information HERE) | |||||||||||||
|---|---|---|---|---|---|---|---|---|---|---|---|---|---|
| Year | Market Value | Taxable Mkt Value | Gross Assessed | Exemption | Net Assessed | Millage | Est. Tax | Tax Savings | |||||
|
2025 |
158,000 |
118,070 |
12,987 |
0 |
12,987 |
120.32 |
$1,563 |
$528 |
|||||
|
2024 |
157,500 |
112,448 |
12,369 |
1,000 |
11,369 |
119.96 |
$1,364 |
$714 |
|||||
|
2023 |
157,000 |
109,173 |
12,008 |
1,000 |
11,008 |
119.02 |
$1,310 |
$745 |
|||||
|
2022 |
119,000 |
105,994 |
11,658 |
1,000 |
10,658 |
120.10 |
$1,280 |
$292 |
|||||
|
2021 |
108,500 |
102,907 |
11,319 |
1,000 |
10,319 |
118.88 |
$1,227 |
$192 |
|||||
| Property Account Status/Adjustments/Exemptions | ||
|---|---|---|
| Account # | Exemption Description | Amount |
|
R180611430 |
5% Capped Account |
0 |
| Property Deed Transaction History (Recorded in the County Clerk's Office) | |||||||
|---|---|---|---|---|---|---|---|
| Date | Type | Book | Page | Price | Grantor | Grantee | |
|
5/11/2015 |
|
Deeds |
$94,000 |
LOCKE SONDRA E |
FORSYTHE LARRY W |
||
|
8/1/1983 |
|
Historical |
$0 |
|
LOCKE SONDRA E |
||
| Last Mailed Notice of Value (N.O.V.) Information/History | ||||||||
|---|---|---|---|---|---|---|---|---|
| Year | Date | Market Value | Taxable Market Value | Gross Assessed | Exemption | Net Assessed | ||
|
2026 |
02/23/2026 |
157,500 |
123,973 |
13,636 |
0 |
13,636 |
||
|
2025 |
02/14/2025 |
158,000 |
118,070 |
12,987 |
0 |
12,987 |
||
|
2024 |
02/13/2024 |
157,500 |
112,448 |
12,369 |
1,000 |
11,369 |
||
|
2023 |
02/14/2023 |
157,000 |
109,173 |
12,008 |
1,000 |
11,008 |
||
|
2022 |
03/15/2022 |
119,000 |
105,994 |
11,658 |
1,000 |
10,658 |
||
| Property Building Permit History | |||||||||||
|---|---|---|---|---|---|---|---|---|---|---|---|
| Issued | Permit # | Provided by | Bldg # | Description | Est Construction Cost | Status | |||||
| No Building Permit records returned. | |||||||||||
| Click button on building number to access detailed information: | ||||||
|---|---|---|---|---|---|---|
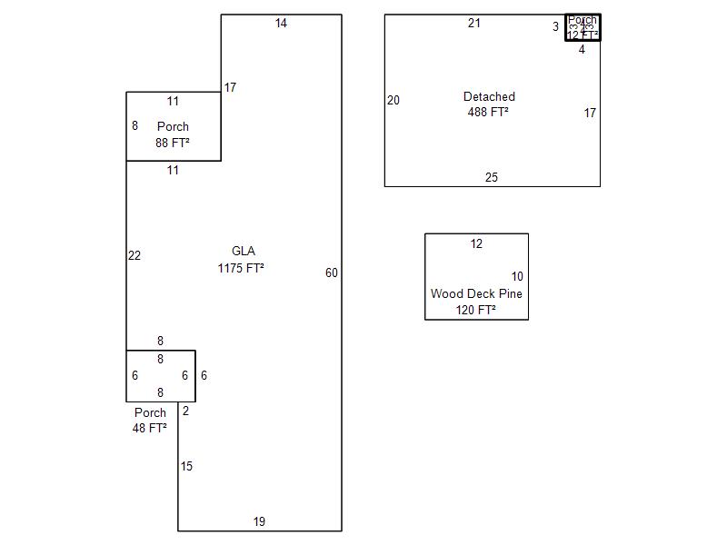
| Bldg # | Vacant/Improved Land | Bldg Description | Year Built | SqFt | # Stories | |
|
1 |
Improved |
Townhouse One Story |
1980 |
1,175 |
1 Stories |
|