|
|
|
| Larry Stein Oklahoma County Assessor (405) 713-1200 - Public Access System |
|
|
|
|
|
|
| Real Property Display - Screen Produced 3/23/2026 6:44:51 AM | ||||
|---|---|---|---|---|
| Account: R180611060 | Type: Residential | Location: |
13700 CROSSING WAY EAST |
|
| Building Name/Occupant: |
|
OKLAHOMA CITY |
||
| Owner Name 1: | VAN SICKLE MICHAEL D |
Parcel PIN#: |
3643-18-061-1060 |
|
| Owner Name 2: | VAN SICKLE KIMBERLY D | 1/4 section #: |
3643 |
|
| Owner Name 3: | Parent Acct: |
|
||
| Billing Address: | 13700 CROSSING WAY E | Tax District: |
|
|
| City, State, Zip | EDMOND, OK 73013-4724 | School System: |
Edmond #12 |
|
|
Country: (If noted) |
Land Size: |
0.0574 Acres |
||
|
Land Value: 19,500 |
|
|||
|
Sect 11-T13N-R3W Qtr SW |
THE CROSSING SEC 1
Block
001
Lot
007
|
|||
| Full Legal Description: THE CROSSING SEC 1 001 007 |
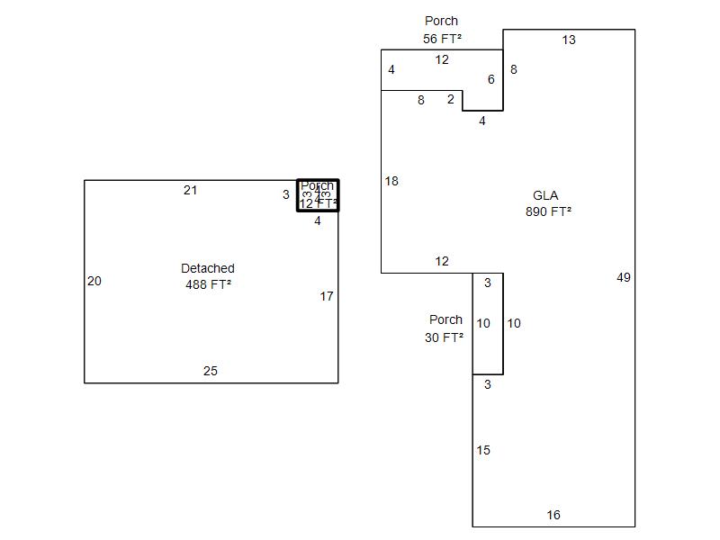
| Photo & Sketch (if available) | Comp Sales (ordered by relevancy) |
|
||||||||||||||||||
|
||||||||||||||||||||
| Value History (*The County Treasurer 405-713-1300 posts & collects actual tax amounts. Contact information HERE) | |||||||||||||
|---|---|---|---|---|---|---|---|---|---|---|---|---|---|
| Year | Market Value | Taxable Mkt Value | Gross Assessed | Exemption | Net Assessed | Millage | Est. Tax | Tax Savings | |||||
|
2025 |
132,500 |
109,120 |
12,002 |
0 |
12,002 |
120.32 |
$1,444 |
$309 |
|||||
|
2024 |
132,500 |
103,924 |
11,431 |
0 |
11,431 |
119.96 |
$1,371 |
$377 |
|||||
|
2023 |
131,500 |
98,976 |
10,886 |
0 |
10,886 |
119.02 |
$1,296 |
$426 |
|||||
|
2022 |
101,000 |
94,263 |
10,368 |
0 |
10,368 |
120.10 |
$1,245 |
$89 |
|||||
|
2021 |
93,000 |
89,775 |
9,875 |
0 |
9,875 |
118.88 |
$1,174 |
$42 |
|||||
| Property Account Status/Adjustments/Exemptions | ||||||
|---|---|---|---|---|---|---|
| Account # | Exemption Description | Amount | ||||
| No adjustment/exemption records returned. | ||||||
| Property Deed Transaction History (Recorded in the County Clerk's Office) | ||||||||||
|---|---|---|---|---|---|---|---|---|---|---|
| Date | Type | Book | Page | Price | Grantor | Grantee | ||||
|
1/14/2025 |
|
Deeds |
$135,000 |
SHAFFER DEBORAH L |
VAN SICKLE MICHAEL D |
|||||
|
5/26/2005 |
|
Deeds |
$63,500 |
LILES ROBERT M & PATRICIA E |
SHAFFER DEBORAH L |
|||||
|
12/3/2001 |
|
Deeds |
$47,500 |
EISERMAN VELOISE E |
LILES ROBERT M & PATRICIA E |
|||||
|
4/5/1988 |
|
Historical |
$26,500 |
FIRSTIER MORTGAGE CO |
EISERMAN VELOISE E |
|||||
|
9/11/1987 |
|
Historical |
$0 |
PELTO THOMAS C |
FIRSTIER MORTGAGE CO |
|||||
| Last Mailed Notice of Value (N.O.V.) Information/History | ||||||||
|---|---|---|---|---|---|---|---|---|
| Year | Date | Market Value | Taxable Market Value | Gross Assessed | Exemption | Net Assessed | ||
|
2026 |
02/23/2026 |
129,000 |
129,000 |
14,190 |
0 |
14,190 |
||
|
2025 |
02/14/2025 |
132,500 |
109,120 |
12,002 |
0 |
12,002 |
||
|
2024 |
02/13/2024 |
132,500 |
103,924 |
11,431 |
0 |
11,431 |
||
|
2023 |
02/14/2023 |
131,500 |
98,976 |
10,886 |
0 |
10,886 |
||
|
2022 |
03/15/2022 |
101,000 |
94,263 |
10,368 |
0 |
10,368 |
||
| Property Building Permit History | |||||||||||
|---|---|---|---|---|---|---|---|---|---|---|---|
| Issued | Permit # | Provided by | Bldg # | Description | Est Construction Cost | Status | |||||
| No Building Permit records returned. | |||||||||||
| Click button on building number to access detailed information: | ||||||
|---|---|---|---|---|---|---|
| Bldg # | Vacant/Improved Land | Bldg Description | Year Built | SqFt | # Stories | |
|
1 |
Improved |
Townhouse One Story |
1981 |
890 |
1 Stories |
|