|
|
|
| Larry Stein Oklahoma County Assessor (405) 713-1200 - Public Access System |
|
|
|
|
|
|
| Real Property Display - Screen Produced 3/14/2026 10:57:52 AM | ||||
|---|---|---|---|---|
| Account: R197911135 | Type: Residential | Location: |
16655 SE 16TH ST |
|
| Building Name/Occupant: |
|
CHOCTAW |
||
| Owner Name 1: | VINYARD PEGGY S |
Parcel PIN#: |
1025-19-791-1135 |
|
| Owner Name 2: | 1/4 section #: |
1025 |
||
| Owner Name 3: | Parent Acct: |
|
||
| Billing Address: | 16655 SE 16TH ST | Tax District: |
|
|
| City, State, Zip | CHOCTAW, OK 73020-6401 | School System: |
Choctaw #4 |
|
|
Country: (If noted) |
Land Size: |
1.1000 Acres |
||
|
Land Value: 36,300 |
|
|||
|
Sect 7-T11N-R1E Qtr NE |
MORAN ACRES REPLAT
Block
003
Lot
012
|
|||
| Full Legal Description: MORAN ACRES REPLAT BLK 003 LOT 012 |
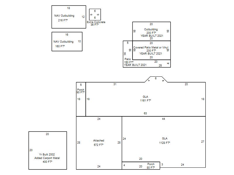
| Photo & Sketch (if available) | Comp Sales (ordered by relevancy) |
|
||||||||||||||||||
|
||||||||||||||||||||
| Value History (*The County Treasurer 405-713-1300 posts & collects actual tax amounts. Contact information HERE) | |||||||||||||
|---|---|---|---|---|---|---|---|---|---|---|---|---|---|
| Year | Market Value | Taxable Mkt Value | Gross Assessed | Exemption | Net Assessed | Millage | Est. Tax | Tax Savings | |||||
|
2025 |
322,500 |
243,230 |
26,755 |
1,000 |
25,755 |
117.21 |
$3,019 |
$1,139 |
|||||
|
2024 |
312,500 |
236,146 |
25,975 |
1,000 |
24,975 |
116.35 |
$2,906 |
$1,094 |
|||||
|
2023 |
300,000 |
229,268 |
25,219 |
1,000 |
24,219 |
118.06 |
$2,859 |
$1,037 |
|||||
|
2022 |
265,500 |
210,940 |
23,202 |
1,000 |
22,202 |
116.14 |
$2,579 |
$813 |
|||||
|
2021 |
228,500 |
204,797 |
22,527 |
1,000 |
21,527 |
116.17 |
$2,501 |
$419 |
|||||
| Property Account Status/Adjustments/Exemptions | ||
|---|---|---|
| Account # | Exemption Description | Amount |
|
R197911135 |
Freeze Senior Valuation |
0 |
|
R197911135 |
3% Cap Homestead |
0 |
|
R197911135 |
Homestead |
1,000 |
| Property Deed Transaction History (Recorded in the County Clerk's Office) | |||||||
|---|---|---|---|---|---|---|---|
| Date | Type | Book | Page | Price | Grantor | Grantee | |
|
4/1/1988 |
|
Historical |
$0 |
VINYARD TERRY C & PEGGY S |
VINYARD PEGGY S |
||
|
1/1/1978 |
|
Historical |
$0 |
|
VINYARD TERRY C & PEGGY S |
||
| Last Mailed Notice of Value (N.O.V.) Information/History | ||||||||
|---|---|---|---|---|---|---|---|---|
| Year | Date | Market Value | Taxable Market Value | Gross Assessed | Exemption | Net Assessed | ||
|
2025 |
01/31/2025 |
322,500 |
243,230 |
26,755 |
1,000 |
25,755 |
||
|
2024 |
01/22/2024 |
312,500 |
236,146 |
25,975 |
1,000 |
24,975 |
||
|
2023 |
03/02/2023 |
300,000 |
229,268 |
25,219 |
1,000 |
24,219 |
||
|
2022 |
02/22/2022 |
265,500 |
210,940 |
23,202 |
1,000 |
22,202 |
||
|
2021 |
02/24/2021 |
228,500 |
204,797 |
22,527 |
1,000 |
21,527 |
||
| Property Building Permit History | |||||||||||
|---|---|---|---|---|---|---|---|---|---|---|---|
| Issued | Permit # | Provided by | Bldg # | Description | Est Construction Cost | Status | |||||
| No Building Permit records returned. | |||||||||||
| Click button on building number to access detailed information: | ||||||
|---|---|---|---|---|---|---|
| Bldg # | Vacant/Improved Land | Bldg Description | Year Built | SqFt | # Stories | |
|
1 |
Improved |
Ranch 1 Story |
1978 |
2,289 |
1 Stories |
|