|
|
|
| Larry Stein Oklahoma County Assessor (405) 713-1200 - Public Access System |
|
|
|
|
|
|
| Real Property Display - Screen Produced 3/14/2026 10:57:52 AM | ||||
|---|---|---|---|---|
| Account: R197911195 | Type: Residential | Location: |
16563 SE 18TH ST |
|
| Building Name/Occupant: |
|
CHOCTAW |
||
| Owner Name 1: | BUNNELL WARREN E TRS |
Parcel PIN#: |
1025-19-791-1195 |
|
| Owner Name 2: | BUNNELL LIV TRUST | 1/4 section #: |
1025 |
|
| Owner Name 3: | Parent Acct: |
|
||
| Billing Address: | 16563 SE 18TH ST | Tax District: |
|
|
| City, State, Zip | CHOCTAW, OK 73020-6403 | School System: |
Choctaw #4 |
|
|
Country: (If noted) |
Land Size: |
1.1500 Acres |
||
|
Land Value: 37,950 |
|
|||
|
Sect 7-T11N-R1E Qtr NE |
MORAN ACRES REPLAT
Block
004
Lot
010
|
|||
| Full Legal Description: MORAN ACRES REPLAT BLK 004 LOT 010 |
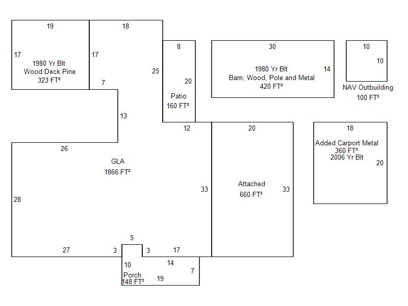
| Photo & Sketch (if available) | Comp Sales (ordered by relevancy) |
|
||||||||||||||||||
|
||||||||||||||||||||
| Value History (*The County Treasurer 405-713-1300 posts & collects actual tax amounts. Contact information HERE) | |||||||||||||
|---|---|---|---|---|---|---|---|---|---|---|---|---|---|
| Year | Market Value | Taxable Mkt Value | Gross Assessed | Exemption | Net Assessed | Millage | Est. Tax | Tax Savings | |||||
|
2025 |
255,000 |
127,601 |
14,036 |
14,036 |
0 |
117.21 |
$0 |
$3,288 |
|||||
|
2024 |
247,000 |
127,601 |
14,036 |
14,036 |
0 |
116.35 |
$0 |
$3,161 |
|||||
|
2023 |
237,500 |
127,601 |
14,036 |
1,000 |
13,036 |
118.06 |
$1,539 |
$1,545 |
|||||
|
2022 |
222,000 |
127,601 |
14,036 |
1,000 |
13,036 |
116.14 |
$1,514 |
$1,322 |
|||||
|
2021 |
191,000 |
127,601 |
14,036 |
1,000 |
13,036 |
116.17 |
$1,514 |
$926 |
|||||
| Property Account Status/Adjustments/Exemptions | ||
|---|---|---|
| Account # | Exemption Description | Amount |
|
R197911195 |
100% DAV Exemption |
100 |
|
R197911195 |
DAV Freeze Senior Valuation |
0 |
|
R197911195 |
3% Cap Homestead |
0 |
|
R197911195 |
DAV Homestead |
0 |
| Property Deed Transaction History (Recorded in the County Clerk's Office) | |||||||
|---|---|---|---|---|---|---|---|
| Date | Type | Book | Page | Price | Grantor | Grantee | |
|
5/10/2006 |
|
Deeds |
$0 |
BUNNELL WARREN E |
BUNNELL WARREN E TRS |
||
|
8/24/1999 |
|
Deeds |
$0 |
BUNNELL WARREN E & ALICE C |
BUNNELL WARREN E |
||
|
4/5/1989 |
|
Historical |
$69,000 |
HANKS RONALD B & NORMA LEE |
BUNNELL WARREN E & ALICE C |
||
|
8/1/1980 |
|
Historical |
$0 |
|
HANKS RONALD B & NORMA LEE |
||
| Last Mailed Notice of Value (N.O.V.) Information/History | ||||||||
|---|---|---|---|---|---|---|---|---|
| Year | Date | Market Value | Taxable Market Value | Gross Assessed | Exemption | Net Assessed | ||
|
2025 |
01/31/2025 |
255,000 |
127,601 |
14,036 |
14,036 |
0 |
||
|
2024 |
01/22/2024 |
247,000 |
127,601 |
14,036 |
1,000 |
13,036 |
||
|
2023 |
01/23/2023 |
237,500 |
127,601 |
14,036 |
1,000 |
13,036 |
||
|
2022 |
02/22/2022 |
222,000 |
127,601 |
14,036 |
1,000 |
13,036 |
||
|
2021 |
02/24/2021 |
191,000 |
127,601 |
14,036 |
1,000 |
13,036 |
||
| Property Building Permit History | |||||||||||
|---|---|---|---|---|---|---|---|---|---|---|---|
| Issued | Permit # | Provided by | Bldg # | Description | Est Construction Cost | Status | |||||
| No Building Permit records returned. | |||||||||||
| Click button on building number to access detailed information: | ||||||
|---|---|---|---|---|---|---|
| Bldg # | Vacant/Improved Land | Bldg Description | Year Built | SqFt | # Stories | |
|
1 |
Improved |
Ranch 1 Story |
1971 |
1,866 |
1 Stories |
|