|
|
|
| Larry Stein Oklahoma County Assessor (405) 713-1200 - Public Access System |
|
|
|
|
|
|
| Real Property Display - Screen Produced 3/16/2026 3:50:58 AM | ||||
|---|---|---|---|---|
| Account: R197911215 | Type: Residential | Location: |
16594 SE 18TH ST |
|
| Building Name/Occupant: |
|
CHOCTAW |
||
| Owner Name 1: | HINES STEVEN |
Parcel PIN#: |
1025-19-791-1215 |
|
| Owner Name 2: | 1/4 section #: |
1025 |
||
| Owner Name 3: | Parent Acct: |
|
||
| Billing Address: | 16594 SE 18TH ST | Tax District: |
|
|
| City, State, Zip | CHOCTAW , OK 73020 | School System: |
Choctaw #4 |
|
|
Country: (If noted) |
Land Size: |
1.1500 Acres |
||
|
Land Value: 37,950 |
|
|||
|
Sect 7-T11N-R1E Qtr NE |
MORAN ACRES REPLAT
Block
005
Lot
002
|
|||
| Full Legal Description: MORAN ACRES REPLAT BLK 005 LOT 002 |
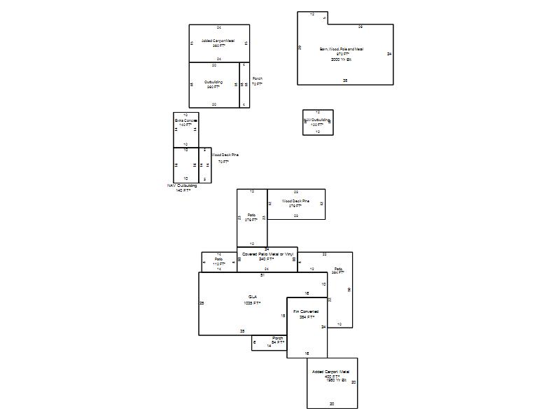
| Photo & Sketch (if available) | Comp Sales (ordered by relevancy) |
|
||||||||||||||||||
|
||||||||||||||||||||
| Value History (*The County Treasurer 405-713-1300 posts & collects actual tax amounts. Contact information HERE) | |||||||||||||
|---|---|---|---|---|---|---|---|---|---|---|---|---|---|
| Year | Market Value | Taxable Mkt Value | Gross Assessed | Exemption | Net Assessed | Millage | Est. Tax | Tax Savings | |||||
|
2025 |
274,000 |
183,577 |
20,193 |
1,000 |
19,193 |
117.21 |
$2,250 |
$1,283 |
|||||
|
2024 |
267,500 |
178,231 |
19,605 |
1,000 |
18,605 |
116.35 |
$2,165 |
$1,259 |
|||||
|
2023 |
247,500 |
173,040 |
19,034 |
1,000 |
18,034 |
118.06 |
$2,129 |
$1,085 |
|||||
|
2022 |
168,000 |
168,000 |
18,480 |
1,000 |
17,480 |
116.14 |
$2,030 |
$116 |
|||||
|
2021 |
175,500 |
173,040 |
19,034 |
1,000 |
18,034 |
116.17 |
$2,095 |
$148 |
|||||
| Property Account Status/Adjustments/Exemptions | ||
|---|---|---|
| Account # | Exemption Description | Amount |
|
R197911215 |
3% Cap Homestead |
0 |
|
R197911215 |
Homestead |
1,000 |
| Property Deed Transaction History (Recorded in the County Clerk's Office) | ||||||||||
|---|---|---|---|---|---|---|---|---|---|---|
| Date | Type | Book | Page | Price | Grantor | Grantee | ||||
|
8/30/2019 |
|
Deeds |
$175,000 |
HARMON DENA K |
HINES STEVEN |
|||||
|
10/31/2014 |
|
Deeds |
$150,000 |
LUNSKI MICHELLE |
HARMON DENA K |
|||||
|
8/25/2010 |
|
Deeds |
$0 |
LUNSKI MICHAEL & MICHELLE |
LUNSKI MICHELLE |
|||||
|
7/31/2007 |
|
Deeds |
$115,000 |
HANKS MARK D & CAROLE A |
LUNSKI MICHAEL & MICHELLE |
|||||
|
4/24/1995 |
|
Historical |
$55,000 |
MAULDIN JOHN L & WANDA F |
HANKS MARK D & CAROLE A |
|||||
| Last Mailed Notice of Value (N.O.V.) Information/History | ||||||||
|---|---|---|---|---|---|---|---|---|
| Year | Date | Market Value | Taxable Market Value | Gross Assessed | Exemption | Net Assessed | ||
|
2026 |
02/06/2026 |
260,000 |
189,084 |
20,798 |
1,000 |
19,798 |
||
|
2025 |
01/31/2025 |
274,000 |
183,577 |
20,193 |
1,000 |
19,193 |
||
|
2024 |
01/22/2024 |
267,500 |
178,231 |
19,605 |
1,000 |
18,605 |
||
|
2023 |
01/23/2023 |
247,500 |
173,040 |
19,034 |
1,000 |
18,034 |
||
|
2021 |
02/24/2021 |
175,500 |
173,040 |
19,034 |
1,000 |
18,034 |
||
| Property Building Permit History | |||||||||||
|---|---|---|---|---|---|---|---|---|---|---|---|
| Issued | Permit # | Provided by | Bldg # | Description | Est Construction Cost | Status | |||||
| No Building Permit records returned. | |||||||||||
| Click button on building number to access detailed information: | ||||||
|---|---|---|---|---|---|---|
| Bldg # | Vacant/Improved Land | Bldg Description | Year Built | SqFt | # Stories | |
|
1 |
Improved |
Ranch 1 Story |
1976 |
1,035 |
1 Stories |
|