|
|
|
| Larry Stein Oklahoma County Assessor (405) 713-1200 - Public Access System |
|
|
|
|
|
|
| Real Property Display - Screen Produced 3/14/2026 10:57:52 AM | ||||
|---|---|---|---|---|
| Account: R197911265 | Type: Residential | Location: |
16749 SE 20TH ST |
|
| Building Name/Occupant: |
|
CHOCTAW |
||
| Owner Name 1: | HARRISON GEORGE M & JACQUELINE |
Parcel PIN#: |
1025-19-791-1265 |
|
| Owner Name 2: | 1/4 section #: |
1025 |
||
| Owner Name 3: | Parent Acct: |
|
||
| Billing Address: | 16749 SE 20TH ST | Tax District: |
|
|
| City, State, Zip | CHOCTAW, OK 73020-6436 | School System: |
Choctaw #4 |
|
|
Country: (If noted) |
Land Size: |
0.9800 Acres |
||
|
Land Value: 32,340 |
|
|||
|
Sect 7-T11N-R1E Qtr NE |
MORAN ACRES REPLAT
Block
005
Lot
012
|
|||
| Full Legal Description: MORAN ACRES REPLAT BLK 005 LOT 012 |
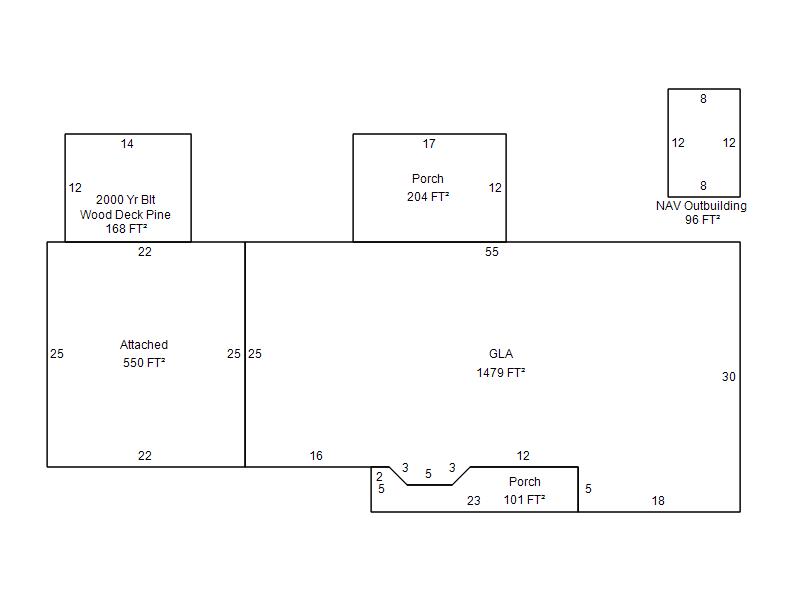
| Photo & Sketch (if available) | Comp Sales (ordered by relevancy) |
|
||||||||||||||||||
|
||||||||||||||||||||
| Value History (*The County Treasurer 405-713-1300 posts & collects actual tax amounts. Contact information HERE) | |||||||||||||
|---|---|---|---|---|---|---|---|---|---|---|---|---|---|
| Year | Market Value | Taxable Mkt Value | Gross Assessed | Exemption | Net Assessed | Millage | Est. Tax | Tax Savings | |||||
|
2025 |
228,000 |
161,373 |
17,751 |
1,000 |
16,751 |
117.21 |
$1,963 |
$976 |
|||||
|
2024 |
218,000 |
156,673 |
17,233 |
1,000 |
16,233 |
116.35 |
$1,889 |
$901 |
|||||
|
2023 |
209,000 |
152,110 |
16,731 |
1,000 |
15,731 |
118.06 |
$1,857 |
$857 |
|||||
|
2022 |
194,000 |
147,680 |
16,244 |
1,000 |
15,244 |
116.14 |
$1,771 |
$708 |
|||||
|
2021 |
166,000 |
143,379 |
15,771 |
1,000 |
14,771 |
116.17 |
$1,716 |
$405 |
|||||
| Property Account Status/Adjustments/Exemptions | ||
|---|---|---|
| Account # | Exemption Description | Amount |
|
R197911265 |
3% Cap Homestead |
0 |
|
R197911265 |
Homestead |
1,000 |
| Property Deed Transaction History (Recorded in the County Clerk's Office) | |||||||
|---|---|---|---|---|---|---|---|
| Date | Type | Book | Page | Price | Grantor | Grantee | |
|
9/28/1989 |
|
Historical |
$0 |
BLAKENEY RAY L & DIANA E |
HARRISON GEORGE M & JACQUELINE |
||
|
5/1/1976 |
|
Historical |
$0 |
|
BLAKENEY RAY L & DIANA E |
||
| Last Mailed Notice of Value (N.O.V.) Information/History | ||||||||
|---|---|---|---|---|---|---|---|---|
| Year | Date | Market Value | Taxable Market Value | Gross Assessed | Exemption | Net Assessed | ||
|
2026 |
02/06/2026 |
222,500 |
166,214 |
18,283 |
1,000 |
17,283 |
||
|
2025 |
01/31/2025 |
228,000 |
161,373 |
17,751 |
1,000 |
16,751 |
||
|
2024 |
01/22/2024 |
218,000 |
156,673 |
17,233 |
1,000 |
16,233 |
||
|
2023 |
01/23/2023 |
209,000 |
152,110 |
16,731 |
1,000 |
15,731 |
||
|
2022 |
02/22/2022 |
194,000 |
147,680 |
16,244 |
1,000 |
15,244 |
||
| Property Building Permit History | ||||||
|---|---|---|---|---|---|---|
| Issued | Permit # | Provided by | Bldg # | Description | Est Construction Cost | Status |
|
8/20/2012 |
10443602 |
CHOCTAW |
1 |
Swimming Pool |
4,000 |
Inactive |
| Click button on building number to access detailed information: | ||||||
|---|---|---|---|---|---|---|
| Bldg # | Vacant/Improved Land | Bldg Description | Year Built | SqFt | # Stories | |
|
1 |
Improved |
Ranch 1 Story |
1976 |
1,479 |
1 Stories |
|