|
|
|
| Larry Stein Oklahoma County Assessor (405) 713-1200 - Public Access System |
|
|
|
|
|
|
| Real Property Display - Screen Produced 3/27/2026 4:02:21 AM | ||||
|---|---|---|---|---|
| Account: R180611670 | Type: Residential | Location: |
14120 SPRINGHILL RD |
|
| Building Name/Occupant: |
|
OKLAHOMA CITY |
||
| Owner Name 1: | HOENSHELL MONICA |
Parcel PIN#: |
3643-18-061-1670 |
|
| Owner Name 2: | 1/4 section #: |
3643 |
||
| Owner Name 3: | Parent Acct: |
|
||
| Billing Address: | 13801 PLYMOUTH CROSSING | Tax District: |
|
|
| City, State, Zip | EDMOND, OK 73013 | School System: |
Edmond #12 |
|
|
Country: (If noted) |
Land Size: |
0.0488 Acres |
||
|
Land Value: 16,575 |
|
|||
|
Sect 11-T13N-R3W Qtr SW |
THE CROSSING SEC 1
Block
001
Lot
068
|
|||
| Full Legal Description: THE CROSSING SEC 1 001 068 |
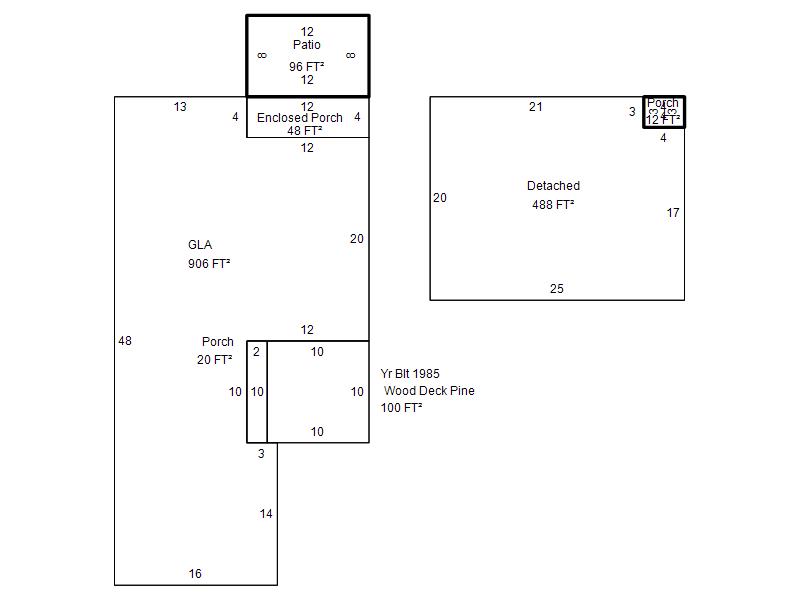
| Photo & Sketch (if available) | Comp Sales (ordered by relevancy) |
|
||||||||||||||||||
|
||||||||||||||||||||
| Value History (*The County Treasurer 405-713-1300 posts & collects actual tax amounts. Contact information HERE) | |||||||||||||
|---|---|---|---|---|---|---|---|---|---|---|---|---|---|
| Year | Market Value | Taxable Mkt Value | Gross Assessed | Exemption | Net Assessed | Millage | Est. Tax | Tax Savings | |||||
| No PropertyValuation records returned. | |||||||||||||
| Property Account Status/Adjustments/Exemptions | ||
|---|---|---|
| Account # | Exemption Description | Amount |
|
R180611670 |
5% Capped Account |
0 |
| Property Deed Transaction History (Recorded in the County Clerk's Office) | ||||||||||
|---|---|---|---|---|---|---|---|---|---|---|
| Date | Type | Book | Page | Price | Grantor | Grantee | ||||
|
3/21/2014 |
|
Deeds |
$82,500 |
BROSS LARRY A & MASIE F |
HOENSHELL MONICA |
|||||
|
12/29/2008 |
|
Deeds |
$50,000 |
BROSS SHASTA |
BROSS LARRY A & MASIE F |
|||||
|
9/19/1994 |
|
Historical |
$0 |
FERGUSON NAOMA |
BROSS SHASTA |
|||||
|
8/2/1994 |
|
Historical |
$42,500 |
WHEELER O MARY |
FERGUSON NAOMA |
|||||
|
1/3/1994 |
|
Historical |
$0 |
WHEELER O MARY |
WHEELER O MARY |
|||||
| Last Mailed Notice of Value (N.O.V.) Information/History | ||||||||
|---|---|---|---|---|---|---|---|---|
| Year | Date | Market Value | Taxable Market Value | Gross Assessed | Exemption | Net Assessed | ||
| No Notice of Value N.O.V. records returned. | ||||||||
| Property Building Permit History | |||||||||||
|---|---|---|---|---|---|---|---|---|---|---|---|
| Issued | Permit # | Provided by | Bldg # | Description | Est Construction Cost | Status | |||||
| No Building Permit records returned. | |||||||||||
| Click button on building number to access detailed information: | ||||||
|---|---|---|---|---|---|---|
| Bldg # | Vacant/Improved Land | Bldg Description | Year Built | SqFt | # Stories | |
|
1 |
Improved |
Townhouse One Story |
1982 |
906 |
1 Stories |
|